Найти в Дзене
Realt.by

Лофт в два яруса в центре Минска для холостяка. Смотрите, какой интерьер в квартире создали белорусские дизайнеры

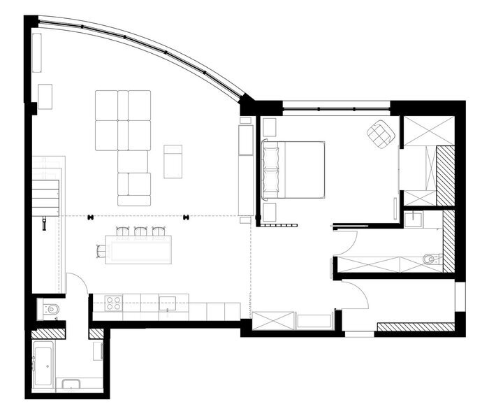
Как распорядиться площадью новой квартиры с пятиметровыми потолками в центре Минска с индустриальным пейзажем за окном? Архитектурная студия ZROBIM architects предложила владельцу интерьер в стиле лофт - с устройством дополнительного этажа, огромной гостиной-кухней, гостевой спальней и двумя санузлами. Смотрим, как это все в итоге выглядит. Это весьма нестандартная квартира — 120 «квадратов», пятиметровые потолки и панорамное остекление вместо стены, последний этаж новой высотки в самом центре Минска. Владелец, молодой человек, пожелал устроить в ней этакую холостяцкую лофтовую берлогу, которую в перспективе можно трансформировать в удобное жилье для семьи с ребенком. Стиль лофт выбран неслучайно — из огромного окна высотой 5 метров открывается абсолютно индустриальный пейзаж и вид на старую заводскую застройку. Квартира начинается с прихожей. Отказываться от нее, следуя канонам американского лофта, сочли непрактичным решением - в нашем климате все таки нужно иметь возможность при вход

Как распорядиться площадью новой квартиры с пятиметровыми потолками в центре Минска с индустриальным пейзажем за окном? Архитектурная студия ZROBIM architects предложила владельцу интерьер в стиле лофт - с устройством дополнительного этажа, огромной гостиной-кухней, гостевой спальней и двумя санузлами. Смотрим, как это все в итоге выглядит.

Это весьма нестандартная квартира — 120 «квадратов», пятиметровые потолки и панорамное остекление вместо стены, последний этаж новой высотки в самом центре Минска. Владелец, молодой человек, пожелал устроить в ней этакую холостяцкую лофтовую берлогу, которую в перспективе можно трансформировать в удобное жилье для семьи с ребенком.

Стиль лофт выбран неслучайно — из огромного окна высотой 5 метров открывается абсолютно индустриальный пейзаж и вид на старую заводскую застройку.

Квартира начинается с прихожей. Отказываться от нее, следуя канонам американского лофта, сочли непрактичным решением - в нашем климате все таки нужно иметь возможность при входе разуться, оставить верхнюю одежду. В то же время от других помещений эта зона отделена лишь условно — натянутые вертикально тросики между ней и кухней не ограничивает вид на открытое лофтовое пространство. Деление условное, но визуально разграничивает функциональные зоны.

-3

Стены у входа и входная дверь отделаны в едином стиле шпонированными панелями. Выше — кладка из красного кирпича. Над дверью мы видим «трушную» перемычку из металлического двутавра.

За белой дверью-невидимкой спрятана кладовка: там предусмотрены места для хранения вещей не повседневного использования, а также помощники в быту - стиралка, сушилка.

Тут же замечаем чуть ли не обязательный атрибут современного лофта — часть стены сложена из стеклоблоков, что сочетается с выбранной стилистикой и создает хорошее естественное освещение холла. За ней находится гостевая спальня, попасть в которую можно сдвинув в сторону исполинскую пятиметровую дверь.

-5

Назначение этой комнаты может поменяться — здесь может быть кабинет хозяина или детская комната. Подразумевая возможные сценарии, она разделена на две части. В первой — комната со вторым светом, и антресоль со спальным местом. Вход во вторую часть — через сдвижную дверь из настоящего слэба. Помещение за ней можно использовать как гардеробную.

В гостиной понимаешь настоящую ценность этого лофта — за огромным окном во всю стену открывается панорамный вид на город, в помещении много света, пространство кажется безграничным.

-7

Центральную часть гостиной занимает удобный зеленый диван на фоне лофтовой кирпичной кладки до потолка. Стена напротив него покрыта специальной светло-серой краской и используется как полотно для проектора.

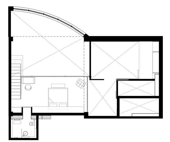
Высота потолков здесь 5 метров и это позволило разделить пространство на два уровня — второй этаж балконом нависает над зоной кухни.

-9

Конструкция второго яруса собрана из двутавровых металлических балок. Узлы сварки и соединений специально оставили незашлифованными, чтобы все выглядело максимально натуралистично.

Со стороны кухонной зоны мы видим деревянную зашивку потолка. Сама кухня выполнена в лофтовом стиле — сочетание натурального дерева и металлических панелей антрацитового цвета на фасадах глухих частей кухни. Дверцы верхних шкафчиков сделаны из гофрированного стекла с металлической решеткой. Внутри установлены светильники, вечером они дополнительно освещают пространство кухни и являются простым и одновременно стильным декоративным элементом.

Кухонный остров служит и барной зоной, и обеденным столом — все таки это холостяцкая квартира, и здесь большой круглый стол пока не нужен.

За кухней располагается гостевой санузел. Он выполнен в едином стиле с остальными помещениями — темная крупноформатная плитка и деревянные детали. В шкафчике над ванной — сюрприз в виде телевизора.

Но самое интересное и притягивающее внимание — раковина, высеченная из настоящего дикого камня.

Лестница на второй ярус - в классическом лофтовом исполнении: на стальном двутавре с деревянными ступенями, пологая и широкая, без поручней.

-12

На втором этаже высота потолка всего 2 метра (над кухней — 2,7 метра). Из-за этого здесь особая атмосфера - лофтовая, чердачная. Здесь находится мастер-спальня с большой кроватью. Прямо с нее можно обозревать городские пейзажи.

По сторонам находятся шкафы для хранения одежды. Дверцы прозрачные, внутри установлена подсветка, что удобно — найти необходимую вещь проще простого.

Здесь же видим вход в ванную комнату владельца. Стены в ней облицованы темной крупноформатной плиткой, передающей фактуру деревянного слэба. В сочетании с черной сантехникой создается впечатление исключительно мужского интерьера. Зона душевой выделена деревянной обшивкой.

Чтобы поддержать историю стиля бывшего промышленного здания, все инженерные системы проведены открытым способом под потолком, поэтому трубы вентиляции, кондиционирования, открытая проводка являются частью интерьера. Текстуру бетонного перекрытия сохранили по той же причине.

Более подробный рассказ об этом лофте можно найти в видеобзоре на канале архитектурной студии:

Архитекторы: Артем Ермолинский, Роман Мохаммад, Алексей Кораблев. Фото: Виталина Ворошкевич.