Найти в Дзене

Одноэтажные дома для длинного участка - 6 вариантов

Санитарные и противопожарные нормативы планировки и застройки населённых пунктов регламентируют отступы от домов соседей, - не менее 6 метров, и от границ участка, - не менее 3 метров. В случае одноэтажного дома этот расстояние в некоторых случаях вырастает, когда нормы предписывают измерять его не от стен, а от края кровли. В связи с этим застройка узкого длинного участка - это всегда не просто. Сегодня публикуем подборку планировок шести разных по ширине, площади и составу помещений узких домов, удобных и красивых. Для всех есть готовые проекты. КОМФОРТНАЯ ПЛАНИРОВКА В СТЕСНЕННЫХ УСЛОВИЯХ Основная архитектурная задача при проектировании узкого длинного дома - избежать длинных коридоров и узеньких комнат-пеналов. Все представленные здесь проекты созданы так, чтобы максимально нивелировать неудобства, связанные с размером и формой земельного надела. Архитектурных планировочных приёмов для этого не слишком много, мы выбрали для себя два: Все показанные тут проекты - готовые. Для приобр
Оглавление

Санитарные и противопожарные нормативы планировки и застройки населённых пунктов регламентируют отступы от домов соседей, - не менее 6 метров, и от границ участка, - не менее 3 метров. В случае одноэтажного дома этот расстояние в некоторых случаях вырастает, когда нормы предписывают измерять его не от стен, а от края кровли. В связи с этим застройка узкого длинного участка - это всегда не просто.

Сегодня публикуем подборку планировок шести разных по ширине, площади и составу помещений узких домов, удобных и красивых. Для всех есть готовые проекты.

КОМФОРТНАЯ ПЛАНИРОВКА В СТЕСНЕННЫХ УСЛОВИЯХ

Основная архитектурная задача при проектировании узкого длинного дома - избежать длинных коридоров и узеньких комнат-пеналов.

Все представленные здесь проекты созданы так, чтобы максимально нивелировать неудобства, связанные с размером и формой земельного надела. Архитектурных планировочных приёмов для этого не слишком много, мы выбрали для себя два:

  1. В середине коттеджа находятся общие комнаты, а спальни, имеющие меньшую ширину, отодвинуты к торцам, что позволяет удобно устроить вход с улицы, и выход в сад с противоположной стороны. Этот приём подходит для маленьких домов с 1-2 спальнями.
  2. Спальные комнаты выстроены в ряд по одной стороне, а парадные - по другой. Получившийся при этом коридор открыт с двух концов в гостиную, и не ощущается как пыльный тупичок. Такая планировочная схема легко реализуется при ширине дома от 9 метров и позволяет сделать 3-5 спален.

Все показанные тут проекты - готовые. Для приобретения документации обращайтесь на основной сайт ИНВАПОЛИС. О каждом доме можно почитать подробнее, перейдя на страницу соответствующей статьи.

1. Самый маленький и самый узкий - ПАЛАНГА.

► Подробнее о проекте читайте в статье

2. Двухкомнатный БРИЗ со СПА-зоной

Вместо СПА можно сделать обычную ванную и кладовую
Вместо СПА можно сделать обычную ванную и кладовую

► Подробнее о проекте читайте в статье

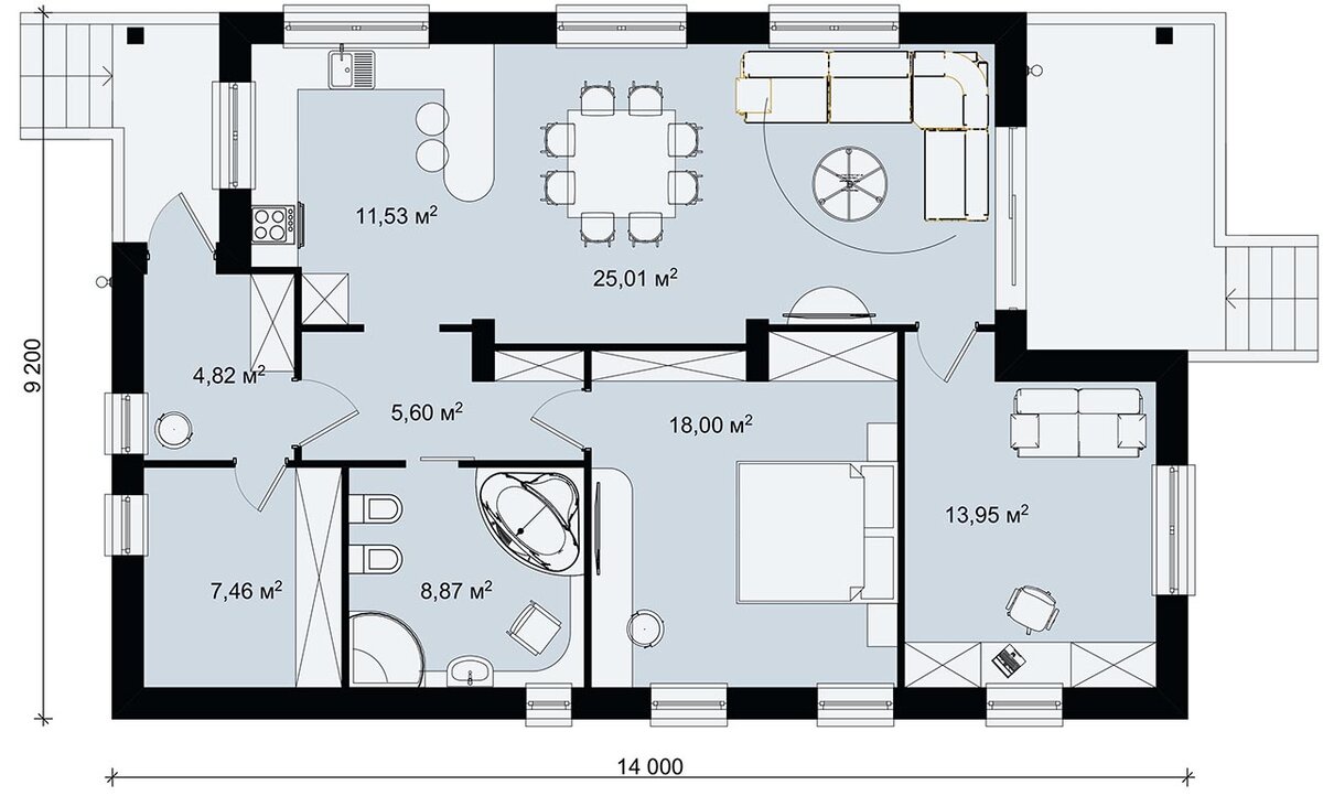
3. Длинный узкий дом на 3 спальни МЕНОРКА

Все спальни - по одной стороне. Но без коридора
Все спальни - по одной стороне. Но без коридора

► Подробнее о проекте читайте в статье

4. Комфортный БОРГО с 3 спальнями и большой террасой

Мастер-спальня не только с гардеробными, но ещё и с террасой!
Мастер-спальня не только с гардеробными, но ещё и с террасой!

► Подробнее о проекте читайте в статье

5. Сардиния - без террасы.

Две основных спальни и отдельно - гостевая или кабинет
Две основных спальни и отдельно - гостевая или кабинет

► Подробнее о проекте читайте в статье

6. Майами - 4 спальни на узком участке!

Четвертую спальню можно заменить на что-то, например, баню.
Четвертую спальню можно заменить на что-то, например, баню.

► Подробнее о проекте читайте в статье

► Если планируете строительство или просто любите смотреть домики и читать статьи о частном домостроении, подпишитесь на наш канал ДЗЕН

► Также следить за новостями и смотреть обзоры проектов можно в ТЕЛЕГРАММ-КАНАЛЕ ИНВАПОЛИС – подписывайтесь, контент местами отличается 😊