Найти в Дзене
Дома №1

Проект дома "Фресно", 143 м2

Характеристики проекта "Фресно" Название: «Фресно» Площадь: 143 м2 Размер: 10,1 х 9,2 м Стиль: Барнхаус В проект дома "Фресно" включили: Планировка О проекте Дом по проекту «Фресно»- это современный проект двухэтажного дома (с мансардой). Этот дом подарит вам ощущения свободы, простора и непохожести ни на кого. Фишкой данного проекта является особая необычная форма дома, которая визуально как будто состоит из нескольких геометрических фигур. Также стоит обратить внимание на кровлю, которая в данном проекте сразу переходит в стены, что является характерной чертой стиля Барнхаус. #проект дома #проект дома Фресно #Дома №1 #каркасный дом #каменный дом #дом из сип панелей #строительство домов
Оглавление
Проект дома "Фресно"
Проект дома "Фресно"

Характеристики проекта "Фресно"

Название: «Фресно»

Площадь: 143 м2

Размер: 10,1 х 9,2 м

Стиль: Барнхаус

В проект дома "Фресно" включили:

  • кухню-гостиную
  • 4 спальни
  • 2 санузла
  • тамбур
  • терраса
  • балкон

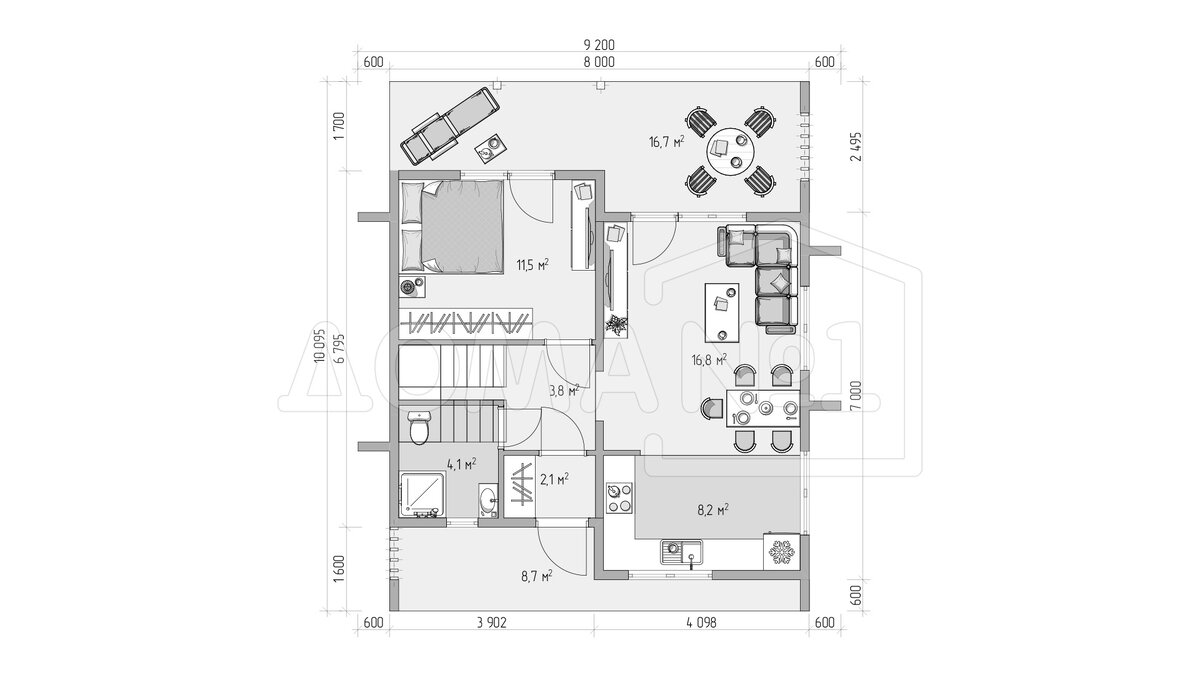
Планировка

Планировка: 1 этаж
Планировка: 1 этаж
Планировка: 2 этаж
Планировка: 2 этаж

О проекте

Дом по проекту «Фресно»- это современный проект двухэтажного дома (с мансардой). Этот дом подарит вам ощущения свободы, простора и непохожести ни на кого.

Фишкой данного проекта является особая необычная форма дома, которая визуально как будто состоит из нескольких геометрических фигур. Также стоит обратить внимание на кровлю, которая в данном проекте сразу переходит в стены, что является характерной чертой стиля Барнхаус.

#проект дома #проект дома Фресно #Дома №1 #каркасный дом #каменный дом #дом из сип панелей #строительство домов