Добавить в корзинуПозвонить
Найти в Дзене

Проект двухэтажного кирпичного дома с подвалом

Жилой дом запроектирован в два этажа этажа с подвалом.
Высота первого этажа составляет 3,0м, в нем располагается: входная группа (крыльцо, тамбур); кухня-гостиная-столовая (второй свет), кабинет, вспомогательные помещения жилой части (холл с лестницей на второй этаж, санузел, прачечная), гараж на 2 автомобиля, помещение персонала. Высота второго этажа составляет 3,0м, в нем запроектированы 2 спальные комнаты, ванная комната, мастер спальня, спортивный зал в выходом на открытую террасу, а также холл с лестницей на 1 этаж.
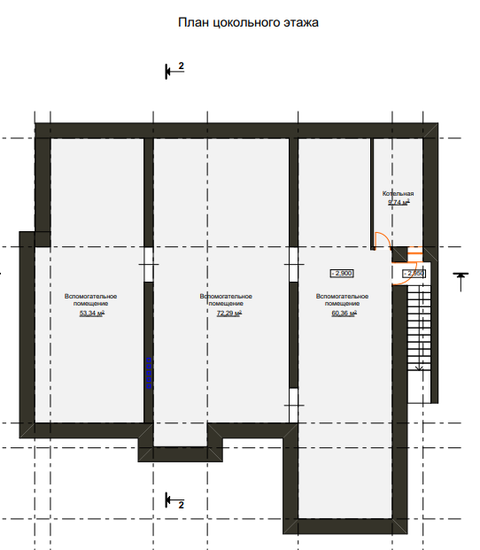
Высота цокольного этажа составляет 2,5м, в нем расположена котельная с отдельным выходом на улицу, а также вспомогательные помещения.
Конструктивная схема жилого дома - бескаркасное кирпичное здание, с продольно-поперечными несущими стенами.
Наружные стены жилого дома и гаража представляют собой многослойную конструкцию: кирпичная кладка из полнотелого кирпича и утеплителем В качестве декоративной отделки применяется облицовочный кирпич светло-серого и темно-серог
Двухэтажный кирпичный дом
Двухэтажный кирпичный дом

Жилой дом запроектирован в два этажа этажа с подвалом.

Высота первого этажа составляет 3,0м, в нем располагается: входная группа (крыльцо, тамбур); кухня-гостиная-столовая (второй свет), кабинет, вспомогательные помещения жилой части (холл с лестницей на второй этаж, санузел, прачечная), гараж на 2 автомобиля, помещение персонала. Высота второго этажа составляет 3,0м, в нем запроектированы 2 спальные комнаты, ванная комната, мастер спальня, спортивный зал в выходом на открытую террасу, а также холл с лестницей на 1 этаж.

Высота цокольного этажа составляет 2,5м, в нем расположена котельная с отдельным выходом на улицу, а также вспомогательные помещения.

Конструктивная схема жилого дома - бескаркасное кирпичное здание, с продольно-поперечными несущими стенами.

Наружные стены жилого дома и гаража представляют собой многослойную конструкцию: кирпичная кладка из полнотелого кирпича и утеплителем

Проект кирпичного дома
Проект кирпичного дома
Задний фасад кирпичного дома
Задний фасад кирпичного дома

В качестве декоративной отделки применяется облицовочный кирпич светло-серого и темно-серого цвета, штукатурный фасад, навесной фасад с отделкой планкеном. Внутренние перегородки выполнены из полнотелого кирпича толщиной 120мм. Перекрытия - сборные железобетонные серийного изготовления

Проект кирпичного дома
Проект кирпичного дома

Общая площадь 608 м2, жилая площадь 423 м2. Площадь застройки 315 м2. Габариты дома 16,51х16,18. Высота в чистоте 9.6 метра