Найти в Дзене

#3 Дизайн-проект. Начальный этап работ. Новые окна.

Мы долго выбирали дизайнера,которым бы подошел нам. Выбрали и начали создание проекта.
Работа над дизайн проектом длилась 10 месяцев,что очень долго. Вот что получилось с планировкой. Как видно на схеме, было решено вынести котел на балкон. Тогда мы еще даже не представляли какое количество сложностей это принесет. По поводу выбора окон. Так как до этого был опыт установки окон в другой квартире от частника, который не ответил по своим обязательствам и окна через год треснули в нескольких местах из за неправильного монтажа, было решено обращаться в крупную компанию в нашем регионе,которая производит и устанавливает окна. Выбрали профиль GEALAN максимальной толщины и заменили балконные окна и окно в комнате. Но так как уже был опыт с окнами, от которых пришлось отказаться, следили за установкой новых очень внимательно. И на этапе установки,когда окна занесли в квартиру были видные мелкие царапины на раме. Обязательно проверяйте перед установкой потому что это все можно исправить и лу

Мы долго выбирали дизайнера,которым бы подошел нам.

Выбрали и начали создание проекта.
Работа над дизайн проектом длилась 10 месяцев,что очень долго.

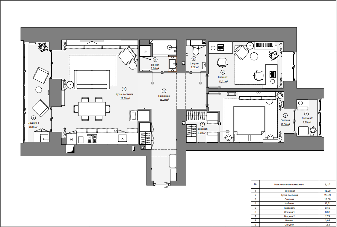
Вот что получилось с планировкой.

Как видно на схеме, было решено вынести котел на балкон. Тогда мы еще даже не представляли какое количество сложностей это принесет.

По поводу выбора окон. Так как до этого был опыт установки окон в другой квартире от частника, который не ответил по своим обязательствам и окна через год треснули в нескольких местах из за неправильного монтажа, было решено обращаться в крупную компанию в нашем регионе,которая производит и устанавливает окна. Выбрали профиль GEALAN максимальной толщины и заменили балконные окна и окно в комнате. Но так как уже был опыт с окнами, от которых пришлось отказаться, следили за установкой новых очень внимательно. И на этапе установки,когда окна занесли в квартиру были видные мелкие царапины на раме. Обязательно проверяйте перед установкой потому что это все можно исправить и лучше исправлять до установки. Все мелкие дефекты монтажники устранили и приступили к установке. Но это был не конец, и после установки стекол и штапиков, оказалось что из за толщины профиля очень сложно было установить штапики без зазоров. Для исправления этого недостатка данная компания выезжала более 4х раз.

-2

Дефекты в стыках
Дефекты в стыках

Наконец-то, когда все было исправлено, мы согласились подписать документы о приемке окон.