Найти в Дзене

#1 Работа с застройщиком

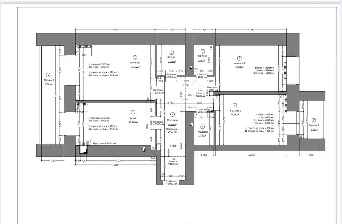
Всем привет. Начну свой рассказ о ремонте квартиры с начального этапа, возможного кому-то пригодится. После долгого поиска квартиры остановились на 3х комнатной квартире 84кв.м. При покупке квартиры от застройщика у вас есть возможность внести большое количество изменений в плане устройства теплых полов, выбора котла определенной модели, переноса стен, и установки сразу утепленных окон. Мы узнали об этом поздновато и поэтому удалось воспользоваться не всеми опциями от застройщика. Изучив информация о котле который устанавливается от застройщика "BAXI ECO Home" удалось узнать, данный хоть и от хорошего производителя, но является бюджетной моделью при этом в плане обслуживания обходится гораздо дороже других моделей и было принято решение заменить его на котел BAXI ECO Four 24 F, 24 кВт, двухконтурный. Данную модель порекомендовали в магазинах сантехники. Для замены котла необходимо приехать к застройщику и договориться о замене котла, так как застройщик еще не успел закупить котел от н

Всем привет. Начну свой рассказ о ремонте квартиры с начального этапа, возможного кому-то пригодится.

После долгого поиска квартиры остановились на 3х комнатной квартире 84кв.м.

При покупке квартиры от застройщика у вас есть возможность внести большое количество изменений в плане устройства теплых полов, выбора котла определенной модели, переноса стен, и установки сразу утепленных окон. Мы узнали об этом поздновато и поэтому удалось воспользоваться не всеми опциями от застройщика.

Изучив информация о котле который устанавливается от застройщика "BAXI ECO Home" удалось узнать, данный хоть и от хорошего производителя, но является бюджетной моделью при этом в плане обслуживания обходится гораздо дороже других моделей и было принято решение заменить его на котел BAXI ECO Four 24 F, 24 кВт, двухконтурный. Данную модель порекомендовали в магазинах сантехники. Для замены котла необходимо приехать к застройщику и договориться о замене котла, так как застройщик еще не успел закупить котел от нас требовалось лишь оплатить разницу и получить модель котла которую мы хотели.

-2

Далее застройщик предложил согласовать план теплых полов. (в следующих постах мы к этому вернемся). Согласовали план и строители начали укладку теплых полов.

-3

После укладки застройщику было необходимо выполнить заливку стяжки. Это очень важный этап так как высота потолков 2.7 метра, не хотелось дополнительно снижать высоту потолков за счет стяжки. Поэтому во время заливки полов необходимо присутствовать и узнавать у рабочих какой будет высота после заливки. У нас получилось так что рабочие позвонили и сказали что, высота будет 2.6-это нас категорически не устраивало, поговорив с прорабом на стройке мы пошли искать место из за которого пол приходится так сильно поднимать. Оказалось,что после штукатурки стен ее остатки падали на пол и сантехники,которые клали теплый пол, уложили пленку на "шишки", договорились с прорабом,что сантехники снимут в одном месте теплый пол уберут "шишки" и уложат обратно. Таким образом удалось добиться самой низкой точки по квартире после стяжки пола в 2.68м.

Следующим этапом было согласование установки сразу утепленных окон на два балкона, чтобы не переплачивать в дальнейшем полную стоимость за установку. Позвонили,все обсудили, совершили небольшую доплату и ждали окон.

К сожалению качество окон от застройщика и качество монтажа нас не устроило и в дальнейшем все равно пришлось их менять. Но об этом далее.

Все это было до приемки квартиры. Следующим этапом была непосредственно ее приемка.