Добавить в корзинуПозвонить
Найти в Дзене

Перепланировка типовой советской двушки 47 м².

Самая обычная двушка. Дом 1977 года. Номера проекта у дома нет, выполнен по "индивидуальному проекту". Нет там никакой индивидуальности. Наоборот - этот проект отличный пример типовой советской двушки. Предлагаю рассмотреть достоинства и недостатки этой квартиры. Квартира 47 м².
Для советской двушки - неплохо. Несущих перегородок нет - замечательно! Маленькая кухня с газом портит всё дело. Газ - значит стены кухни трогать нельзя. Перепланировка может затрагивать только жилые комнаты и коридор. Кухню увеличить не получится. Но можно перенести в гостиную зону для приёма гостей. Гостиная. Как вы помните, в предыдущем проекте (Дизайн яркой двушки) мы пытались разместить 5 гостей на кухне 6 м². (Не самая лучшая идея.) А в этом проекте мы решили разделили функции помещений. Кухня - готовить еду. Гостиная - принимать гостей (она же ведь гостиная). Получился уютный мини-бар в квартире. Он-же рабочее место. Спальня. Кровать, телевизор на стене, шкаф с одеждой. Что ещё нужно современному че
Оглавление

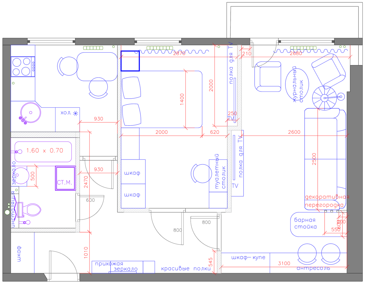
Самая обычная двушка. Дом 1977 года. Номера проекта у дома нет, выполнен по "индивидуальному проекту".

Нет там никакой индивидуальности. Наоборот - этот проект отличный пример типовой советской двушки. Предлагаю рассмотреть достоинства и недостатки этой квартиры.

Квартира 47 м².
Для советской двушки - неплохо.

Несущих перегородок нет - замечательно!

Маленькая кухня с газом портит всё дело. Газ - значит стены кухни трогать нельзя. Перепланировка может затрагивать только жилые комнаты и коридор.

Кухню увеличить не получится. Но можно перенести в гостиную зону для приёма гостей.

Гостиная.

Как вы помните, в предыдущем проекте (Дизайн яркой двушки) мы пытались разместить 5 гостей на кухне 6 м². (Не самая лучшая идея.)

А в этом проекте мы решили разделили функции помещений. Кухня - готовить еду. Гостиная - принимать гостей (она же ведь гостиная).

Получился уютный мини-бар в квартире. Он-же рабочее место.

Спальня.

Кровать, телевизор на стене, шкаф с одеждой. Что ещё нужно современному человеку для счастья?

-3

Но по советским меркам кровать и телевизор непростительная роскошь. Не помещались они в исходной планировке. Пришлось расширять спальню за счёт гостиной.

Кухня.

Как и в прошлом проекте (Дизайн яркой двушки), для визуального расширения пространства использованы простые формы мебели. И Яркий, броский антураж...

Расстановка кухонной мебели стандартная. Габариты кухни не оставляют возможности для манёвра.

Санузел.

Крошечные туалет и ванну решили объединить. И получилось вполне приличный санузел.

Приличный - это если не вдаваться в детали.

-5

А если начать разбираться в подробностях, то окажется, что ванна 1,70 не помещается. Только 1,60 и то с трудом. Стиральную машинку нормально поставить некуда.

Не было у советских людей такой роскоши как стиральная машинка и ванна нормальных размеров. Вот и не предусматривает типовая планировка их размещения.

Коридор 8 м².

Коридор самый обычный.
Узковат. Тесноват. Но с этим можно мириться.

-6

А после того, как мы оформили его в стиле лофт, стал выглядеть более-менее современно.

Резюме.
Что можно сказать о советской двушке.

  • Потолки 2,5 м - низкие по современным меркам.
  • Кривые, хлипкие стены - с ними работать и работать.
  • Кухня 6 м², ещё и с газом - это приговор. Шансов на простор на кухне нет.
  • Неудобный санузел, старые коммуникации.

А так ничего. Несущих стен нет. Площадь хорошая.
_________________________________

Актуальные цены на дизайн проект смотрите на моем сайте.
☎ +7 916 490-9022
#ТриЛуча