Добавить в корзинуПозвонить
Найти в Дзене
АО «ТАМАК»

Премиальное поместье класса «Суперэлит» в современном дизайне

Проект «Т-Цвай–183» - это немецкая технология производства домов и гениальность архитектурного бюро Тотана Кузембаева. Внешний вид дома сугубо функционален благодаря простым формам и преобладанию прямых углов. При этом в высоком уровне комфорта проживания можно не сомневаться — планировка тщательно продумана и выверена. В коттедже 4 спальни и 3 санузла. Есть просторная терраса, небольшой балкон на втором этаже и пристроенный навес для автомобиля. План 1 этажа: Общая площадь первого этажа: гостевая спальня: 16,69 м²; санузел: 5,01 м²; лестница: 2,04 м²; кладовая: 5 м²; кабинет: 8,05 м²; техническое помещение или постирочная: 5,35 м²; коридор: 7,72 м²; тамбур: 3,89 м²; кухня и гостиная: 37,96 м²; терраса: 19,57 м²; навес для машины: 34,74 м². План 2 этажа: Общая площадь второго этажа: балкон: 5,68 м²; спальня: 18,18 м²; лестница: 7,29 м²; гардероб: 5,25 м²; мастер - спальня: 29,02 м²; балкон: 5,48 м²; спальня: 17,57 м²; коридор: 5,33 м²; санузел: 4,15 м²; санузел: 4,65 м². Проект «Т-Цва

Проект «Т-Цвай–183» - это немецкая технология производства домов и гениальность архитектурного бюро Тотана Кузембаева. Внешний вид дома сугубо функционален благодаря простым формам и преобладанию прямых углов. При этом в высоком уровне комфорта проживания можно не сомневаться — планировка тщательно продумана и выверена. В коттедже 4 спальни и 3 санузла. Есть просторная терраса, небольшой балкон на втором этаже и пристроенный навес для автомобиля.

Внешний вид дома
Внешний вид дома

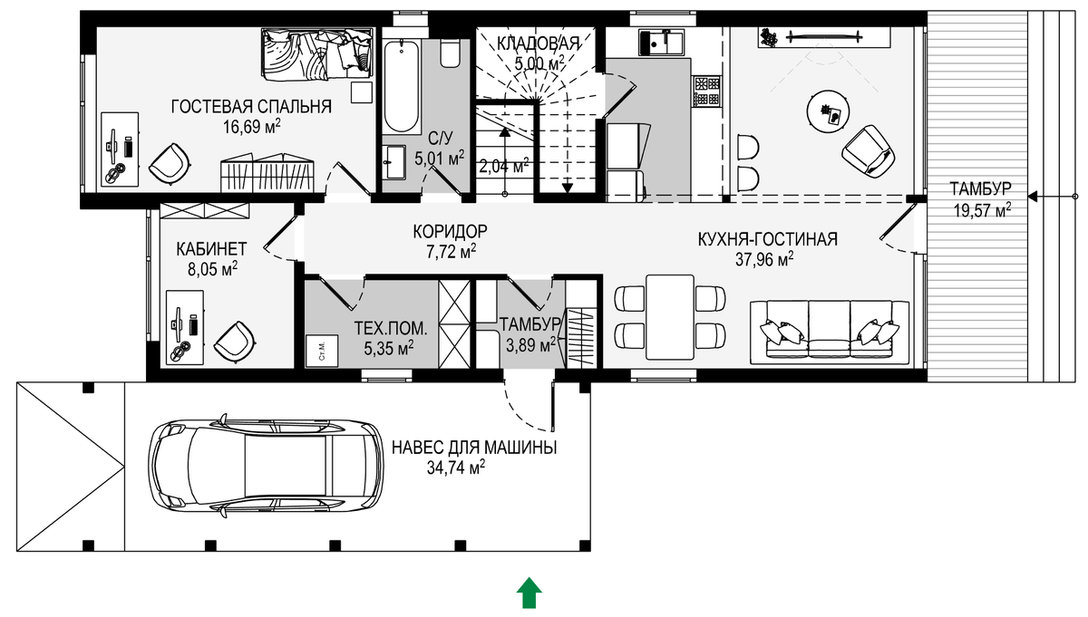
План 1 этажа:

План 1 этажа
План 1 этажа

Общая площадь первого этажа: гостевая спальня: 16,69 м²; санузел: 5,01 м²; лестница: 2,04 м²; кладовая: 5 м²; кабинет: 8,05 м²; техническое помещение или постирочная: 5,35 м²; коридор: 7,72 м²; тамбур: 3,89 м²; кухня и гостиная: 37,96 м²; терраса: 19,57 м²; навес для машины: 34,74 м².

План 2 этажа:

План 2 этажа
План 2 этажа

Общая площадь второго этажа: балкон: 5,68 м²; спальня: 18,18 м²; лестница: 7,29 м²; гардероб: 5,25 м²; мастер - спальня: 29,02 м²; балкон: 5,48 м²; спальня: 17,57 м²; коридор: 5,33 м²; санузел: 4,15 м²; санузел: 4,65 м².

Проект «Т-Цвай-183» — настоящая находка для любителей хайтека, при этом отделка фасада под дерево позволит вписать его в любую природную зону. В доме располагается четыре спальни — одна из них, на первом этаже, отлично подойдет в качестве гостевой. Кроме того в доме есть кабинет, три санузла и просторная кухня-гостиная с выходом на большую террасу. Интересно, что входная группа включает навес для машины — облегченную альтернативу гаражу.

Фасады дома:

Мы производим долговечные дома по запатентованной каркасно-панельной технологии «Тhermomak Haus». Для конструкции дома используются исключительно прочные экологичные цементно-стружечные плиты. Каркас дома изготавливается из сосны и ели, поставляемых с Урала и из Сибири. Пиломатериал проходит строгий входящий контроль, автоматическую калибровку, сортировку и промышленную сушку. В готовых конструкциях сухой пиломатериал не подвергается гниению.

Телефон: 8(800)300-89-77

Наш сайт: https://www.tamak.ru/

Подписывайтесь на канал и ставьте лайки! :)