Найти в Дзене

ПЛАНИРОВКА КВАРТИРЫ СТУДИИ 29 КВ.М.

Был выбор между прямоугольной и квадратной студией. Выбрали вторую. Вариантов планировок в квадратной комнате возникает больше и человеку комфортней. Разделила информацию на два поста, покажу первые пять вариантов с использованием перегородок. Вариантов как сделать перегородку куча: стеклянная, стена высотой 1,2 метра, соединение гкл и стеклянной перегородки, рейки…можно даже убрать, обыграть шторами и цветом. Кстати такую перегородку можно поставить на чистовой пол. Ещё нюанс - тут есть варианты для постоянного проживания, а есть для посуточной аренды. Рассматривала все сценарии и потенциал пространства.
К ВАРИАНТАМ: Все варианты жизнеспособные и эргономичные. Выбор планировки - дело вкуса и удобства хозяев. В следующем посте этой рубрики покажу следующую пятёрку планировок и наш выбор.
Чем меньше ваша квартира, тем тяжелей ее организовать. Чтобы влезло все и не было грустно.
Я с удовольствием помогу сделать ваши квартиры-малышки комфортными для вас. Пишите в Личные сообщения
В чем нюанс? Это квартира - моя. Точнее, мы ее купили с мужем
В чем нюанс? Это квартира - моя. Точнее, мы ее купили с мужем

Был выбор между прямоугольной и квадратной студией. Выбрали вторую. Вариантов планировок в квадратной комнате возникает больше и человеку комфортней.

Разделила информацию на два поста, покажу первые пять вариантов с использованием перегородок.

Вариантов как сделать перегородку куча: стеклянная, стена высотой 1,2 метра, соединение гкл и стеклянной перегородки, рейки…можно даже убрать, обыграть шторами и цветом.

Кстати такую перегородку можно поставить на чистовой пол.

Ещё нюанс - тут есть варианты для постоянного проживания, а есть для посуточной аренды. Рассматривала все сценарии и потенциал пространства.

К ВАРИАНТАМ:

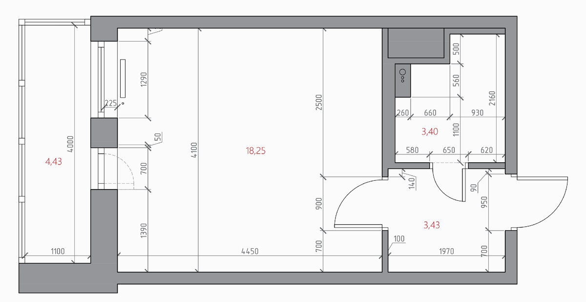
1 ВАРИАНТ - Максимальная нарезка на мини помещения. Помним, что перегородки не глухие. Небольшой кухонный гарнитур и обеденная зона вместе.
1 ВАРИАНТ - Максимальная нарезка на мини помещения. Помним, что перегородки не глухие. Небольшой кухонный гарнитур и обеденная зона вместе.
2 ВАРИАНТ - Повернули кровать, отделили кухню шторкой, сам гарнитур до потолка, вверху шкафы на 60 см. Обедняя зона вынесена с кухни, для удобства поменялось открытие двери в гостиную.
2 ВАРИАНТ - Повернули кровать, отделили кухню шторкой, сам гарнитур до потолка, вверху шкафы на 60 см. Обедняя зона вынесена с кухни, для удобства поменялось открытие двери в гостиную.
3 ВАРИАНТ -Другая конфигурация санузла, в прихожей консоль с пуфом, немного шкафов, барная стойка вместо обеденной группы.
3 ВАРИАНТ -Другая конфигурация санузла, в прихожей консоль с пуфом, немного шкафов, барная стойка вместо обеденной группы.
4 ВАРИАНТ - Кровать перенесена к нижней стене, появился рабочий стол, в целом квартира получилась амфиладного типа, заворачивающаяся как улиточка по спирали.
4 ВАРИАНТ - Кровать перенесена к нижней стене, появился рабочий стол, в целом квартира получилась амфиладного типа, заворачивающаяся как улиточка по спирали.
5 ВАРИАНТ - Максимально укомплектована техникой кухня, стиральная машинка переехала в комнату, шкафы с кухонным гарнитуром в едином массиве. Хранение на лоджии, а в санузле рассмотрела унитаз в другом положении (так как ещё не известно как строители его установят)
5 ВАРИАНТ - Максимально укомплектована техникой кухня, стиральная машинка переехала в комнату, шкафы с кухонным гарнитуром в едином массиве. Хранение на лоджии, а в санузле рассмотрела унитаз в другом положении (так как ещё не известно как строители его установят)

Все варианты жизнеспособные и эргономичные. Выбор планировки - дело вкуса и удобства хозяев. В следующем посте этой рубрики покажу следующую пятёрку планировок и наш выбор.

Чем меньше ваша квартира, тем тяжелей ее организовать. Чтобы влезло все и не было грустно.

Я с удовольствием помогу сделать ваши квартиры-малышки комфортными для вас. Пишите в Личные сообщения.

#планировка #квартирастудия #планировкастудии #кварирадизайн