Найти в Дзене
АО «ТАМАК»

Уникальный двухэтажный дом с мансардой и идеальной планировкой - победитель всероссийского архитектурного конкурса

Проект в скандинавском стиле «Сканди-139» несмотря на относительно небольшой размер привлекает стильным и лаконичным дизайном. В доме может с комфортом разместиться большая семья: помимо двух спален на втором этаже, можно обустроить под еще одну жилую комнату и кабинет на нижнем этаже. А уютная крытая веранда на заднем дворе позволит обустроить уютную зону отдыха на лоне природы. План 1 этажа: Общая площадь первого этажа: терраса 1: 5,38 м²; прихожая: 9,18 м²; холл: 10,92 м²; техническое помещение: 6,03 м²; санузел: 3,31 м²; кабинет: 13,24 м²; терраса 2: 8,73 м²; гостиная: 20,45 м²; кухня - столовая: 14,62 м²; лестница: 2,31 м². Дизайн-проект 1 этажа: План 2 этажа: Общая площадь второго этажа: спальня 1: 15,34 м²; гардероб: 3,63 м²; санузел: 5,84 м²; холл: 6,33 м²; спальня 2: 14,47 м². Дизайн-проект 2 этажа: Презентация дома на форуме «Среда для жизни» Мы производим долговечные дома по запатентованной каркасно-панельной технологии «Тhermomak Haus». Для конструкции дома используются ис

Проект в скандинавском стиле «Сканди-139» несмотря на относительно небольшой размер привлекает стильным и лаконичным дизайном.

В доме может с комфортом разместиться большая семья: помимо двух спален на втором этаже, можно обустроить под еще одну жилую комнату и кабинет на нижнем этаже. А уютная крытая веранда на заднем дворе позволит обустроить уютную зону отдыха на лоне природы.

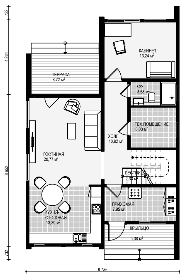
План 1 этажа:

План 1 этажа
План 1 этажа

Общая площадь первого этажа: терраса 1: 5,38 м²; прихожая: 9,18 м²; холл: 10,92 м²; техническое помещение: 6,03 м²; санузел: 3,31 м²; кабинет: 13,24 м²; терраса 2: 8,73 м²; гостиная: 20,45 м²; кухня - столовая: 14,62 м²; лестница: 2,31 м².

Дизайн-проект 1 этажа:

План 2 этажа:

План 2 этажа
План 2 этажа

Общая площадь второго этажа: спальня 1: 15,34 м²; гардероб: 3,63 м²; санузел: 5,84 м²; холл: 6,33 м²; спальня 2: 14,47 м².

Дизайн-проект 2 этажа:

Презентация дома на форуме «Среда для жизни»

Мы производим долговечные дома по запатентованной каркасно-панельной технологии «Тhermomak Haus». Для конструкции дома используются исключительно прочные экологичные цементно-стружечные плиты. Каркас дома изготавливается из сосны и ели, поставляемых с Урала и из Сибири. Пиломатериал проходит строгий входящий контроль, автоматическую калибровку, сортировку и промышленную сушку. В готовых конструкциях сухой пиломатериал не подвергается гниению.

Телефон: 8(800)300-89-77

Наш сайт: https://www.tamak.ru/

Подписывайтесь на канал и ставьте лайки! :)