Добавить в корзинуПозвонить
Найти в Дзене
Филдс

Из однушки 49 м² сделали удобную евродвушку в стиле минимализм + классика: планировка до и после

Дизайнер Алеся Котова превратила однушку 49 м² в евродвушку, где удалось комфортно разместить все необходимые зоны — кухню, гостиную и отдельную спальню. Чтобы превратить московскую квартиру в островок спокойствия, за основу взяли стиль минимализм, а его строгость компенсировали классическими элементами. Планировка до и после Гостиная Когда проектировали новую стену, возникла трудность — между окнами слишком мало места, поэтому не получалось спланировать ровную межкомнатную перегородку. Проблему решили, создав нишу. Её выгодно обыграли, организовав ТВ-зону. Кухня Кухню зонировали и на уровне пола, использовав плитку. Гарнитур сочетает черный низ и белый верх. Светлые навесные шкафы не кажутся громоздкими, а тёмный нижний ряд добавляет пространству глубины. Спальня Спокойную основу оживили фреской за изголовьем, которая создаёт вау-эффект. Прихожая Хозяйка любит шопинг, требовалось разместить её коллекцию одежды, обуви и аксессуаров. Помимо большой системы хранения в спальне, р
Оглавление

Дизайнер Алеся Котова превратила однушку 49 м² в евродвушку, где удалось комфортно разместить все необходимые зоны — кухню, гостиную и отдельную спальню. Чтобы превратить московскую квартиру в островок спокойствия, за основу взяли стиль минимализм, а его строгость компенсировали классическими элементами.

  • Общая площадь: 49 м²
  • Место: Москва
  • Тип дома: ЖК «Лесопарковый»
  • Количество комнат: из однушки в евродвушку
  • Высота потолка: 2,8 м
  • Кто здесь живёт: молодая девушка
  • Бюджет: 3 млн рублей (без черновых материалов и строительных работ)
  • Дизайнер: Алеся Котова
  • Стилист: Ольга Васильева
  • Фото: Евгений Гнесин

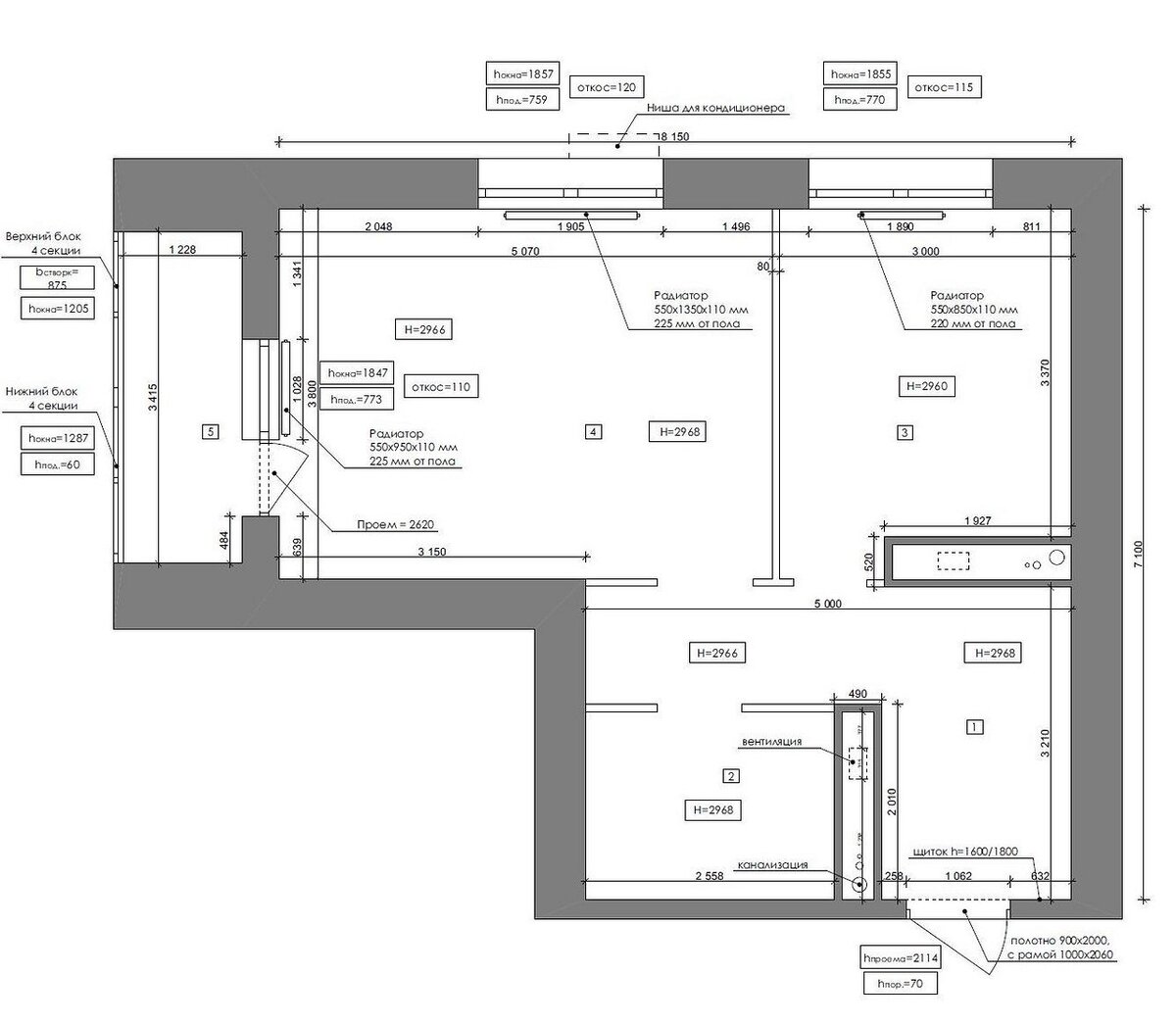
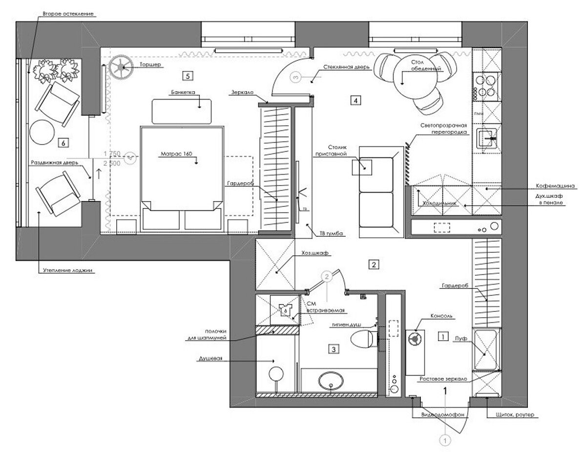
Планировка до и после

Гостиная

Когда проектировали новую стену, возникла трудность — между окнами слишком мало места, поэтому не получалось спланировать ровную межкомнатную перегородку. Проблему решили, создав нишу. Её выгодно обыграли, организовав ТВ-зону.

Кухня

Кухню зонировали и на уровне пола, использовав плитку. Гарнитур сочетает черный низ и белый верх. Светлые навесные шкафы не кажутся громоздкими, а тёмный нижний ряд добавляет пространству глубины.

Спальня

Спокойную основу оживили фреской за изголовьем, которая создаёт вау-эффект.

Прихожая

Хозяйка любит шопинг, требовалось разместить её коллекцию одежды, обуви и аксессуаров. Помимо большой системы хранения в спальне, ряд из шкафов спроектировали в прихожей.

Санузел

Санузел выполнили в светлой гамме, но он не кажется излишне стерильным благодаря игре разных полутонов.

Интересные мнения в комментариях приветствуются. Если материал понравился — ставь лайк!

Филдс это не только блог на Дзене, но и магазин дизайнерской мебели. Дарим 3000 ₽ на первую покупку. Заходите на сайт и выбирайте мебель, которую используют дизайнеры в своих проектах.