Добавить в корзинуПозвонить
Найти в Дзене
DOMAMO - проекты домов

5 проектов домов со вторым светом площадью до 200 кв.м

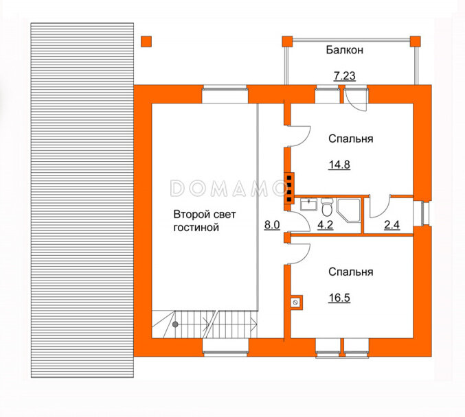
Технология “второй свет” предполагает, что в некоторых местах дома перекрытия между этажами отсутствуют. В итоге дневное освещение в таких комнатах осуществляется через окна двух или более этажей. Обычно двусветными проектируют комнаты, где семья проводит много времени вместе, то есть гостиная или столовая. Второй свет обычно делают в домах от 150 кв. м, на меньшей площади тратить драгоценные метры на это не стоит. Для примера рассмотрим 5 проектов домов со вторым светом до 200 кв. м. 1️⃣ Проект дома со вторым светом и длинной галереей над гостиной (D2707) Половину первого этажа занимает гостиная-кухня, над которой нет других помещений. Свет поступает из высоких окон с двух торцов комнаты. Остальная часть этажа распределена между спальней, ванной, котельной и прихожей с гардеробом. Лестница из гостиной ведет на галерею, из которой можно пройти в 2 спальни и санузел. В одной из спален есть балкон и гардеробная. Такой дом можно построить за 5-15 млн р. Актуальная стоимость проекта и орие
Оглавление

Технология “второй свет” предполагает, что в некоторых местах дома перекрытия между этажами отсутствуют. В итоге дневное освещение в таких комнатах осуществляется через окна двух или более этажей.

Обычно двусветными проектируют комнаты, где семья проводит много времени вместе, то есть гостиная или столовая.

Второй свет обычно делают в домах от 150 кв. м, на меньшей площади тратить драгоценные метры на это не стоит. Для примера рассмотрим 5 проектов домов со вторым светом до 200 кв. м.

1️⃣ Проект дома со вторым светом и длинной галереей над гостиной (D2707)

  • Общая площадь: 159 м²;
  • Длина: 13,9 м;
  • Ширина: 11,6 м;
  • Кровля: натуральная черепица;
  • Материал стен: кирпич;
  • Облицовка внешних стен: облицовочный кирпич;
  • Фундамент: монолитная ж/бетонная плита.

Половину первого этажа занимает гостиная-кухня, над которой нет других помещений. Свет поступает из высоких окон с двух торцов комнаты. Остальная часть этажа распределена между спальней, ванной, котельной и прихожей с гардеробом. Лестница из гостиной ведет на галерею, из которой можно пройти в 2 спальни и санузел. В одной из спален есть балкон и гардеробная.

Такой дом можно построить за 5-15 млн р. Актуальная стоимость проекта и ориентировочные цены на строительство с учетом комплектации указаны на сайте:

Проект дома с крытой террасой, спальней на первом этаже, балконом, вторым светом D2707 | Каталог проектов Домамо

2️⃣ Проект деревянного дома со вторым светом над частью гостиной (D2599)

-3
  • Общая площадь: 183 м²;
  • Длина: 11,8 м;
  • Ширина: 9,2 м;
  • Высота в коньке: 10 м;
  • Кровля: металлочерепица;
  • Материал стен: брус;
  • Облицовка внешних стен: без облицовки;
  • Фундамент: ленточный заглубленный монолитный.

Рядом с прихожей расположен санузел и гостевая спальня. Далее по коридору с одной стороны находится гостиная, переходящая в столовую и далее в кухню. Отдельный вход ведет в котельную, соединенную с основной частью дома через хозблок. На втором этаже из холла открывается вид на гостиную внизу. На этаже размещены 2 спальни, мастер-спальня с балконом, гардеробной и санузлом, а также ванная.

Такой дом можно построить за 4-8 млн р. в зависимости от комплектации. Цену проекта и подробные комплектации можно посмотреть на сайте:

Проект дома из бруса с небольшой кухней D2599 | Каталог проектов Домамо

3️⃣ Проект дома с видом на гостиную из коридора и спален верхнего этажа (D4014)

-5
  • Общая площадь: 189 м²;
  • Длина: 15,5 м;
  • Ширина: 13,3 м;
  • Кровля: гибкая черепица;
  • Материал стен: газобетон;
  • Облицовка внешних стен: деревянная вагонка, мокрая штукатурка;
  • Фундамент: монолитная ж/бетонная плита.

Основную часть первого этажа традиционно занимает дневная зона, состоящая из гостиной, кухни-столовой и террасы. На этаже предусмотрены две спальни разной формы, в одной из них есть выход на веранду. Наверху расположены мастер-спальня, две стандартные спальни и ванная. В двух комнатах предусмотрена возможность организовать вид на гостиную внизу, то есть, по сути, установить окна на внутренних перегородках.

Стоимость строительства такого дома составит 6-20 млн р. Актуальная цена проекта и подробные комплектации указаны на сайте:

Проект дома с косой крышей, спальнями на первом этаже, верандой, террасой, сауной на мансардном этаже, вторым светом, балконом D4014 | Каталог проектов Домамо

4️⃣ Проект дома со стеклянной стеной и гаражом (D3068)

-7
  • Общая площадь: 156 м²;
  • Длина: 18 м;
  • Ширина: 9,2 м;
  • Высота в коньке: 8 м;
  • Кровля: металлочерепица;
  • Материал стен: кирпич;
  • Фундамент: ленточный заглубленный из ФБС.

В этом проекте возможности второго света реализованы на максимуме: гостиную освещает окно, занимающее всю стену. Перед ним находится терраса. Наверху расположены 3 спальни и санузел. В доме также предусмотрен гараж на один автомобиль.

Такой дом можно построить за 5-15 млн р. Актуальная стоимость проекта и ориентировочные цены на строительство с учетом комплектации указаны на сайте:

Проект одноэтажного мансардного дома из кирпича с балконом и современными элементами экстерьера и встроенным гаражом D3068 | Каталог проектов Домамо

5️⃣ Проект дома с асимметричной крышей и мансардными окнами для дополнительного освещения гостиной (D707)

-9
  • Общая площадь: 143 м²;
  • Длина: 11 м;
  • Ширина: 10,9 м;
  • Высота в коньке: 8,3 м;
  • Кровля: металлочерепица;
  • Облицовка внешних стен: деревянная вагонка;
  • Материал стен: газобетон;
  • Фундамент: монолитная ж/бетонная плита.

Гостиная расположена под низким скатом крыши, в ней предусмотрены высокие окна с двух сторон, а также мансардные окна. В этом проекте запланирована изолированная кухня, габаритная котельная, 3 санузла. Все 3 спальни находятся на мансардном этаже.

Стоимость строительства такого дома составит 5-14 млн р. Актуальная цена проекта и подробные комплектации указаны на сайте:

Проект дома из пеноблоков с необычной отделкой D707 | Каталог проектов Домамо

Понравилась подборка? Ставьте палец вверх и подписывайтесь на канал. По каким-либо вопросам и деталям по проектам пишите в комментариях, мы с удовольствием ответим Вам!

⭐ Приглашаем подписаться на нас на других площадках:

Там мы публикуем подборки проектов, варианты красивых решений для интерьеров загородных домов, советы по строительству от главного архитектора Domamo и другую полезную информацию.