Добавить в корзинуПозвонить
Найти в Дзене
ЭТО ВАШ ИНТЕРЬЕР

Мама с дочкой преобразили "однушку" площадью 50 кв. метров

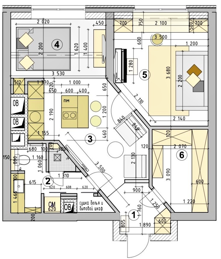
Наша героиня долго присматривалась к различным вариантам квартир. Подходящий вариант подвернулся на севере столицы в новостройке, на 23 этаже. Но так как квартира была небольшой площади, а впихнуть в нее нужно было всё по максимуму, хозяйка обратилась за помощью к дизайнеру. Вместе с дизайнером и дочкой (11-летняя дочка принимала непосредственное участие) у них получилось создать прекрасный интерьер. Проект С самого начала хозяйка с дизайнером перебрали множество вариантов перепланировки, но именно эта планировка со скошенными стенами оказалась максимально функциональной, при которой в квартире расположилось все необходимое. Прихожая Стены в прихожей выполнили в светлом цвете. На полу уложили керамогранит. Справа в углу установили шкаф для верхней одежды сделанный на заказ. Правая дверь от входа ведет в просторную гардеробную. Прихожую от основного пространства зонирует перегородка из реек. Рейки нашли свое продолжение на потолке. Кухня-гостиная За деревянными рейками расположилась н
Оглавление

Наша героиня долго присматривалась к различным вариантам квартир. Подходящий вариант подвернулся на севере столицы в новостройке, на 23 этаже. Но так как квартира была небольшой площади, а впихнуть в нее нужно было всё по максимуму, хозяйка обратилась за помощью к дизайнеру.

Вместе с дизайнером и дочкой (11-летняя дочка принимала непосредственное участие) у них получилось создать прекрасный интерьер.

Проект

  • Местонахождение: г. Москва
  • Площадь квартиры: 50 кв. метров
  • Владельцы: мама с дочкой

С самого начала хозяйка с дизайнером перебрали множество вариантов перепланировки, но именно эта планировка со скошенными стенами оказалась максимально функциональной, при которой в квартире расположилось все необходимое.

Прихожая

Стены в прихожей выполнили в светлом цвете. На полу уложили керамогранит. Справа в углу установили шкаф для верхней одежды сделанный на заказ. Правая дверь от входа ведет в просторную гардеробную. Прихожую от основного пространства зонирует перегородка из реек. Рейки нашли свое продолжение на потолке.

Кухня-гостиная

За деревянными рейками расположилась небольшая гостиная с двумя креслами. Напольное покрытие сделано из пробковой доски, а в кухне уложили керамогранит.

После гостиной расположилась кухонная зона. Посередине комнаты организовали кухонный остров с барной стойкой. Кухонный гарнитур выполнен в цвете венге. Столешница изготовлена из гранита. В острове находится посудомойка, места для хранения и варочная панель.

Спальня

Спальню от кухни зонировали тоже деревянными рейками, чтобы везде проникал естественный свет. Помимо реек спальню зонировали потолком и подиумом. Внутри подиума предусмотрели дополнительные секции для хранения. Посередине подиума вырезали место для матраца, чтобы он не ездил по поверхности. На большом фото в изголовье кровати изображена сама хозяйка квартиры в одной из своих поездок в Азию.

Комната дочери

Одним из пожеланий хозяйки комнаты было добавление синего цвета, так как это её любимый цвет. Все стены, кроме акцентной, выкрасили в светлый оттенок. Акцентную стену оклеили яркими синими обоями со сказочным лесом. У акцентной стены появилось спальное место, а возле окна организовали рабочее место с местами для хранения.

Ванная комната

Слева от входа в ванную комнату, за красивыми фасадами, спрятана небольшая постирочная зона. Весь санузел облицован керамогранитом двух видов. Вместо стандартной ванны здесь установили душевую кабину.

Если вам понравилась статья, то не забудьте поставить лайк и подписаться, чтобы не пропустить новый материал!

Так же пишите в комментариях, что вам понравилось в этом проекте, а что вызывает сомнения.

Если вам будет интересно, то заходите на мой второй новый канал)

https://dzen.ru/id/6313a65e908abf1aca233ad4?lang=ru&referrer_place=layout