Добавить в корзинуПозвонить
Найти в Дзене

Дизайн-проект

Предстоит ремонт, вы уже представили себе, как будет выглядеть ваша новая квартира, и все это держите у себя в голове. Думаете, что сами успешно справитесь с ремонтом своей квартиры без помощи профессионального дизайнера, однако это не так! Делая ремонт без дизайн-проекта, достаточно сложно представить конечный результат. Из-за этого могут возникнуть сложности с организацией пространства, расстановкой мебели или расположением розеток. Ремонт — как черная дыра, куда уплывают все деньги, и проконтролировать расход средств порой очень сложно. С готовым дизайн-проектом на руках вы потратите на ремонт не больше запланированной суммы. Можно пойти от обратного и разработать дизайн-проект именно под Ваш бюджет. Дизайнер составит план, который позволит четко рассчитать бюджет и послужит подробным руководством для реализации задуманного. Чертежи помогут избежать строительных и инженерных ошибок, переделка которых требует значительных финансовых затрат. Имея на руках проект будущего жилища, заказ

Предстоит ремонт, вы уже представили себе, как будет выглядеть ваша новая квартира, и все это держите у себя в голове. Думаете, что сами успешно справитесь с ремонтом своей квартиры без помощи профессионального дизайнера, однако это не так!

Делая ремонт без дизайн-проекта, достаточно сложно представить конечный результат. Из-за этого могут возникнуть сложности с организацией пространства, расстановкой мебели или расположением розеток.

Ремонт — как черная дыра, куда уплывают все деньги, и проконтролировать расход средств порой очень сложно. С готовым дизайн-проектом на руках вы потратите на ремонт не больше запланированной суммы. Можно пойти от обратного и разработать дизайн-проект именно под Ваш бюджет.

Дизайнер составит план, который позволит четко рассчитать бюджет и послужит подробным руководством для реализации задуманного. Чертежи помогут избежать строительных и инженерных ошибок, переделка которых требует значительных финансовых затрат.

Имея на руках проект будущего жилища, заказчик сможет уделять меньше времени прорабу или мастерам при обсуждении рабочих моментов.

Без готового дизайн-проекта достаточно сложно понять, как в результате будет выглядеть пространство в стилистическом отношении. Часто предметы, которые поодиночке смотрятся вполне гармонично, в интерьере не сочетаются друг с другом.

Здесь опять пригодится дизайн-проект. На стадии его подготовки уже становится понятно, подходит ли дизайнерский шкаф, который вам так понравился в магазине, под основной декор помещения, или стоит поискать что-то другое.

Профессиональный дизайнер поможет определиться со стилем оформления, а 3D-визуализация, выполненная на основе пожеланий заказчика, позволит сформировать общую картинку будущего интерьера.

Если не продумать все заранее, многое придется переделывать, и тогда не избежать лишних трат времени, денег и нервов.

Что входит в дизайн проект от Картель Мастеров:

  1. Обмерный план
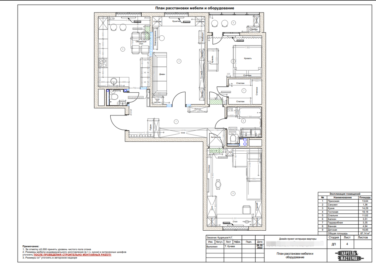
  2. Планировочное решение
-2

3. Демонтаж/монтаж перегородок

-3

4. План полов/потолков

-4

5. План всех электротехнических приборов

-5

6. Схема раскладки плитки

-6

7. Развертки стен

8. Узлы, сечения сложных конструктивных решений

9. Ведомость отделочных материалов

10. 3D визуализация всех помещений

Дизайн-проект от “Картель Мастеров” это не только красивые картинки, это полное руководство и план будущего ремонта. Вы получите, подробное руководство к действиям, которое позволит вам спланировать свои затраты и не даст ремонту затянуться надолго.

https://kartel-masterov.ru/

#ремонт #ремонтмосква #купитьквартирумосква #новостройкимосквы #картельмастеров #дизайнквартиры #дизайнинтерьера