Добавить в корзинуПозвонить
Найти в Дзене
SALON-interior

Современный интерьер с природными фактурами: реконструкция квартиры в сталинке

Квартира в Басманном районе столицы принадлежит молодой семейной паре. Хозяева решили преобразить морально устаревший интерьер и пригласили дизайнера Анастасию Фонареву, чтобы она создала современное пространство с обилием природных материалов, спокойной цветовой палитрой, крупными объемами и контрастными деталями. Заказчики и задачи Заказчики много времени проводят дома и любят принимать гостей. Поэтому одним из главных пожеланий была просторная гостиная с полноценной обеденной зоной, функциональная кухня (хозяйка очень любит готовить) и две спальни (одна из которых детская — для малыша, родившегося сразу после окончания ремонта). Перепланировка «После первого осмотра стало очевидно, что все перегородки лучше демонтировать и отстроить заново, — рассказывает автор проекта Анастасия Фонарева. — Из-за возраста здания они пришли в плохое состояние (дом был построен в 1955 г). Серьезную перепланировку осуществить было невозможно, мы были ограничены изначальной Г-образной формой квартиры, р
Оглавление

Квартира в Басманном районе столицы принадлежит молодой семейной паре. Хозяева решили преобразить морально устаревший интерьер и пригласили дизайнера Анастасию Фонареву, чтобы она создала современное пространство с обилием природных материалов, спокойной цветовой палитрой, крупными объемами и контрастными деталями.

Заказчики и задачи

Заказчики много времени проводят дома и любят принимать гостей. Поэтому одним из главных пожеланий была просторная гостиная с полноценной обеденной зоной, функциональная кухня (хозяйка очень любит готовить) и две спальни (одна из которых детская — для малыша, родившегося сразу после окончания ремонта).

Перепланировка

«После первого осмотра стало очевидно, что все перегородки лучше демонтировать и отстроить заново, — рассказывает автор проекта Анастасия Фонарева. — Из-за возраста здания они пришли в плохое состояние (дом был построен в 1955 г). Серьезную перепланировку осуществить было невозможно, мы были ограничены изначальной Г-образной формой квартиры, расположением стояков и несущей колонной. Фактически все помещения остались на своих местах — осуществили только оптимизацию габаритов и пропорций под необходимый функционал. Так, гостиная увеличилась за счет спальни и добавления части коридора; со стороны ванной комнаты появился постирочный шкаф, который мы смогли установить, «взяв» немного от площади детской комнаты».

Для владельцев был принципиален вопрос устройства как можно большего количества закрытых систем хранения. Поэтому в прихожей разместили большой встроенный шкаф для сезонной одежды и длительного хранения. За ним, со стороны коридора в санузел и детскую, поставили вместительный хозяйственный шкаф. В санузле в нише за зеркальными фасадами организовали постирочную зону. В спальне хозяев всю стену отдали вместительному платяному шкафу высотой до потолка — его размеры в полной мере удовлетворили потребности хозяев в хранении личных вещей.

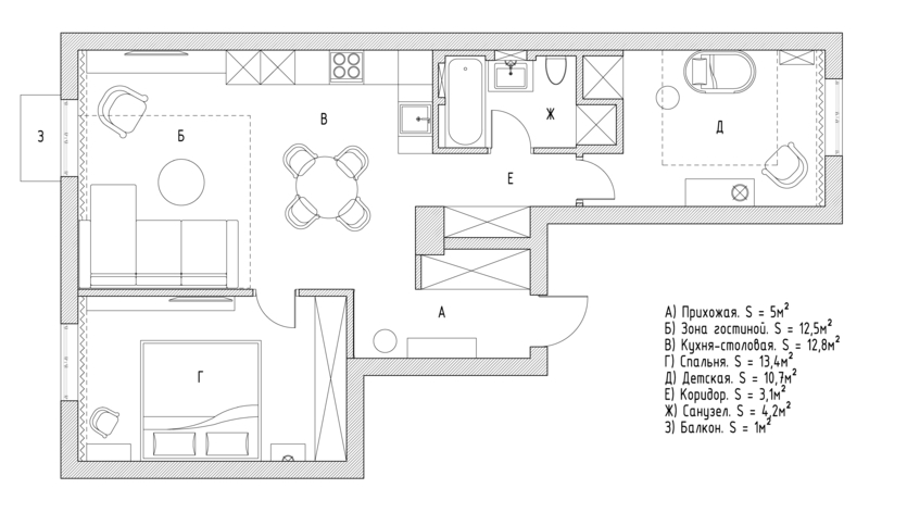
Планировка квартиры
Планировка квартиры

Дизайн

Поскольку заказчики тяготеют к современной стилистике, дизайнер оформила в интерьер в стиле мягкого, уютного минимализма, который отражает атмосферу городской жизни, и в тоже время делает дом идеальным местом отдыха от суеты мегаполиса. Пространство наполняют простые архитектурные формы и объемы, а разнообразие вносят нюансные акценты цвета, декора, графичные и геометричные элементы.

В качестве основного напольного покрытия автор проекта остановилась на дубовой инженерной доске с тонировкой тобакко, ее оттенок задал направление в цветовой палитре. «Колористическое решение для всей квартиры выполнено в единой концепции: различные оттенки серого (от светлых до сложных темных тонов), насыщенное дерево в качестве фона и черные графичные детали, — замечает Анастасия. — В качестве акцентов (оттенки терракоты, охры) выступают аксессуары, текстиль и предметы искусства».

«Ввиду сдержанной палитры интерьера при выборе декора и текстиля нужно было ввести дополнительные цветовые акценты, — заключает автор проекта. — В общую гамму прекрасно вписались терракота, охра, золото — эти оттенки вносят тепло и гармонируют с деревом. В гостиной-кухне много керамических объектов минималистской стилистики: геометричные вазы, блюда. В тон им подобраны диванные подушки с активным геометрическим рисунком. Ковер и живопись над диваном включают все оттенки помещения и собирают палитру воедино. Спальню украсили керамическими вазами, графическими работами в черных рамах и подушками с геометрическим принтом. Все это вместе придало интерьеру динамику и ритмичность».

Гостиная

Пол в гостиной выстелен инженерной доской (Lab Arte) из дуба. Стены окрашены краской Dulux. В качестве основного освещения выбраны трековые системы. Их черный цвет и линейные формы задают ритмичность интерьеру и перекликаются с другими графичными объектами. В зоне гостиной трековые светильники диммируются — это позволяет создать вечером камерную атмосферу с приглушенным освещением. Ковер — Tetris Gold по дизайну Евы Бергман, Le Kovёr. Кресло — La Forma. Журнальный столик и декор — Moon-Stores. Над диваном — живопись Валерия Песина, галерея AG Gallery.

Автор проекта: Анастасия Фонарева. Фото: Евгений Кулибаба. Стиль: Екатерина Наумова
Автор проекта: Анастасия Фонарева. Фото: Евгений Кулибаба. Стиль: Екатерина Наумова

Кухня-столовая

Зона кухни уравновешена двумя темными объемами: кухонными шкафами сложного темно-серого цвета и диваном графитового оттенка, которые выразительно смотрятся на фоне стен спокойного светлого оттенка. Теплые природные ноты вносит пол из дуба и шпон из древесины американского ореха на верхних кухонных шкафах. Живость интерьеру придают текстиль и декор, а ритмичность задают черные детали.

Кухонная мебель выполнена по эскизам автора проекта. Высота потолков позволила организовать третий ряд кухонных шкафов, предназначенных для предметов длительно хранения и редкого использования. Обеденный стол, Kenner. Стулья, Roomer. На стене — картина Дианы Девицкой, галерея AG Gallery. На столешнице — графика Виктора Пономаренко, галерея AG Gallery. Фартук выполнен из керамогранита Vitra, имитирующего мрамор. Он вобрал в себя все серые и тауповые оттенки помещения. Кухня выполнена по эскизам автора проекта. Столешница изготовлена из кварца. Кухонная мойка и смеситель — Blanco. Обеденный стол — Kenner. Стулья — Roomer.

Автор проекта: Анастасия Фонарева. Фото: Евгений Кулибаба. Стиль: Екатерина Наумова
Автор проекта: Анастасия Фонарева. Фото: Евгений Кулибаба. Стиль: Екатерина Наумова

Спальня

Цветовое решение спальни настраивает на отдых и создает расслабляющую атмосферу. Обилие деревянных элементов (панели из шпона дуба и фасады шкафов) оттеняют серо-сиреневые оттенки: от светлых на стенах до более темных и насыщенных на портьерах.

Стена за изголовьем целиком отделана панелями из шпона дуба, которые переходят в фасады шкафа. Корпусная мебель выполнена по эскизам автора проекта. Кровать — Lavsit. Бра — White Label Living. С одной стороны кровати панели переходят в зеркало (St.Holzmebel) высотой до потолка. Помимо встроенных точечных светильников, по желанию заказчицы в комнате повесили подвесную люстру (ArteLamp) в виде перекрещенных колец. На стене — графика Франсуа Саук, галерея Carre D’Artistes Moscow. Текстиль — Dantone Home, Moon-Stores, ИКЕА.

Автор проекта: Анастасия Фонарева. Фото: Евгений Кулибаба. Стиль: Екатерина Наумова
Автор проекта: Анастасия Фонарева. Фото: Евгений Кулибаба. Стиль: Екатерина Наумова

Детская

В детской комнате цветовая гамма более красочная: тут использовано сочетание светлого серо-голубого цвета и насыщенного сине-изумрудного и белая мебель. Шкаф выполнен по эскизам автора проекта на столярном производстве. Пуф — La Forma. Текстиль — Tkano.

Автор проекта: Анастасия Фонарева. Фото: Евгений Кулибаба. Стиль: Екатерина Наумова
Автор проекта: Анастасия Фонарева. Фото: Евгений Кулибаба. Стиль: Екатерина Наумова

Ванная комната

Текстура керамогранита под натуральный камень напоминает замшу, которая смягчает брутальность пространства.

Автор проекта: Анастасия Фонарева. Фото: Евгений Кулибаба. Стиль: Екатерина Наумова
Автор проекта: Анастасия Фонарева. Фото: Евгений Кулибаба. Стиль: Екатерина Наумова

Санузел

Для того чтобы санузел не выглядел «холодной коробкой», часть стен выкрасили в ягодно-красный цвет, яркость которого приглушает тумба под раковиной в шпоне американского ореха. Небольшие габариты помещения зрительно увеличивает переходящий с пола на одну из стен графитово-черный керамогранит, создающий иллюзию «ковра», выстилающегося вдаль.

Пол выложен керамогранитом с фактурой натурального камня. Фактура его поверхности отдаленно напоминает замшу, что добавляет уюта восприятию. Здесь также использованы встроенные потолочные светильники с необходимой степенью влагозащиты — им не страшна повышенная влажность. За высокими зеркальными фасадами располагается постирочный шкаф. За зеркалом над раковиной спрятан небольшой шкафчик для косметических принадлежностей, изготовленный по эскизам дизайнера компанией St.Holzmebel.

Автор проекта: Анастасия Фонарева. Фото: Евгений Кулибаба. Стиль: Екатерина Наумова
Автор проекта: Анастасия Фонарева. Фото: Евгений Кулибаба. Стиль: Екатерина Наумова

Прихожая

Монохромное оформление прихожей разбавлено подвесной консолью в шпоне ореха и черными деталями (трековыми светильниками, обрамлениями зеркал, цоколем пуфа).

Крупный минималистский объем встроенного шкафа с фасадами в темной отделке уравновешен визуально легкой подвесной консолью. Большое зеркало в тонком черном обрамлении напротив входной двери стирает границы помещения и зрительно увеличивает пространство. Круглое зеркало над консолью и пуф от Lavsit сглаживают визуально строгую геометрию помещения. На полу — керамогранит Italon. Шкаф, консоль выполнены по эскизам автора проекта. Зеркала изготовлены по эскизам автора проекта компанией St.Holzmebel.

Автор проекта: Анастасия Фонарева. Фото: Евгений Кулибаба. Стиль: Екатерина Наумова
Автор проекта: Анастасия Фонарева. Фото: Евгений Кулибаба. Стиль: Екатерина Наумова

Проекты архитекторов и дизайнеров, интерьеры знаменитостей, обзоры новинок мировых брендов — на нашем канале! Подписывайтесь: https://zen.yandex.ru/salon.ru

Безопасный интерьер: 5 мнений профессионалов о том, как его создать

Правильная планировка, плотные теплые оттенки, умные технологии и другие секреты благоприятной обстановки дома. Плюс — чек-лист от дизайнера.

Стоит ли делать ставку на модные оттенки осени: 5 мнений дизайнеров

Зеленые, ржавые и угольные оттенки на пике популярности. Узнали у дизайнеров, насколько они актуальны для российских интерьеров.

Понравилось ли вам такое преображение сталинки? Поделитесь мнением в комментариях!