Добавить в корзинуПозвонить
Найти в Дзене
Филдс

Как дизайнеры организовали пространство двушки 75 м², чтобы комфортно разместить большую семью: планировка до и после

Дизайнер Карина Маголина оформила двухкомнатную квартиру площадью 75 м² для семьи с двумя детьми. Удалось комфортно спланировать спальню, детскую, полноценную кухню и зону гостиной. Таким образом, двушка функционально превратилась в трёшку. Планировка до и после Кухня-гостиная Границей стала геометричная боковая перегородка, лаконичное решение позволило не загромождать пространство и оставить много света и воздуха. Чтобы кухня не уводила внимание от жилой зоны, отделку сделали единой: стены выкрасили в сложный оттенок бежевого с розоватым подтоном, весь пол в помещении устелили паркетом, разложив его «ёлочкой». Спальня Спальню оформили в технике тон в тон. Явно преобладает спокойная бежевая гамма, при этом задействовали несколько сложных оттенков, которые вступают в игру и делают интерьер многослойным. Детская Интерьер детской более динамичный. Удалось сохранить баланс: оформление получилось интересным для детей, но при этом оно не отступает от общей концепции, выглядит лаконичн
Оглавление

Дизайнер Карина Маголина оформила двухкомнатную квартиру площадью 75 м² для семьи с двумя детьми. Удалось комфортно спланировать спальню, детскую, полноценную кухню и зону гостиной. Таким образом, двушка функционально превратилась в трёшку.

  • Общая площадь: 75 м²
  • Место: Санкт-Петербург
  • Тип дома: ЖК «Ленинград»
  • Количество комнат: 2
  • Высота потолка: 2,7 м
  • Кто здесь живёт: семейная пара с двумя детьми
  • Бюджет: 6 млн рублей
  • Стилист: Наталья Орешкова
  • Фото: Екатерина Титенко

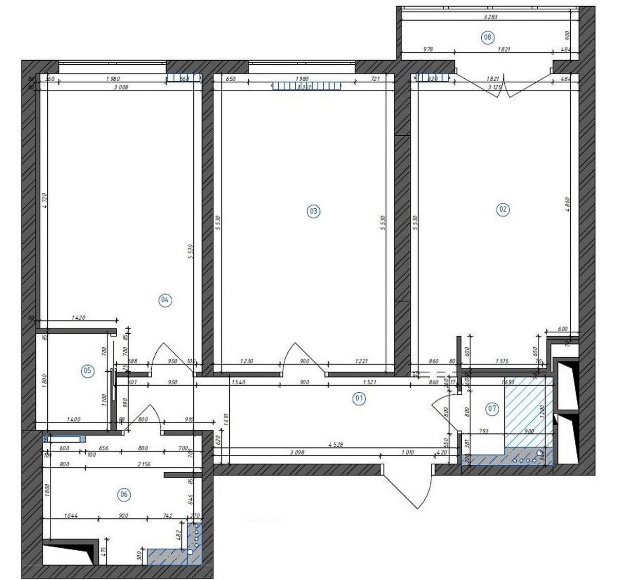
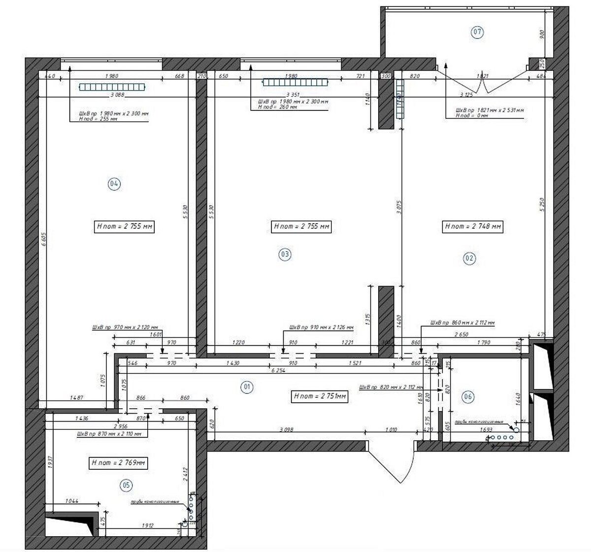
Планировка до и после

Кухня-гостиная

Границей стала геометричная боковая перегородка, лаконичное решение позволило не загромождать пространство и оставить много света и воздуха. Чтобы кухня не уводила внимание от жилой зоны, отделку сделали единой: стены выкрасили в сложный оттенок бежевого с розоватым подтоном, весь пол в помещении устелили паркетом, разложив его «ёлочкой».

Спальня

Спальню оформили в технике тон в тон. Явно преобладает спокойная бежевая гамма, при этом задействовали несколько сложных оттенков, которые вступают в игру и делают интерьер многослойным.

Детская

Интерьер детской более динамичный. Удалось сохранить баланс: оформление получилось интересным для детей, но при этом оно не отступает от общей концепции, выглядит лаконично и не скатывается в излишнюю пестроту.

Прихожая

В квартире сохранили линейный коридор, которые связывает все помещения. По всей длине одной из стен протянули вместительную встроенную систему хранения.

Санузлы

Санузлы оформили по одной схеме, чтобы объединить детали интерьера стилистически. Светлые стены сочетали с тёмным полом, все поверхности облицевали керамогранитом.

Интересные мнения в комментариях приветствуются. Если материал понравился — ставь лайк!

Филдс это не только блог на Дзене, но и магазин дизайнерской мебели. Дарим 3000 ₽ на первую покупку. Заходите на сайт и выбирайте мебель, которую используют дизайнеры в своих проектах.