Добавить в корзинуПозвонить
Найти в Дзене

Проект современного, стильного дома с террасами на каждом этаже, навесом для машин и 4 спальнями

Проект дома «Альфа» влюбляет в себя с первого взгляда: актуальный стиль конструктивизм с его уникальной геометрией, функциональная плоская крыша, белоснежные стены фасада, разбавленные отделкой деревом второго этажа, и огромные панорамные окна, позволяющие солнечному свету наполнять все внутреннее пространство. В этом светлом и роскошном доме с комфортом разместятся и большая семья из 4-8 человек, и многочисленные гости. Площадь дома - 188 кв.м.
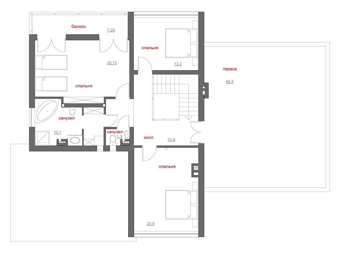
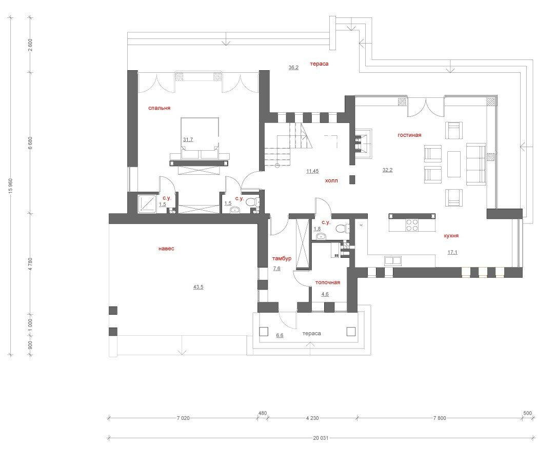
Габариты - 16.0 м x 20.0 м. Планировка Проект «Альфа» — это дом неспешного отдыха и наслаждения каждым моментом жизни. Так, на первом этаже расположены: спальня с отдельным санузлом и гардеробом, просторная гостиная с камином и выходом на террасу, функциональная кухня-столовая и санузел. На втором этаже размещены еще три спальни и санузел. Одна из комнат ведет на балкон, а холл – на одно из главных достояний этого превосходного дома – большую открытую террасу, где Вы сможете наслаждаться ласковыми солнечными лучами и свежевыжатыми соками, нежас

Проект дома «Альфа» влюбляет в себя с первого взгляда: актуальный стиль конструктивизм с его уникальной геометрией, функциональная плоская крыша, белоснежные стены фасада, разбавленные отделкой деревом второго этажа, и огромные панорамные окна, позволяющие солнечному свету наполнять все внутреннее пространство.

В этом светлом и роскошном доме с комфортом разместятся и большая семья из 4-8 человек, и многочисленные гости.

Площадь дома - 188 кв.м.
Габариты - 16.0 м x 20.0 м.

Планировка

Проект «Альфа» — это дом неспешного отдыха и наслаждения каждым моментом жизни. Так, на первом этаже расположены: спальня с отдельным санузлом и гардеробом, просторная гостиная с камином и выходом на террасу, функциональная кухня-столовая и санузел. На втором этаже размещены еще три спальни и санузел. Одна из комнат ведет на балкон, а холл – на одно из главных достояний этого превосходного дома – большую открытую террасу, где Вы сможете наслаждаться ласковыми солнечными лучами и свежевыжатыми соками, нежась в шезлонге.

Проект можно адаптировать под любой вид строительного материала — кирпич, газобетон, керамзитобетон, монолит и керамический блок.

👉Оставьте заявку прямо сейчас для получения оптимального коммерческого предложения. Для этого переходите по ссылке => проект «Альфа».

Смотрите также на нашем сайте другие проекты двухэтажных домов.

⭐ Мы спроектируем и построим «под ключ» дом Вашей мечты! Воплощайте вместе с нами в жизнь свои фантазии!

Позвоните нам для консультации: 8-965-199-61-04
Также советуем зайти на наш официальный сайт
stone-wood-house.ru и winerberger.ru

#строительство #проектирование #проект дома #дом с видом #коттедж #загородный дом #ремонт #дом с 4 спальнями #дома с 4 спальнями #проект частный дом