Добавить в корзинуПозвонить
Найти в Дзене
LogWorks | РУБЛЕНЫЕ ДОМА

Как устанавливаются окна и двери в срубах?

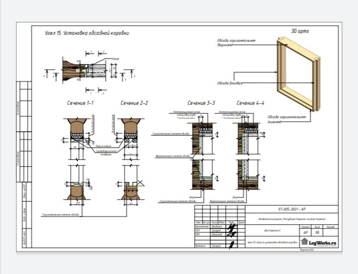
Монтаж дверей и окон в рубленых домах – это специфическая процедура, поскольку после возведения сруба неизбежна его усадка. Поэтому, установка дверей и оконных конструкций на голый сруб невозможна, требуется монтаж дополнительного конструкционного элемента, именуемого «обсада». Обсада оконных и дверных проемов в деревянном доме выполняет следующие функции: • Помогает сохранять геометрию сруба, усиливает торцевую часть проемов и удерживает венцы, не давая им смещаться. • Обеспечивает хорошее функциональное состояние дверей и стеклопакетов, а также исключает их деформацию и разрушение; • Снижает риск потери герметичности между соприкасающимися частями; Упрощенно обсада представляет собой деревянную раму, окаймляющую проем и не препятствующую усадке сруба. Различают два основным вида данной конструкции: 1. Т-образная обсада «в шип». В торцевых частях проема вырезается паз, а на боковых стенках короба формируется соответствующий шип, верхняя и нижняя доска крепятся к боковым. Таким о

Монтаж дверей и окон в рубленых домах – это специфическая процедура, поскольку после возведения сруба неизбежна его усадка. Поэтому, установка дверей и оконных конструкций на голый сруб невозможна, требуется монтаж дополнительного конструкционного элемента, именуемого «обсада».

Обсада оконных и дверных проемов в деревянном доме выполняет следующие функции:

• Помогает сохранять геометрию сруба, усиливает торцевую часть проемов и удерживает венцы, не давая им смещаться.

• Обеспечивает хорошее функциональное состояние дверей и стеклопакетов, а также исключает их деформацию и разрушение;

• Снижает риск потери герметичности между соприкасающимися частями;

Упрощенно обсада представляет собой деревянную раму, окаймляющую проем и не препятствующую усадке сруба. Различают два основным вида данной конструкции:

1. Т-образная обсада «в шип». В торцевых частях проема вырезается паз, а на боковых стенках короба формируется соответствующий шип, верхняя и нижняя доска крепятся к боковым. Таким образом обсадная коробка четко фиксируется в проеме и при этом может свободно перемещаться в пределах вертикальной оси не меня своей геометрии.

2. П-образная обсада «в колоду». Способ, похожий на предыдущий, но более дорогой в исполнении. В этом случае торцевых частях проема создается шип, который служит направляющей для короба. А на боковых частях короба вырезаются соответствующие пазы.

Обсадная коробка может изготавливаться непосредственно в условиях строительной площадки, либо поставляться как готовое столярное изделие, устанавливаемое непосредственно перед монтажом окон. Во втором случае во время сборки сруба в торцах проемов вырезается паз и в него вставляется временный брусок, направляющий усадку.

-2