Найти в Дзене

КРЫМ 101 м2 - проект одноэтажного дома 10х12 с террасой,с 3 спальнями, панорамным окном в гостиной

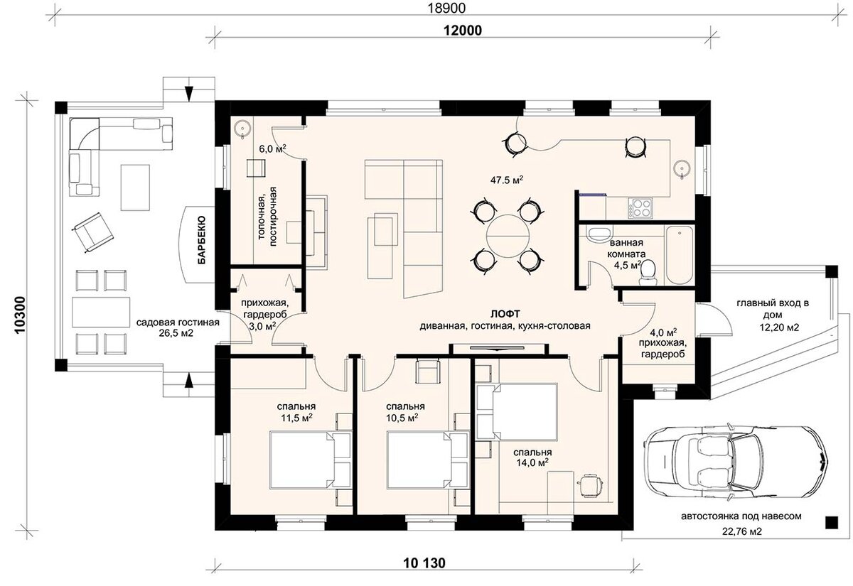
Стиль дома можно охарактеризовать как средиземноморский. Особенность его архитектуры - гармоничный силуэт разновысокой шатровой кровли, создающий одновременное ощущение и динамичности и устойчивой стабильности. КРЫМ - один из представителей коллекции домов МАЛЬТА, самый маленький. ПЛАНИРОВКА В планировке дома необычны два момента:
- все спальни открываются в гостиную
- оба выхода на улицу дополнены тамбурами. В доме просторная садовая терраса, а рядом с главным входом в дом под общей с ним кровлей - площадка для парковки автомобиля. Расположение помещений на этажах классическое - в одной половине дома - общие помещения в едином пространстве, в другой - изолированные личные комнаты членов семьи.  Композиционная особенность интерьеров - открытость из дома вида на ландшафт участка через широкий и высокий витраж от пола каминной. 👇 Если нравится дом внешне и по составу помещений, но нужно поменьше, смотрите аналог 👇 Если побольше, то вот этот Все одноэтажные дома ИНВАПОЛИС в каталоге
Оглавление

Стиль дома можно охарактеризовать как средиземноморский. Особенность его архитектуры - гармоничный силуэт разновысокой шатровой кровли, создающий одновременное ощущение и динамичности и устойчивой стабильности.

КРЫМ - один из представителей коллекции домов МАЛЬТА, самый маленький.

ПЛАНИРОВКА

В планировке дома необычны два момента:
- все спальни открываются в гостиную
- оба выхода на улицу дополнены тамбурами.

-2

В доме просторная садовая терраса, а рядом с главным входом в дом под общей с ним кровлей - площадка для парковки автомобиля. Расположение помещений на этажах классическое - в одной половине дома - общие помещения в едином пространстве, в другой - изолированные личные комнаты членов семьи. 

Одноэтажные дома 100-120 м2 - шесть проектов, продолжение
Инваполис - проекты рациональных домов 6 февраля 2023

Композиционная особенность интерьеров - открытость из дома вида на ландшафт участка через широкий и высокий витраж от пола каминной.

👇 Если нравится дом внешне и по составу помещений, но нужно поменьше, смотрите аналог

👇 Если побольше, то вот этот

Все одноэтажные дома ИНВАПОЛИС в каталоге на сайте...

КОНСТРУКЦИИ.

Фундамент - ж/б ленточный на глубину промерзания.

Несущие наружные стены толщиной 375 мм - из газоблока.

Перегородки - толщиной 100 мм также из газоблока.

Перемычка проема витража из железобетона, а остальные - из газоблока.

Полы этажа утепленные.

Конструкция кровли устроена по деревянным балкам и стропилам и утеплена над отапливаемой частью дома.

Покрытие кровли - металлочерепица.

СОСТАВ ПРОЕКТА.

Ориентировочная готовность проекта -ноябрь этого года. Проект будет разработан в двух разделах: раздел АР(архитектурные решения)и раздел СКР (строительно-конструктивные решения).

Стоимость указана на странице дома на основном сайте ИНВАПОЛИС, и актуальна при разработке проекта в указанных выше конструкциях.

► Если Вам интересны наши проекты, подписывайтесь на канал ИНВАПОЛИС-ДЗЕН, смотрите обзоры и подборки домов, задавайте вопросы авторам в комментариях.

► Также следить за новостями и смотреть обзоры проектов можно в ТЕЛЕГРАММ-КАНАЛЕ ИНВАПОЛИС – подписывайтесь, контент местами отличается 😊