Найти в Дзене

3 проекта одноэтажных домов из газобетона с 4 спальнями

Представляем Вашему вниманию подборку одноэтажных домов из газобетона (кирпича) для семьи из 4-5 человек. Для комфортного проживания большой семьей в загородных домах запланировано 4 спальни, объемные гостиные, соединенные с кухней-столовой, и просторные террасы. Все коттеджи имеют современные фасадные решения, а их планировки могут быть выполнены как в прямом, так и зеркальном варианте. Кабинет в доме может также служить спальней, а одну из спален при необходимости можно заменить сауной. Располагать дома лучше террасой в сторону южных направлений. ⬆ Проект одноэтажного дома 628В «Леда», 145 м2 В этом удобном загородном доме гостевая зона запланирована в центре, а спальни - по обе стороны от гостиной: 2 детские с душевой комнатой – в одном блоке, а спальня хозяев с ванной комнатой и кабинет (или еще одна спальня) – в другом. Терраса находится на главном фасаде. ⬆⬆ Проект одноэтажного дома 767В «Аризона» 767В, 185 м2 Вместительный загородный дом. Кухня в доме имеет П-образную форму и
Оглавление

Представляем Вашему вниманию подборку одноэтажных домов из газобетона (кирпича) для семьи из 4-5 человек. Для комфортного проживания большой семьей в загородных домах запланировано 4 спальни, объемные гостиные, соединенные с кухней-столовой, и просторные террасы.

Все коттеджи имеют современные фасадные решения, а их планировки могут быть выполнены как в прямом, так и зеркальном варианте. Кабинет в доме может также служить спальней, а одну из спален при необходимости можно заменить сауной. Располагать дома лучше террасой в сторону южных направлений.

⬆ Проект одноэтажного дома 628В «Леда», 145 м2

В этом удобном загородном доме гостевая зона запланирована в центре, а спальни - по обе стороны от гостиной: 2 детские с душевой комнатой – в одном блоке, а спальня хозяев с ванной комнатой и кабинет (или еще одна спальня) – в другом. Терраса находится на главном фасаде.

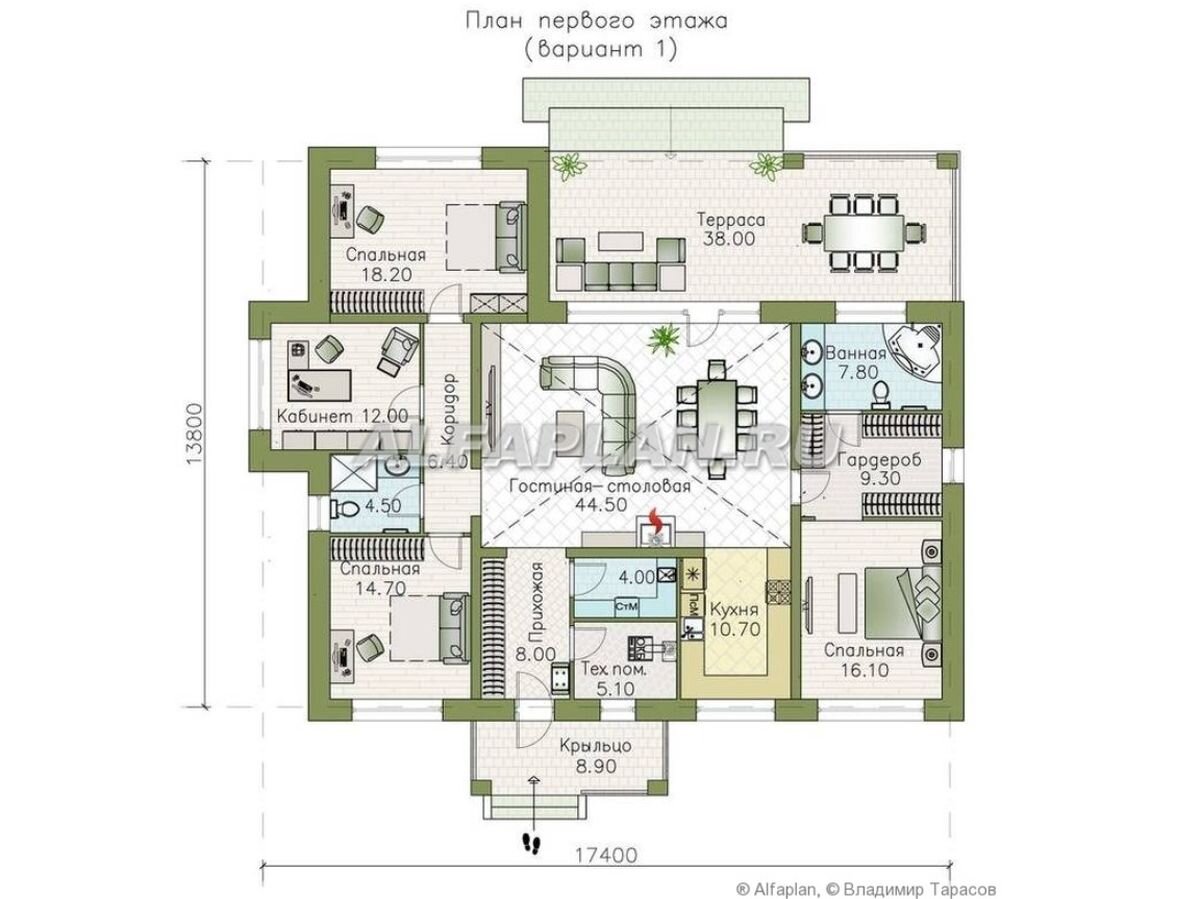
⬆⬆ Проект одноэтажного дома 767В «Аризона» 767В, 185 м2

Вместительный загородный дом. Кухня в доме имеет П-образную форму и будет удобна в эксплуатации. Мастер-спальня хозяев дома с гардеробной и ванной находится в отдалении от блока, где размещены остальные 3 спальни (одна из которых может быть заменена на сауну).

⬆⬆⬆ Проект дома 666А «Горизонталь» , 205 м2

Большой коттедж с диагональной планировкой, которая будет наиболее актуальна для угловых участков. Планировка дома просторна, все помещения очень светлые. Мастер-спальня и остальные жилые комнаты также разнесены в разные стороны от гостиной. В загородном доме есть удобные подсобные помещения (кладовая-постирочная рядом с кухней, гардеробная при входе в дом). Терраса выходит на боковой фасад.

Строительство домов под ключ из газобетона или керамического кирпича неоднократно реализовано и может быть выполнено в любом регионе России. Рабочая документация имеет 100% готовность и может быть предоставлена Вам в кратчайшие сроки.

🟢Подробности и заказ проектов по ссылкам ниже:

Проект 628В «Леда», Проект 767В «Аризона», Проект 666А «Горизонталь»

Оцените эти проекты 👍👍👍 и пишите Ваши вопросы в комментариях ⬇ ! Мы будем рады ответить!

Подписывайтесь на наш канал Яндекс ДЗЕН. У нас – только уникальные авторские проекты домов. Еще больше интересных постов в нашем Telegram, VK.

«Фото построенных домов » – более 450 фотогалерей строительства домов по нашим проектам. Стройте дома по проектам ®Альфаплан!

#проектодноэтажногодома #дом #загородныйдом #коттедж #одноэтажныйдом #проектирование #архитектура #планировкадома #купитьпроект #проектыдомаключ #строительстводомов