Найти в Дзене

Проект дома для семьи из 3 человек

При планировании строительства дома, каждый собственник подходит к этапу выбора проекта. Первое, что нужно обозначить в данном вопросе – размеры будущего дома.
Для того, чтобы правильно это сделать необходимо определить основные требования от дома, его функционал, индивидуальные особенности. Исходя из средних запросов среднестатистической ячейки общества из трех человек для рациональной эксплуатации жилое помещение частного сектора должно включать: Гостиную – 25-30 м2. Кроме зоны отдыха и приёма гостей в неё можно разместить стеллажи для книг или спортивный тренажер. Кухню - 14-30 м2. Согласно современным стандартам удобства дизайнеры советуют совмещать кухню и столовую. С помощью визуальных приёмов, мебели или элементов внутренней отделки эти зоны можно разделить. 2-ух местная спальню – 14-20 м2. Эту комнату принято делать на солнечной стороне и обустраивать согласно вашим личным предпочтениям. Детскую – 14-20 м2. При её проектировании важно предусмотреть в ней место для письменных
Проект дома
Проект дома

При планировании строительства дома, каждый собственник подходит к этапу выбора проекта. Первое, что нужно обозначить в данном вопросе – размеры будущего дома.

Для того, чтобы правильно это сделать необходимо определить основные требования от дома, его функционал, индивидуальные особенности.

Исходя из средних запросов среднестатистической ячейки общества из трех человек для рациональной эксплуатации жилое помещение частного сектора должно включать:

Гостиную – 25-30 м2. Кроме зоны отдыха и приёма гостей в неё можно разместить стеллажи для книг или спортивный тренажер.

Кухню - 14-30 м2. Согласно современным стандартам удобства дизайнеры советуют совмещать кухню и столовую. С помощью визуальных приёмов, мебели или элементов внутренней отделки эти зоны можно разделить.

2-ух местная спальню – 14-20 м2. Эту комнату принято делать на солнечной стороне и обустраивать согласно вашим личным предпочтениям.

Детскую – 14-20 м2. При её проектировании важно предусмотреть в ней место для письменных занятий и игр.

Ванную комнату – 6-12 м2.

Гардеробную – 2-5 м2. Для рационального использованья дизайнеры не советуют делать её слишком маленькой. Просторная гардеробная поможет Вам обойтись без лишних шкафов в доме, сохранив свободное жилое пространство.

Бойлерную – 5-10 м2. В этом помещении также можно расположить прачечную, чтобы разгрузить ванную комнату.

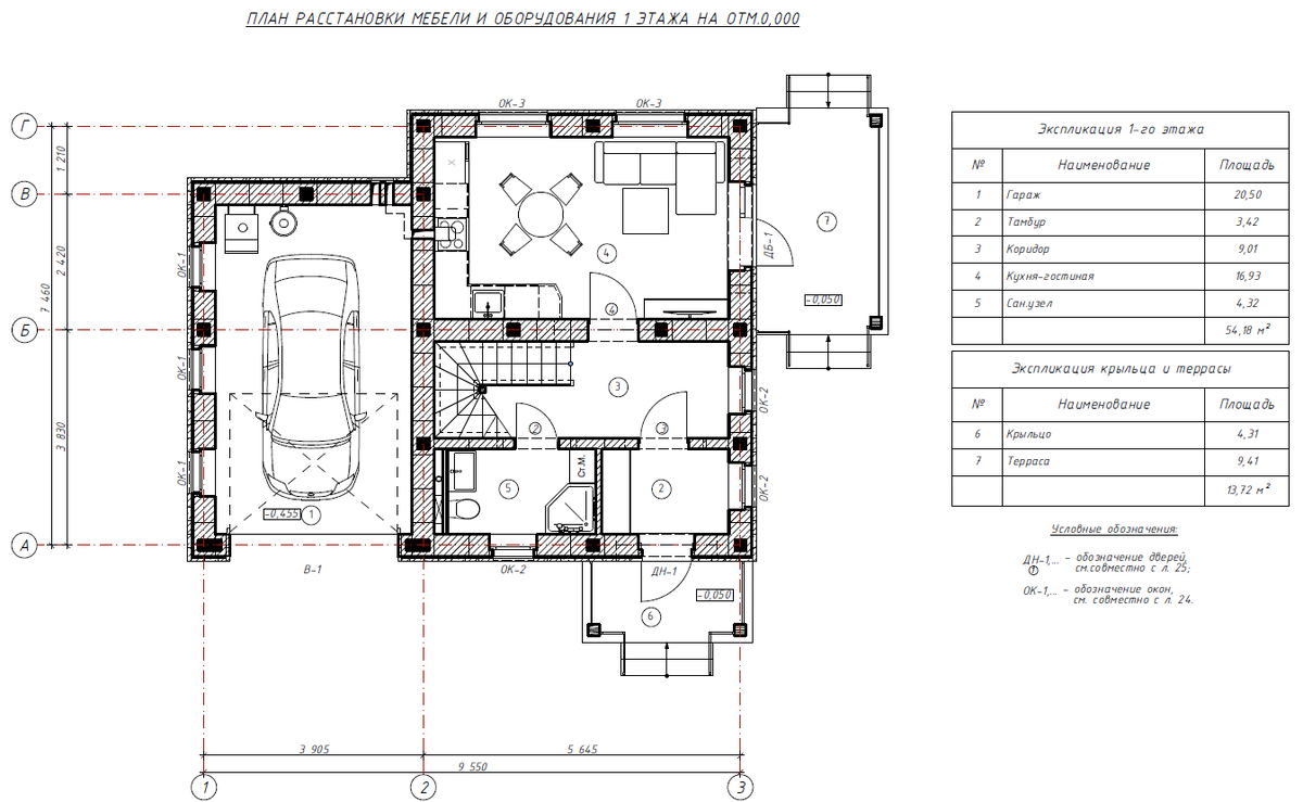
План расстановки мебели и оборудования 1 этаж
План расстановки мебели и оборудования 1 этаж

Таким образом, оптимальный размер частного дома для семьи из 3 человек варьируется в диапазоне 100-130 м2.

Отметим, что размеры будущего дома главным образом будут зависеть от ваших финансовых возможностей. Однако, если всё грамотно спланировать, то цена может Вас приятно удивить. Именно поэтому на этапе создания проекта, так важно обратиться к услугам хорошего архитектора, который сможет вместить все ваши пожелания в минимальную квадратуру и бюджет. Отметим, что компетентные специалисты состоят в штате у проверенных поставщиков материалов, а также зачастую бесплатно предлагают готовые архитектурные решения исходя из климата и особенностей вашего региона.

Например, так может выглядеть готовый дом с гаражом из полистиролбетона и отделкой из облицовочного кирпича площадью всего 99,5 кв метров от Фабрики Бетонов.

Проект дома для трёх человек
Проект дома для трёх человек

Данный проект - пример практичного и удобного дизайнерского решения, которое потребует минимальных финансовых затрат на его строительство.

В наших следующих статьях читайте о проектах домов из полистиролбетона и Бёрге бетона для семьи с детьми из 4 и 5 человек.

Здесь (https://dzen.ru/media/id/6286f67484cee77240b20c8f/6350b347fd3ed8555f14e171) мы рассказываем о том, как выбрать проект дома, на что обратить внимание. В той же статье читайте о преимуществах и недостатках материалов для строительства частного дома: полистиролбетон, газобетон, дерево и др.

Проект дома 3-4 человек от Фабрика Бетонов
Проект дома 3-4 человек от Фабрика Бетонов