Найти в Дзене
Четыре стихии

Проект по электроснабжению с нуля. С чего начать? Часть 2.

2. Размещение электрооборудования на плане. Группы В прошлой статье "Проект по электроснабжению с нуля. Часть 1" мы в учебных целях начали разрабатывать проект электроснабжения квартиры.Составили таблицу, где перечислили потребителей и их мощность.
Вот она: Теперь приступим к графической части: нам нужен план квартиры с расположением мебели и бытовой техники (в проектных бюро этим занимается технолог, Вам выдают готовый план с привязками), на который мы нанесём условные графические обозначения (УГО) электрических элементов (розетки, светильники, выключатели и т.д.). Допустим, у нас есть следующий план квартиры: Расставим на ней наше электрооборудование. В проектировании планов, относящихся к электрооборудованию, может быть несколько: Все они относятся к графической части проекта. Кроме графической части есть текстовая часть, она же пояснительная записка для стадии "проектная документация". Для стадии "рабочая документация" пояснительная записка заменяется листом "Общие данные". Если Ва
Оглавление

2. Размещение электрооборудования на плане. Группы

В прошлой статье "Проект по электроснабжению с нуля. Часть 1" мы в учебных целях начали разрабатывать проект электроснабжения квартиры.Составили таблицу, где перечислили потребителей и их мощность.
Вот она:

Таблица электрических нагрузок
Таблица электрических нагрузок

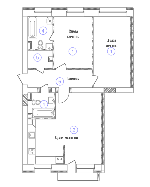
Теперь приступим к графической части: нам нужен план квартиры с расположением мебели и бытовой техники (в проектных бюро этим занимается технолог, Вам выдают готовый план с привязками), на который мы нанесём условные графические обозначения (УГО) электрических элементов (розетки, светильники, выключатели и т.д.).

Допустим, у нас есть следующий план квартиры:

План квартиры
План квартиры

Расставим на ней наше электрооборудование.

В проектировании планов, относящихся к электрооборудованию, может быть несколько:

  • План сетей освещения (светильники, выключатели, щитки освещения);
  • План розеточных сетей (называться может по-разному, - розетки, щитки);
  • План расположения технологического оборудования (где запитываете оборудование, указанное технологом; в простых проектах можно не выносить отдельным планом;
  • План сетей заземления и молниезащиты;
  • Схема, а иногда план системы уравнивания потенциалов.

Все они относятся к графической части проекта.

Кроме графической части есть текстовая часть, она же пояснительная записка для стадии "проектная документация". Для стадии "рабочая документация" пояснительная записка заменяется листом "Общие данные". Если Вам интересна эта тема, дайте знать в комментариях.

Мы остановимся на двух видах - план сетей освещения и план расположения розеточных сетей.

Как обозначить светильники и выключатели на плане?

Условные обозначения светильников
Условные обозначения светильников

Степень защиты светильника IP44 - защита от водяных брызг со всех направлений. Иными словами, светильник предназначен для работы в условиях влажности обычной бытовой ванной комнаты. В целом, такие светильники могут быть установлены в любом месте, за исключением непосредственной зоны ванной и душевых кабин.

Светильники с маркировкой IP65 - защита от водяных струй. Светильники с такой степенью защиты рекомендуется использовать непосредственно в зоне ванной и душевых кабин.

Наименование светильника не привожу - он может быть любым на Ваш выбор либо на выбор заказчика. Есть несколько способов обозначать светильники на планах:

Первый способ - подписываете каждый светильник прямо на плане.

Второй способ - используете условные обозначения, на листе сбоку приводите расшифровку как на рисунке выше (Условные обозначения светильников). Спойлер - так легче:

1) Например, в ходе проектирования меняется оборудование, говорят светильник заменить на светильник другого наименования. В этом случае Вы меняете наименование светильника ровно один раз - в таблице условных обозначений. А при использовании первого способа придётся менять каждую надпись на плане, либо редактировать блок со светильником.

2) Условное обозначение занимает гораздо меньше места на плане, чем его полная надпись.

Но на вкус и цвет, как говорится. Тем более когда много разных наименований, и все они схожи, проще подписать. Надёжнее.
В общем, смотрите сами по обстоятельствам.

Если интересно как светильники подписываются на планах по всем правилам и с примерами - дайте знать в комментариях.

Условные обозначения выключателей и щитка квартирного
Условные обозначения выключателей и щитка квартирного

Из своего опыта Вы уже знаете, что выключатели бывают накладные и встраиваемые. Накладные со степенью защиты IP55, IP65 обычно используют на улице.

Условные обозначения выключателей, штепсельных розеток, способов прокладки проводки подробно описаны в ГОСТ 21.210-2014 "Система проектной документации для строительства. Условные графические изображения электрооборудования и проводок на планах".

План электроосвещения. Как начертить?

Как расположить светильники на плане? Где располагать выключатели?
Читаем ПУЭ раздел"Электроустановки жилых, общественных, административных и бытовых зданий. Внутреннее электрооборудование":

п.7.1.51 Выключатели рекомендуется устанавливать на стене со стороны дверной ручки на высоте до 1 м, допускается устанавливать их под потолком с управлением при помощи шнура.

То есть, расставляем светильники на плане с той стороны, где дверная ручка:

Сети освещения в жилой комнате
Сети освещения в жилой комнате

Светильник здесь расположили по центру комнаты.

Освещение в санузле
Освещение в санузле

Как расположить светильники?

Светильники располагаются таким образом:

-7

Расстояние между светильниками в 2 раза больше, чем расстояние между крайним светильником и стеной.

Для того, чтобы геометрически точно расположить светильники, очень удобно пользоваться вспомогательными линиями. С них и начнём.

Создадим дополнительный слой, который сделаем непечатаемым. Начертим все наши вспомогательные линии. А потом просто скроем его. Или, даже если забудем это сделать, он всё равно не отобразится при печати. Ни в PDF формате, ни на принтере / плоттере.

Приступим!

1. Нажимаем "Свойства слоя"

-8

2. Нажимаем "Создать новый слой"

-9

3. Вводим имя. Например, "Вспомогательный". И нажимаем на значок "Не печатать" (перечеркнутый принтер).

-10

Вспомогательный слой готов!

Теперь назначим этот слой текущим:

-11

Приступаем к построению:

Выбираем "отрезок":

-12

Повторяем контуры помещения:

-13

Теперь надо разделить отрезок на 4 равные части. В данном случае - 4. Может быть другое число. Вы выбираете его в зависимости от расположения светильников.

Как подобрать на сколько частей делить отрезок?
Количество рядов умножаем на два:
2 ряда х 2 = 4;
3 ряда х 2 = 6 и т.д.

Для этого нажимаем на флажок "Рисование":

-14

Выбираем команду "Поделить":

-15

Теперь выбираем отрезок, который будем делить:

Можно следовать подсказкам
Можно следовать подсказкам

После того как выбрали отрезок, вводим число, на которое необходимо разделить наш отрезок:

У нас это число 4
У нас это число 4

Готово!

-18

Также поступаем с смежной стороной.

-19

Строим вспомогательные отрезки: используем нечетные точки: 1 (первую) и 3 (третью), 2 (вторую) пропускаем:

-20

На пересечениях расставляем светильники:

-21

Прокладываем кабели:

-22

Вот, что у нас получилось:

План электроосвещения
План электроосвещения

Следующая статья будет посвящена плану с электрооборудованием, а именно розеточной сети.

Если Вам понравилась статья - поставьте, пожалуйста, лайк! Ваши лайки мотивируют на написание дальнейших статей.
Ждёте продолжения - поставьте, пожалуйста, лайк и жмите "Подписаться".

Так я буду знать, что мой труд Вам полезен.
До новых встреч!