Добавить в корзинуПозвонить
Найти в Дзене
ЭТО ВАШ ИНТЕРЬЕР

Стильная переделка квартиры для мужчины средних лет

Наш герой работает музыкальным продюсером. И недавно решил приобрести квартиру поближе к своей работе. После долгих поисков, выбор пал на жилой комплекс "Лица". Для преображения квартиры он нанял архитектора и дизайнера, которые превзошли все его ожидания. Проект С самого начала данная квартира сдавалась от застройщика без перегородок и без какой-либо отделки, просто "бетонная коробка" с окнами по одной стороне. Главный плюс данной квартиры - это высота потолков (420 см). Было решено сделать большую кухню-гостиную, так как хозяин любит готовить и принимать гостей. И так же нужно было сделать изолированную спальню. Прихожая Прихожую оформили в светлых и теплых тонах. На полу уложили паркетную доску. Гостиную и прихожую отделяют раздвижные двери, которые прячутся в пеналы. Дверь в гостевой санузел полностью облицевали зеркалом. Потолок опустили до 3 метров. С левой стороны расположилась вместительная система хранения, фасады которой выполнены из искусственной кожи с деревянными вставками
Оглавление

Наш герой работает музыкальным продюсером. И недавно решил приобрести квартиру поближе к своей работе. После долгих поисков, выбор пал на жилой комплекс "Лица". Для преображения квартиры он нанял архитектора и дизайнера, которые превзошли все его ожидания.

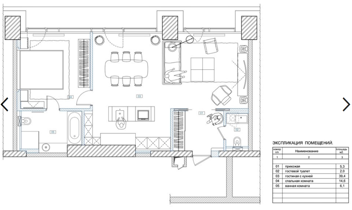
Проект

  • Местонахождение: г. Москва
  • Площадь квартиры: 67 кв. метров
  • Владельцы: мужчина

С самого начала данная квартира сдавалась от застройщика без перегородок и без какой-либо отделки, просто "бетонная коробка" с окнами по одной стороне. Главный плюс данной квартиры - это высота потолков (420 см). Было решено сделать большую кухню-гостиную, так как хозяин любит готовить и принимать гостей. И так же нужно было сделать изолированную спальню.

-2

Прихожая

Прихожую оформили в светлых и теплых тонах. На полу уложили паркетную доску. Гостиную и прихожую отделяют раздвижные двери, которые прячутся в пеналы. Дверь в гостевой санузел полностью облицевали зеркалом. Потолок опустили до 3 метров. С левой стороны расположилась вместительная система хранения, фасады которой выполнены из искусственной кожи с деревянными вставками.

Кухня-гостиная

На полу так же уложен паркет. Стены выкрасили в два оттенка. При в ходе в помещение расположилась зона гостиной. Здесь появился светлый диван, который хозяин попросил оставить с прежней квартиры. А напротив него установили телевизионную зону.

За гостиной расположилась столовая группа, которая вмещает до 6 человек. У дальней от окна стены организовали кухонную зону. Цвет фасадов решили выбрать темный, чтобы он играл на контрасте со всем остальным пространством.

Между гарнитуром и обеденным столом появился не кухонный "остров", а скорее рабочий "верстак", в который встроили мойку и варочную панель. Чтобы мест для хранения стало больше, решили организовать третий кухонный ярус.

Спальня

Стены в спальне выкрасили в тот же цвет, который использовался в гостиной на нижней части стен. Посередине комнаты расположилась двуспальная кровать. Стену за изголовьем задекорировали керамогранитом, который имитирует деревянное покрытие. Его немного углубили в стену и дополнили подсветкой. Напротив кровати появилась система хранения.

Ванная комната

Ванную комнату оформили плиткой, которая имитирует камень и дерево. Здесь появилась полноразмерная ванна и просторная душевая кабина. Раковина изготовлена из натурального камня, а столешница сделана из мрамора.

-8

Потолок значительно опустили, чтобы помещение стало правильной формы. Над потолком организовали большую антресоль (1,2 м), на которую ведет откидная лестница. Там хозяин хранит вещи, которыми очень редко пользуется.

Гостевой санузел

Санузел оформили керамогранитом и объемной декоративной плиткой. Раковина изготовлена из тика и интегрирована в столешницу. Под раковиной встроена стиральная машина. Из-за её габаритов (60 см) и габаритов столешницы (50 см), пришлось машину углубить в стену, чтобы она не выпирала из-под столешницы.

Если вам понравилась статья, то не забудьте поставить лайк и подписаться, чтобы не пропустить новый материал!

Так же пишите в комментариях, что вам понравилось в этом проекте, а что вызывает сомнения.

Если вам будет интересно, то заходите на мой второй новый канал)

https://dzen.ru/id/6313a65e908abf1aca233ad4?lang=ru&referrer_place=layout