Найти в Дзене
ДОМ ОТ ПРОФИ

Почему наш проектный отдел лучший?

Каждый разработанный проект - наша гордость, ведь Улучшать жизнь людей через своё дело - это наша большая цель ❤️ Ответьте на 7 простых вопросов в нашем опроснике и получите расчет стоимости строительства и дополнительные подарки🎁 ❓Какие еще критерии для Вас наиболее важны при выборе строительной компании? #свойдом #проектдома #проектыдомов #стоимостьстроительства #строительстводомов #домизгазобетона #строимдом #строительствоподключ
Проектный отдел ДОМ ОТ ПРОФИ
Проектный отдел ДОМ ОТ ПРОФИ
  • Мы делаем классные, удобные, функциональные планировки. Вам будет комфортно и уютно
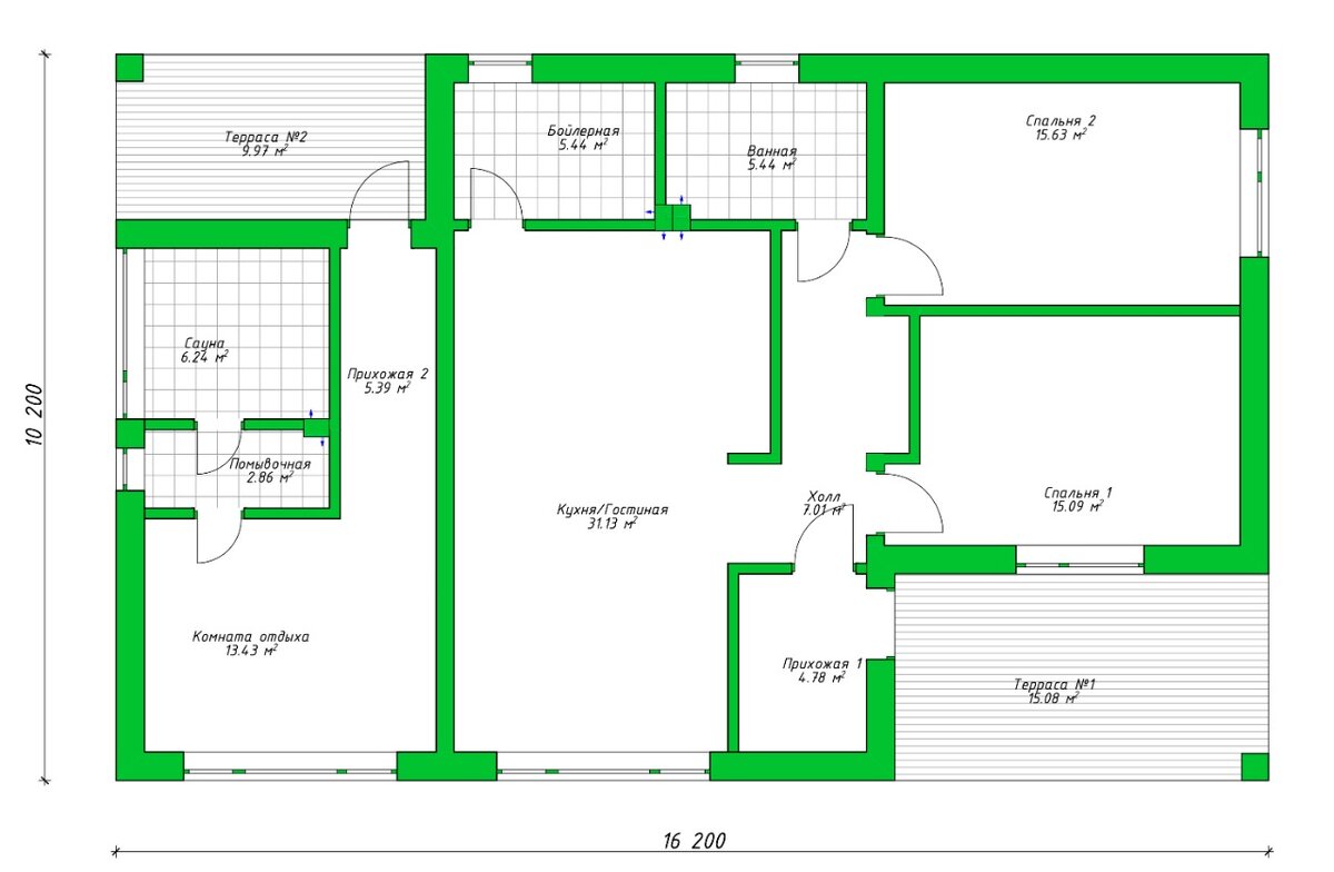
План этажа одноэтажного дома по проекту №12-165
План этажа одноэтажного дома по проекту №12-165
  • Эстетичная архитектура. Даже если вы хотите просто квадратный дом - мы сделаем его стильным и добавим изюминку.
Дом, построенный нами по проекту №27-398 в Щелковском р-не, в 2018 году
Дом, построенный нами по проекту №27-398 в Щелковском р-не, в 2018 году
  • Мы инициативны. Наши клиенты чувствуют заботу и профессионализм. Мы искренне хотим помочь вам получить классный дом
Фото с нашим счастливым клиентом Кириллом, в доме, построенном нами по проекту №22-228 в г.Пушкино, в 2018 году
Фото с нашим счастливым клиентом Кириллом, в доме, построенном нами по проекту №22-228 в г.Пушкино, в 2018 году
Каждый разработанный проект - наша гордость, ведь
Улучшать жизнь людей через своё дело - это наша большая цель ❤️

Ответьте на 7 простых вопросов в нашем опроснике и получите расчет стоимости строительства и дополнительные подарки🎁

❓Какие еще критерии для Вас наиболее важны при выборе строительной компании?

#свойдом #проектдома #проектыдомов #стоимостьстроительства #строительстводомов #домизгазобетона #строимдом #строительствоподключ