Найти в Дзене

Каркасный дом 6х9 по проекту КД-42 с 2 спальнями и кухней-гостиной.

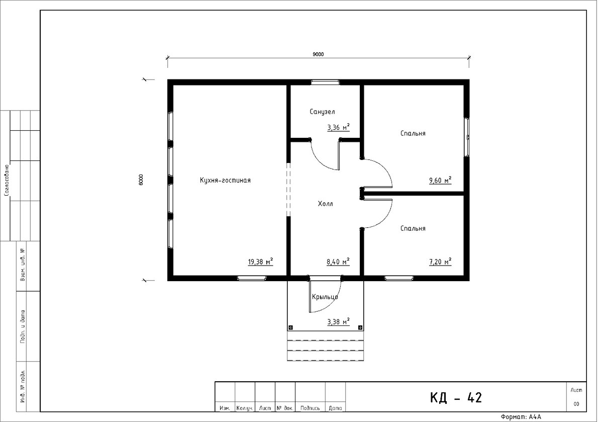
Друзья, всем привет! Рад представить вам проект каркасного дома КД-42. Характеристики дома: Габариты дома 6х9 м. Общая площадь 51 кв.м. Площадь застройки 57 кв.м. Высота 1 этажа по каркасу 2,5 м. Проект КД-42 это одноэтажный каркасный дом, который можно использовать для круглогодичного проживания. В доме имеется зона прихожей, для размещения верхней одежды и обуви, спальня, кладовая которую можно использовать как кабинет, санузел, а кухня и гостиная объединены в одно помещение, общей площадью почти 18 кв.м. Данный проект со всеми чертежами для сборки вы можете найти у меня на сайте по ссылке. Друзья, подписывайтесь, ещё больше интересных проектов у меня в профиле. Все типовые проекты можно посмотреть в каталоге. Моя группа ВКонтакте С уважением, Дмитрий.

Друзья, всем привет!

Рад представить вам проект каркасного дома КД-42.

Характеристики дома:

Габариты дома 6х9 м.

Общая площадь 51 кв.м.

Площадь застройки 57 кв.м.

Высота 1 этажа по каркасу 2,5 м.

Проект КД-42 это одноэтажный каркасный дом, который можно использовать для круглогодичного проживания.

В доме имеется зона прихожей, для размещения верхней одежды и обуви, спальня, кладовая которую можно использовать как кабинет, санузел, а кухня и гостиная объединены в одно помещение, общей площадью почти 18 кв.м.

-3

Данный проект со всеми чертежами для сборки вы можете найти у меня на сайте по ссылке.

Друзья, подписывайтесь, ещё больше интересных проектов у меня в профиле.

Все типовые проекты можно посмотреть в каталоге.

Моя группа ВКонтакте

С уважением, Дмитрий.