Добавить в корзинуПозвонить
Найти в Дзене
Экодом М

Модульная Баня. Быстро, выгодно, надежно.

Здравствуй дорогой читатель. Сегодня хочу презентовать наш новый продукт - модульная баня. Я расскажу и покажу: Приступим. Основная фишка модульных конструкций, в том числе бань, заключается в том, что их без особых проблем можно расширять, увеличивать и видоизменять. Допустим, по финансам у Вас есть возможность поставить себе только баню в комплекте с парилкой, душевой и раздевалкой, а в мечтах и планах устроить в бане гостиную комнату, кухню, несколько спальных мест и веранду. Технология строительства модульных бань может решить Вашу проблему. Мы можем строить не всё сразу, а по частям, в зависимости от Ваших финансовых возможностей. То есть в первом этапе строительства мы согласуем с Вами план, подписываем договор, ставим на сваях коробку, создаем тепловой контур, занимаемся внутренней и внешней отделкой и вы довольный пользуетесь баней, откладывая денежные средства для дальнейшего расширения. Спустя необходимое для Вас время мы действуем по той же схеме, план, договор, выполнение р

Здравствуй дорогой читатель. Сегодня хочу презентовать наш новый продукт - модульная баня.

Я расскажу и покажу:

  • Почему это удобно?
  • Проекты
  • Отличие от конкурентов

Приступим. Основная фишка модульных конструкций, в том числе бань, заключается в том, что их без особых проблем можно расширять, увеличивать и видоизменять. Допустим, по финансам у Вас есть возможность поставить себе только баню в комплекте с парилкой, душевой и раздевалкой, а в мечтах и планах устроить в бане гостиную комнату, кухню, несколько спальных мест и веранду.

Технология строительства модульных бань может решить Вашу проблему.

Мы можем строить не всё сразу, а по частям, в зависимости от Ваших финансовых возможностей. То есть в первом этапе строительства мы согласуем с Вами план, подписываем договор, ставим на сваях коробку, создаем тепловой контур, занимаемся внутренней и внешней отделкой и вы довольный пользуетесь баней, откладывая денежные средства для дальнейшего расширения. Спустя необходимое для Вас время мы действуем по той же схеме, план, договор, выполнение работ и вуаля, у Вас уже есть гостиная комната в бане, где можно разместить много гостей и приятно отдохнуть после посещения парилки.

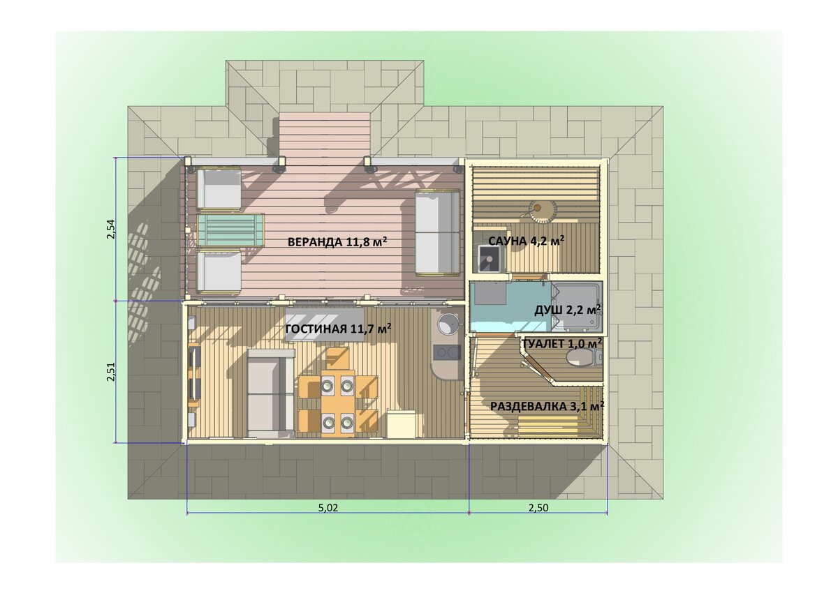
Проекты:

-2

Конкуренты. Сегодня рынок наводнен предложениями о банях-бочках, каркасных банях и прочих вариантах. У данного вида строительства бань нет возможности расширения, бани-бочки маленькие и в зимний праздничный день там не получится собрать и разместить много гостей. Каркасные бани дорогие и занимают много времени в строительстве. Наш вариант оптимален, быстрое строительство, практически любой проект вплоть до несколькоэтажных объектов. У нас есть большой опыт в строительстве и мы являемся производителем, в связи с чем можем себе позволить дать вам гарантию на 10 лет.

Контакты в шапке профиля, ответим на любой вопрос, поможем в проектировании дома и выборе планировки, выезд инженера на участок - бесплатно.

Наш сайт: http://www.ecodom.su/

Ecodom