Добавить в корзинуПозвонить
Найти в Дзене
ЭТО ВАШ ИНТЕРЬЕР

Женщина полностью преобразила старую квартиру, которая досталась ей от бабушки

Данная квартира, которая находится недалеко от моря в Испании, досталась нашей героине совсем недавно в наследство от бабушки (сама героиня москвичка, но имеет испанские корни). Здесь жили 4 поколения семьи хозяйки. Было решено сделать ремонт, но сохранив при этом часть обстановки, которая дорога как память. Проект Данная квартира находится на втором этаже старинного дома, имеет очень нестандартную вытянутую планировку, которую по большому счету никак не изменить. Но так же здесь есть и свои плюсы, например большая терраса. Кухня-гостиная Чтобы оживить старое пространство было решено покрасить стены в насыщенный бирюзовый цвет. На пол уложили паркетную доску из бразильского ореха, часть досок имеют матовую поверхность, а часть - глянцевую. Слева от входа расположилась мягкая зона с диваном и креслом. У стены расположилось хозяйское пианино. Ближе к окну организовали столовую группу из раритетного стола и стульев (этот стол находится в семье уже около 60 лет). Напротив дивана в нише поя
Оглавление

Данная квартира, которая находится недалеко от моря в Испании, досталась нашей героине совсем недавно в наследство от бабушки (сама героиня москвичка, но имеет испанские корни). Здесь жили 4 поколения семьи хозяйки. Было решено сделать ремонт, но сохранив при этом часть обстановки, которая дорога как память.

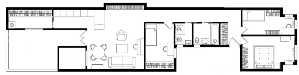
Проект

  • Местонахождение: г. Вале́нсия
  • Площадь квартиры: 100 кв. метров
  • Владельцы: семья из пяти человек

Данная квартира находится на втором этаже старинного дома, имеет очень нестандартную вытянутую планировку, которую по большому счету никак не изменить. Но так же здесь есть и свои плюсы, например большая терраса.

Кухня-гостиная

Чтобы оживить старое пространство было решено покрасить стены в насыщенный бирюзовый цвет. На пол уложили паркетную доску из бразильского ореха, часть досок имеют матовую поверхность, а часть - глянцевую.

Слева от входа расположилась мягкая зона с диваном и креслом. У стены расположилось хозяйское пианино. Ближе к окну организовали столовую группу из раритетного стола и стульев (этот стол находится в семье уже около 60 лет). Напротив дивана в нише появилась телевизионная зона.

Рядом с телевизором появилась кухонная зона. Гарнитур было решено выбрать в белом цвете. Часть нижнего яруса при входе на кухню играет роль барной стойки. На полу уложили цементную плитку. Фартук выложили до самого потолка из белоснежной плитки. От верхних шкафов было решено отказаться в пользу простора и воздуха. В конце кухни есть вход, который ведет в кладовую.

Спальня для сына

Эту комнату отдали старшему сыну. Стены покрасили белой краской. Справа от входа расположилось спальное место. Вместо прикроватной тумбочки поставили стул, который достался от бабушки. У дальней стены расположилась система хранения. Возле окна организовали рабочую зону.

Спальня родителей

Стены в спальне было решено покрасить в бледно-зеленый оттенок. Пол выложен светлой мозаикой. Справа от входа появился большой шкаф для одежды. Посередине комнаты расположилась двуспальная кровать с мягким изголовьем.

Детская для дочерей

Эту комнату отдали двум младшим дочкам. Стены покрасили в нежно-розовый цвет. Некоторые элементы мебели покрасили в ярко-красный цвет, чтобы задать характер пространству. Сразу при входе установили двухъярусную кровать. Возле окна расположилась рабочая зона.

Два санузла оставили в прежнем виде, так как в целом они устраивали хозяйку.

Если вам понравилась статья, то не забудьте поставить лайк и подписаться, чтобы не пропустить новый материал!

Так же пишите в комментариях, что вам понравилось в этом проекте, а что вызывает сомнения.

Если вам будет интересно, то заходите на мой второй новый канал)

https://dzen.ru/id/6313a65e908abf1aca233ad4?lang=ru&referrer_place=layout