Добавить в корзинуПозвонить
Найти в Дзене
Филдс

Маленькая студия 29 м² с огромным парнорамным окном, где вместили всё, и ещё осталось место

Дизайнеры Вадим и Екатерина Бычковы оформили маленькую студию площадью 29 м2 для сдачи в аренду. В компактном пространстве требовалось разместить всё необходимое для комфорта будущих жильцов. Стилистически интерьер старались сделать запоминающимся, чтобы выделить его на фоне других квартир-конкурентов. Планировка Спальня-гостиная От гостиной как таковой отказались. Это позволило свободно разместить остальные зоны и избежать ощущения тесноты. Центральное место заняла кровать. Спальню обозначили геометричной акцентной стеной, которая объединила основные цвета интерьера. Кухня Гарнитур подобрали компактный. Шкафы установили в одну линию. Достаточное число мест для хранения обеспечили за счёт высоты верхнего яруса. Маленький холодильник встроили под столешницу, плиту установили двухконфорочную, а духовым шкафом решили пожертвовать, чтобы внести ощущение простора. Прихожая Прихожую заключили в серо-голубой объём. Шкафы и дверь скрытого монтажа, которая ведёт в санузел, тоже не выбива
Оглавление

Дизайнеры Вадим и Екатерина Бычковы оформили маленькую студию площадью 29 м2 для сдачи в аренду. В компактном пространстве требовалось разместить всё необходимое для комфорта будущих жильцов. Стилистически интерьер старались сделать запоминающимся, чтобы выделить его на фоне других квартир-конкурентов.

  • Общая площадь: 29 м2
  • Место: Москва
  • Тип дома: ЖК "Небо"
  • Количество комнат: студия
  • Высота потолка: 3 м
  • Кто здесь живёт: сдаётся в аренду
  • Стилист: Ирина Бебешина
  • Фото: Евгений Гнесин

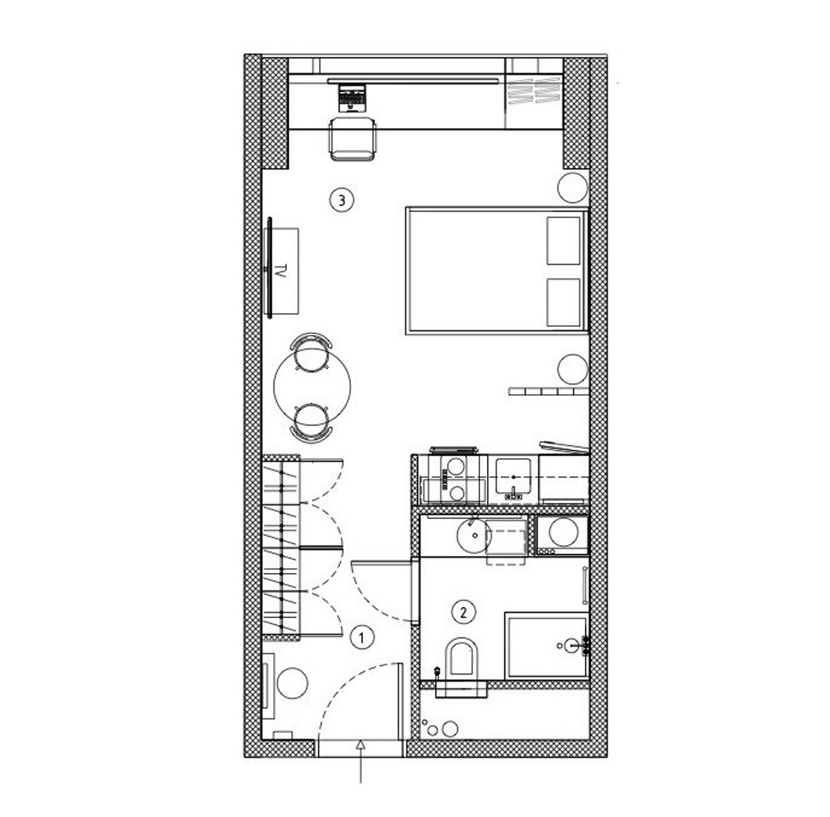
Планировка

На этапе черновых работ возвели стены санузла, границы которого уже обозначил застройщик. Также сформировали ниши в кухне и прихожей, куда встроили гарнитур и систему хранения.
На этапе черновых работ возвели стены санузла, границы которого уже обозначил застройщик. Также сформировали ниши в кухне и прихожей, куда встроили гарнитур и систему хранения.

Спальня-гостиная

От гостиной как таковой отказались. Это позволило свободно разместить остальные зоны и избежать ощущения тесноты. Центральное место заняла кровать. Спальню обозначили геометричной акцентной стеной, которая объединила основные цвета интерьера.

Кухня

Гарнитур подобрали компактный. Шкафы установили в одну линию. Достаточное число мест для хранения обеспечили за счёт высоты верхнего яруса. Маленький холодильник встроили под столешницу, плиту установили двухконфорочную, а духовым шкафом решили пожертвовать, чтобы внести ощущение простора.

Прихожая

Прихожую заключили в серо-голубой объём. Шкафы и дверь скрытого монтажа, которая ведёт в санузел, тоже не выбиваются — их выкрасили в тот же оттенок. Отделку и мебель разнообразили горчичными акцентами — пуфом и декором.

Санузел

Ванную отделали керамогранитом крупного формата. На полу использовали плиты с неярко выраженным рисунком терраццо. Акцентную роль взяли на себя голубые фасады и стена с зеркалом. Значительную роль отвели чёрным элементам, в таком цвете подобрали, в частности, раковину.

Интересные мнения в комментариях приветствуются. Если материал понравился — ставь лайк!

Филдс это не только блог на Дзене, но и магазин дизайнерской мебели. Дарим 3000 ₽ на первую покупку. Заходите на сайт и выбирайте мебель, которую используют дизайнеры в своих проектах.