Добавить в корзинуПозвонить
Найти в Дзене

Кухня. Где и сколько розеток?

Кухня — основное место в доме для приготовления еды, а упростить процесс помогает дополнительная техника, которая питается от электросети. Электричество считается опасным видом энергии, поэтому в ходе ремонта и монтажа должны соблюдаться #правилабезопасности . Важно так продумать #расположение розеток на кухне, чтобы оно удовлетворило все потребности. Обязательно учитывается высота от пола, стандарты для разной техники, количество линий и другие особенности, о которых вы узнаете из данной статьи. Перед работами вам придется составить небольшой #проект или схему. Для этого, первоначально высчитывается мощность всех электроприборов, которые будут стоять на кухне. Вот примерный их перечень: Всегда планируйте размещение розеток после утверждения дизайна кухни, иначе могут быть проблемы. Например розетки рабочей зоны запросто могут оказаться не там где нужно, и в итоге спрятаться за холодильником. Для того, чтобы ваши #розетки и выключатели оказались на своих местах, возьмите план расстано

Кухня — основное место в доме для приготовления еды, а упростить процесс помогает дополнительная техника, которая питается от электросети. Электричество считается опасным видом энергии, поэтому в ходе ремонта и монтажа должны соблюдаться #правилабезопасности . Важно так продумать #расположение розеток на кухне, чтобы оно удовлетворило все потребности. Обязательно учитывается высота от пола, стандарты для разной техники, количество линий и другие особенности, о которых вы узнаете из данной статьи.

Перед работами вам придется составить небольшой #проект или схему. Для этого, первоначально высчитывается мощность всех электроприборов, которые будут стоять на кухне.

Вот примерный их перечень:

  • освещение – 150-200 Ватт
  • Микроволновка – 2000 Ватт
  • Холодильник – 100 Ватт
  • Посудомоечная машина – 1000-2000 Ватт
  • Чайник электрический – 2000 Ватт
  • Духовой шкаф – 2000 Ватт
  • Водоподогреватель – 2000 Ватт
  • Варочная панель - 3500-7500 Ватт

Всегда планируйте размещение розеток после утверждения дизайна кухни, иначе могут быть проблемы. Например розетки рабочей зоны запросто могут оказаться не там где нужно, и в итоге спрятаться за холодильником.

Для того, чтобы ваши #розетки и выключатели оказались на своих местах, возьмите план расстановки кухонной мебели.

Разметка розеток на плане, исходя из габаритов мебели
Разметка розеток на плане, исходя из габаритов мебели

После чего, обозначьте на нем все необходимые розетки. Можно это сделать даже от руки.

Сколько минимально розеток требуется на кухне?

Здесь придерживайтесь правила - под каждую стационарную кухонную технику планируйте свою розетку + 2 блока по краям столешницы + 1шт возле обеденного стола.
Рекомендуемые места для расположения розеток и выключателей для подключения бытовой техники
Рекомендуемые места для расположения розеток и выключателей для подключения бытовой техники

Под категорию стационарной техники попадают - холодильник, вытяжка, варочная панель и духовка, микроволновка, посудомоечная машинка, измельчитель мусора.

Кроме этого, не помешает смонтировать одну розетку сразу под или возле выключателя при входе в помещение.

Зона с выключателями обычно остается не заставленной чем либо, а свободная точка, где можно взять напряжения (например для пылесоса), никогда не бывает лишней.

Теперь обозначьте точки на фартуке для подключения не стационарных приборов. Закладывайте минимум по две штуки на каждую часть (правую и левую) кухни. Когда определились с количеством, пора переходить к расчету требуемых размеров и отступов. Для этого рисуете что-то наподобие развертки стен, где будет стоять мебель.

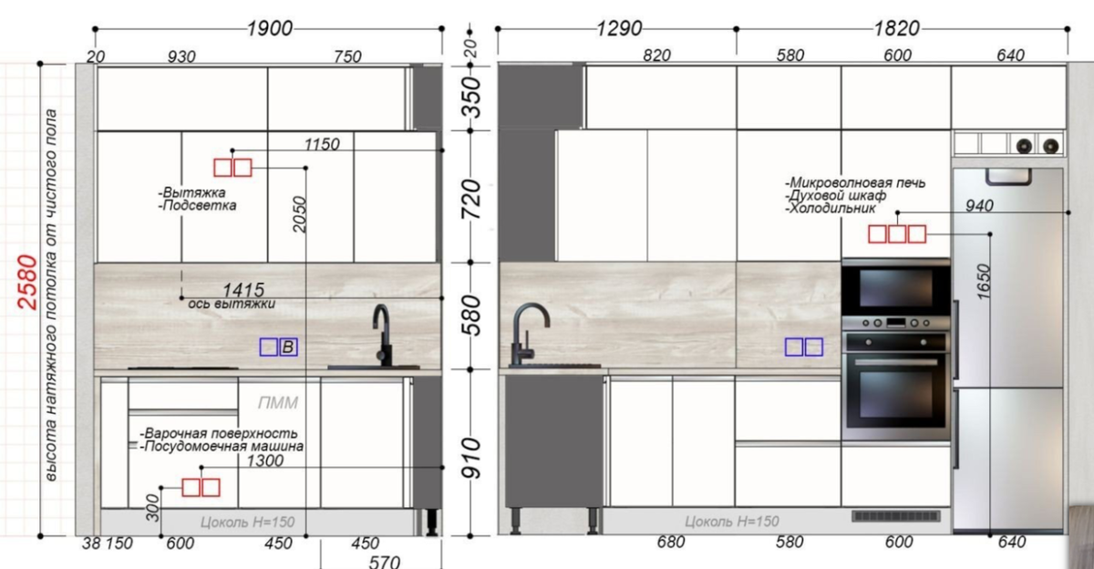
развертки стен с четкими размерами мебели и бытовой техники
развертки стен с четкими размерами мебели и бытовой техники

Здесь уже понадобятся точные размеры кухни - длина, высота помещения. Постепенно, в виде прямоугольников прорисовываете технику и все шкафчики. В моем пакете _планировки + розетки_ обязательные развертки по стенам с указанием точных размеров высот и размеров до розеток...(для заказа пишите в личку или ватсап +79657932737)

Далее, берете свой план с количеством розеток и переносите их на развертки стен. Для каждой техники придерживайтесь своих правил.

  • Для холодильников производители рекомендуют располагать розеточную группу под самим прибором, т.е в нижнем ряду, чтобы подключения не было видно.
высота розетки для холодильника 100-150 мм от чистового пола
высота розетки для холодильника 100-150 мм от чистового пола

Нельзя однозначно со 100% уверенностью сказать, на какой именно высоте нужно делать нижний ряд розеток, (например 10 см от пола). Объясняется это тем, что если установить выше, то встраиваемая техника будет упираться в вилки.

Если же вы намерены довольно часто выключать вилку, то нижнее #подключениеэлектричества для холодильника не всегда удобно. В этом случае можно разместить все это дело на высоте рабочей зоны.

  • Розетки рабочей зоны и над столешницей

Высота столешницы как правило 85см, максимум 90см. Затем идет простенок высотой 550-600мм и далее шкафчики.Размещайте розетки в этой зоне в 105см от пола. В таком случае они не окажутся посередине простенка, и их удобно будет прикрыть той же самой микроволновкой.

Минимальное расстояние от столешницы должно быть не менее 5см, чтобы кухонный плинтус их не задевал. Места расположения - один комплект в любом углу, плюс между варочной поверхностью и мойкой.

-5

Как уже говорилось выше, минимум по две штуки. Если вам не нравится вид розеток над кухонным фартуком, рассмотрите вариант выезжающего блока из столешницы.

Обязательно нужно продумать, будет ли встраиваемая техника в верхних шкафчиках. Например, микроволновка. Под нее также придется делать отдельную розетку.

Eubiq - первая модульная электрифицированная система в мире.
Eubiq - первая модульная электрифицированная система в мире.

В проектах премиум класса, например используется система Eubiq

Электрический трек основной элемент системы, позволяет встраивать, удалять, перемещать различные типы модулей и может полностью заменить стандартную систему электроснабжения.

  • Вытяжка. Также вверху на высоте 1,9м-2,0м выводится розетка под вытяжку. Однако многое может зависеть от марки. Если это дешевый вариант, то можно обойтись выводом кабеля и затем подключить его прямо внутри техники.
-7
  • Варочная и духовка. При наличии мощной варочной панели делается либо #выводкабеля, с последующим подключением напрямую под контактные колодки панели, либо устанавливается специальная #силовая розетка.
в идеале в ниж.шкафчике справа или слева от плиты
в идеале в ниж.шкафчике справа или слева от плиты
  • Духовки, в отличие от варочных, идут с обычными вилками, поэтому здесь мудрить ничего не надо. Подключайте их в простые розетки. Когда слева или справа от варочной и духовки находятся шкафчики с распашной дверцей, очень удобно размещать розетки прямо внутри них. Отступаете 15-20см от края и монтируете. В случае отдельной установки духовки от варочной, например на высоте груди, розетку под нее делайте в нижнем шкафчике на высоте до 750мм.
  • Посудомойка. Согласно СП 31-110 2003 п.14.29 под и над мойками или раковинами запрещено выполнять какие-либо розетки. Поэтому всегда отступайте несколько сантиметров при монтаже розеточной группы вблизи этой сантехники. Это касается как нижнего размещения, так и рабочей зоны вверху. Также #запрещено помещать розетки за посудомоечной машинкой и стиралкой.
-9
  • Возле обеденного стола (если он находится возле стены, а не по центру кухни), желательно запланировать одну розетку.

В большие праздники, при наплыве гостей и родственников в квартире, обязательно понадобится что-то подключить на столе - миксер, соковыжималку, кухонный комбайн и т.п.

Все розетки должны обладать заземляющим контактом, на номинальный ток до 16А, для скрытой проводки.

#Частыеошибки

1.Монтаж проводки и розеток до утверждения и согласования дизайн-проекта кухонной мебели.

Проблемы с которыми обязательно столкнетесь в этом случае - спрятанные розетки за шкафами, холодильниками и т.п. Очень вероятно, что придется пользоваться даже переносками, так как заводские шнуры с вилкой будут элементарно не доставать до точек подключения.

2.Подключение холодильника.

В инструкциях к холодильникам обычно указывается запрет на их подключение через удлинители. В то же время длина шнура у них не такая уж и большая, всего 1м. Для холодильников производители рекомендуют располагать розеточную группу под самим прибором, т.е в нижнем ряду, чтобы подключения не было видно.

Производители кухонь советуют их размещать на высоте примерно 10см от пола, т.е. на одном уровне с ножками шкафчиков.

3. Подключение розеток на "мокрые" приборы через простой автомат.

Такие приборы как посудомойка, стиральная машинка (если она встроена в кухню), проточный водонагреватель и т.п. обязательно должны быть подключены через УЗО или дифф.автомат.

4. Самая распространенная ошибка - это монтаж обычных розеток (типа Шуко) для посудомойки под раковиной или возле смесителя. Данное расположение запрещено правилами. Отступайте от смесителя 500мм (то же самое относится к газовым трубам на плиты или варочные) и только потом смело монтируйте электроустановочное изделие. Если же вам электрики уже подвели туда проводку и переделать нет возможности, либо вам досталась квартира с таким ремонтом, то позаботьтесь о том, чтобы розетки под мойкой были влагозащищенного исполнения (как в ванной). Также запрещено монтировать электроустановочные изделия в непосредственной близости от плит.

5. При монтаже нижней розеточной группы на расстоянии 10см от пола будьте предельно внимательны! В зоне до 25см от пола, сантехники обычно монтируют трубы для раковины, стиралки, посудомоечной машинки. Не зная точного прохождения трасс, не спешите штробить стены, иначе для вас и ваших соседей это может обернуться потопом и незапланированным ремонтом.

Подводя итог, хочется сказать, что электропроводка на кухне должна быть сделана профессионалами своего дела. Используя советы в данной статье, вы сможете легко проконтролировать весь процесс и вносить свои грамотные замечания при монтажных работах.

Статьи по теме:

Маленькая кухня

Кухня. Эргономика

Кухня. Чек лист выбор фасадов

Кухня. ПВХ

Кухня. Лайфхаки.

Красивых и удобных Вам кухонь,

Милости просим в комментарии, если что то интересует). Всегда рада ♥

Ставьте лайк. Вам не сложно, а мне приятно.

Запись на консультацию по WhatsApp или Telegram +7 965 7932737