Найти в Дзене
Дом на ремонт

С чего начнем? Дизайн-проект.

Ну приступим! Для того, чтобы понять стоит игра свеч, будем пробовать решить эту задачку. Дано: двухкомнатная хрущевка стандартной планировки, приобретенная по цене 2,8 млн.
Вопрос: реально ли сделать ремонт за 1 млн. рублей??? Есть масса вариаций планировок двухкомнатных хрущевок. Мы остановимся на той, что мы нашли за 2,8 млн. Итак, для того, чтобы понять, сколько нам нужно денег на все наши хотелки в ремонте для начала в любом случае нам нужен дизайн-проект. Даже если в процессе ремонта мы захотим что-то поменять, а так случается чаще всего, у нас будет план, на который мы сможем опираться, для понимания порядка проводимых работ, графика закупа материалов и порядка привлечения сторонних специалистов. Чтобы создать дизайн-проект вашей квартиры нужно собрать «анамнез»: количество членов семи, планируется ли увеличение/уменьшение, предпочтения в стиле интерьера, необходимые элементы мебели/зоны, расположение окон относительно солнечного света и т.п. Лучше оформить это на бумаге в виде

Ну приступим! Для того, чтобы понять стоит игра свеч, будем пробовать решить эту задачку.

Дано: двухкомнатная хрущевка стандартной планировки, приобретенная по цене 2,8 млн.
Вопрос: реально ли сделать ремонт за 1 млн. рублей???

Есть масса вариаций планировок двухкомнатных хрущевок. Мы остановимся на той, что мы нашли за 2,8 млн.

План двухкомнатной хрущевки
План двухкомнатной хрущевки

Итак, для того, чтобы понять, сколько нам нужно денег на все наши хотелки в ремонте для начала в любом случае нам нужен дизайн-проект. Даже если в процессе ремонта мы захотим что-то поменять, а так случается чаще всего, у нас будет план, на который мы сможем опираться, для понимания порядка проводимых работ, графика закупа материалов и порядка привлечения сторонних специалистов.

Чтобы создать дизайн-проект вашей квартиры нужно собрать «анамнез»: количество членов семи, планируется ли увеличение/уменьшение, предпочтения в стиле интерьера, необходимые элементы мебели/зоны, расположение окон относительно солнечного света и т.п. Лучше оформить это на бумаге в виде анкеты (техническое задание).
Нужен образец анкеты?

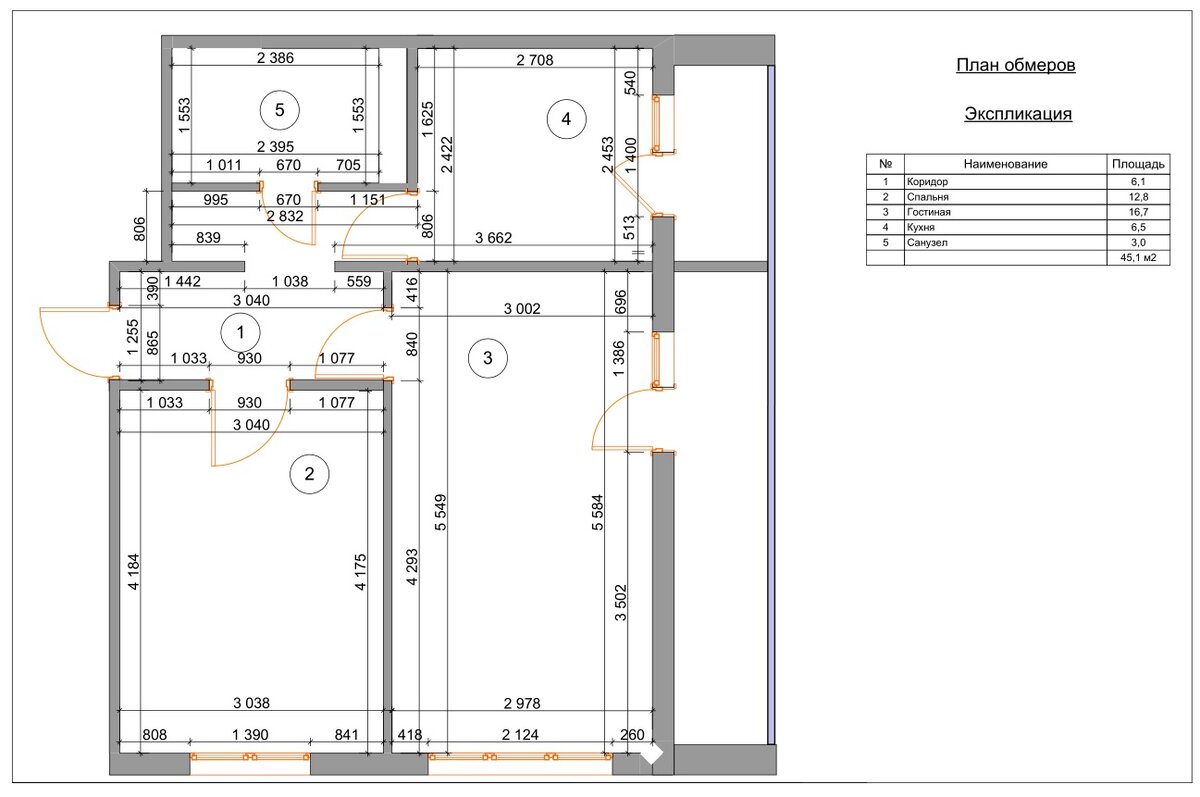
После того, как мы собрали эту информацию нам нужно решить: нужна ли нам перепланировка для реализации наших желаний. Ели да, то составляем обмерный план и разрабатываем план демонтажа и монтажа стен, и отправляемся на согласование. Если нам не нужна перепланировка, то приступаем сразу к обмерам.

Пример обмерного плана
Пример обмерного плана

Почему я рекомендую согласовывать перепланировки:

  • Нужно все-таки следовать законам.
  • Возможен штраф и требование вернуть все, как было.
  • Сейчас у нас очень сознательные и сильно переживающие соседи за свою недвижимость, и когда они увидят (и услышат), что вы крушите стены и вывозите мусор, то обратятся в УК и дальше см.п.№2.
  • Не все что вы хотите сделать, можно делать. Например, мокрую зону нельзя переносить в жилое или нельзя, чтобы двери из с/у открывались в жилое помещение, и еще множество нюансов, которые могут вам быть не знакомы.

Мой совет: если мы покупаем «убитую» квартиру, лучше снесите все что можно снести к чертям собачим, так как потом вы будете об этом сильно жалеть. Дома старые, стены сделаны не пойми из чего, на них даже страшно телевизор вешать, ровность оставляет желать лучшего. Лучше потратиться здесь, чем на этапе штукатурки.

Продолжение следует....если есть вопросы, добро пожаловать в комментарии!

#ремонт #дизайнквартир #дизайнинтерьера #цена #сколькостоит #куплюквартиру #дорого-богато #хрущевка #перепланировкаквартиры #новокузнецк