Добавить в корзинуПозвонить
Найти в Дзене
ЭТО ВАШ ИНТЕРЬЕР

Как женщина преобразила свою "двушку" площадью 42 кв. метров за 4 месяца

Наша героиня снимала эту квартиру несколько лет. И во время проживания здесь, она так привыкла к району и квартире, что решила её выкупить у хозяев. И так как квартира была темная и старенькая, сразу после выкупа, было решено взяться за ремонт. Проект Изначально, это была типичная "двушка" с раздельным санузлом и крошечной кухней. Такая планировка не устраивала новую хозяйку, поэтому было решено сделать перепланировку. Прихожая Прихожую сделали в светлых тонах. Стены и потолок покрасили в светло-серый цвет. На полу уложили плитку с геометрическим узором. В нише расположился большой зеркальный шкаф, который визуально увеличивает пространство. Гостиная Гостиную расположили в транзитной зоне. Стены так же покрасили в светло-серый оттенок. На полу уложили паркетную доску. Слева от входа появился раскладной диван, а напротив него расположилась ТВ-зона. Ближе к кухне появилась столовая группа. Кухня Кухню отделили от столовой зоны стеклянной задвигающейся перегородкой, так как на кухне имеет
Оглавление

Наша героиня снимала эту квартиру несколько лет. И во время проживания здесь, она так привыкла к району и квартире, что решила её выкупить у хозяев. И так как квартира была темная и старенькая, сразу после выкупа, было решено взяться за ремонт.

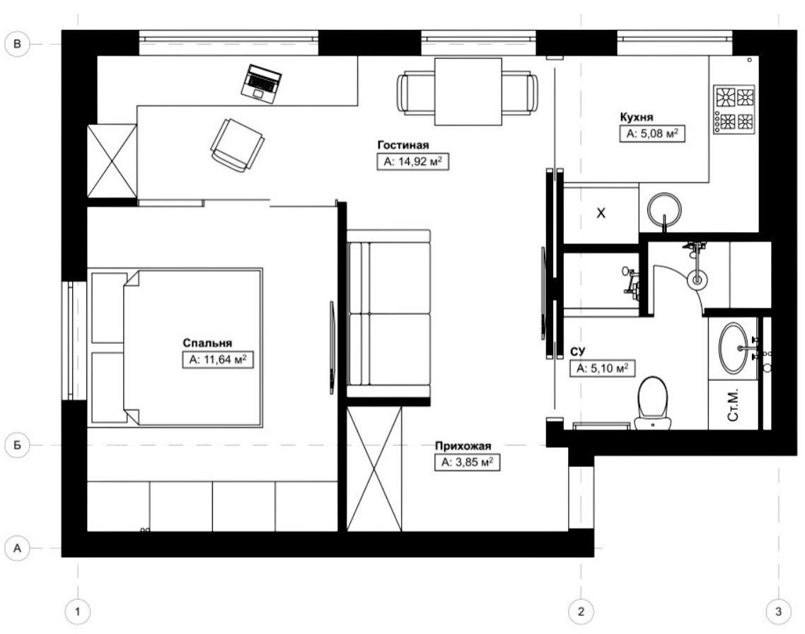
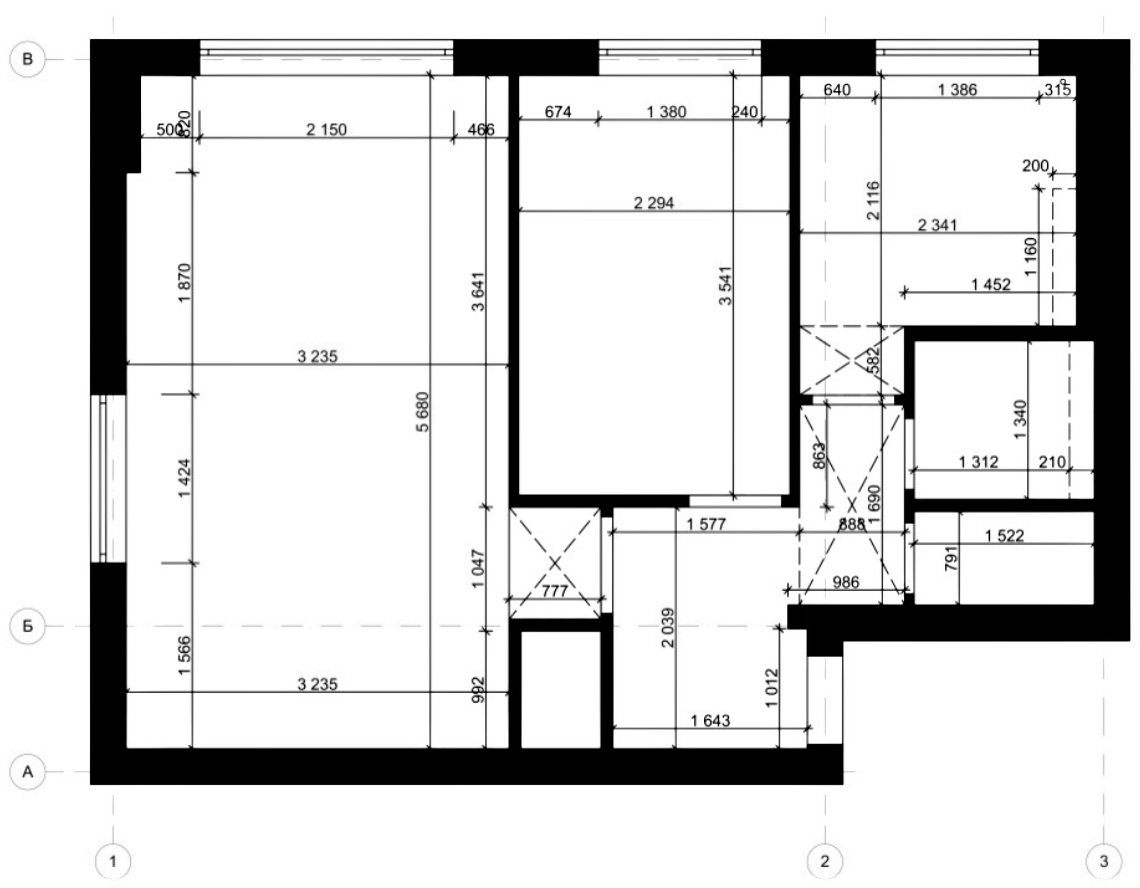
Проект

  • Местонахождение: г. Москва
  • Площадь квартиры: 42 кв. метров
  • Владельцы: женщина с двумя мопсами

Изначально, это была типичная "двушка" с раздельным санузлом и крошечной кухней. Такая планировка не устраивала новую хозяйку, поэтому было решено сделать перепланировку.

-2

Прихожая

Прихожую сделали в светлых тонах. Стены и потолок покрасили в светло-серый цвет. На полу уложили плитку с геометрическим узором. В нише расположился большой зеркальный шкаф, который визуально увеличивает пространство.

-3

Гостиная

Гостиную расположили в транзитной зоне. Стены так же покрасили в светло-серый оттенок. На полу уложили паркетную доску. Слева от входа появился раскладной диван, а напротив него расположилась ТВ-зона. Ближе к кухне появилась столовая группа.

Кухня

Кухню отделили от столовой зоны стеклянной задвигающейся перегородкой, так как на кухне имеется газовая плита. Пол выложили плиткой. Фартук выполнен из керамогранита, который имитирует бетон. Кухонные фасады выбрали в светлом оттенке.

Чтобы увеличить рабочую поверхность, было решено продлить столешницу. Прежний подоконник оставили, а часть окна прикрыли перегородкой. Теперь здесь появилась небольшая полка для собачьего корма.

Спальня

Справа от входа в спальню, возле окна, появилось рабочее место для хозяйки квартиры. Спальную зону тоже зонировали стеклянной перегородкой, чтобы при необходимости, создать приватную атмосферу.

Посередине спальни расположилась двуспальная кровать с мягким изголовьем. Стену за изголовьем сделали акцентной, и покрасили её в насыщенный зеленый оттенок. В глубине спальни организовали систему хранения во всю стену.

Ванная комната

Из-за перепланировки квартиры, ванную комнату получилось увеличить. Стены и пол выложены двумя видами плитки: одна имитирует мрамор, а другая имитирует деревянную поверхность. Вместо стандартной ванны здесь установили душевую кабину.

Слева от входа расположился небольшой поддон, для того чтобы после прогулки мыть собак. В таком поддоне так же можно мыть обувь или еще что-нибудь, чтобы не пачкать раковину.

Если вам понравилась статья, то не забудьте поставить лайк и подписаться, чтобы не пропустить новый материал!

Так же пишите в комментариях, что вам понравилось в этом проекте, а что вызывает сомнения

Если вам будет интересно, то заходите на мой второй новый канал)

https://dzen.ru/id/6313a65e908abf1aca233ad4?lang=ru&referrer_place=layout