Добавить в корзинуПозвонить
Найти в Дзене
АО «ТАМАК»

Фахверковый дом с уникальной планировкой

Не так просто найти проект, в котором уделяется такое высокое внимание созданию максимально комфортабельной обстановки, как в предложенном вашему вниманию проекте коттеджа Зеркало–276. Это современный просторный дом, общая площадь которого составляет 276,07 м2. Его основные особенности — значительный объем панорамного остекления, а также очень удачная планировка. Характеристика дома: Планы дома: Общая площадь проекта: столовая: 30,27 м²; терраса: 8,13 м²; гостиная: 36,32 м²; гостевая: 14,49 м²; кладовая: 2,18 м²; прихожая: 14,76 м²; терраса 2: 3,2 м²; кухня: 31,45 м²; санузел: 5,86 м²; балкон 1: 10,1 м²; студия: 35,73 м²; спальня: 19,79 м²; гардероб: 14,89 м²; спальня 2: 14,5 м²; ванная 1: 9,41 м²; ванная 2: 14,5 м²; балкон 2: 10,1 м². Фасады дома: Телефон: 8(800)300-89-77 Наш сайт: https://www.tamak.ru/ Подписывайтесь на канал и ставьте лайки! :)

Не так просто найти проект, в котором уделяется такое высокое внимание созданию максимально комфортабельной обстановки, как в предложенном вашему вниманию проекте коттеджа Зеркало–276. Это современный просторный дом, общая площадь которого составляет 276,07 м2. Его основные особенности — значительный объем панорамного остекления, а также очень удачная планировка.

Фахверковый дом «Зеркало-276»
Фахверковый дом «Зеркало-276»

Характеристика дома:

  • Общая площадь: 276 м²
  • Спальни: 2
  • Санузлы: 3

Планы дома:

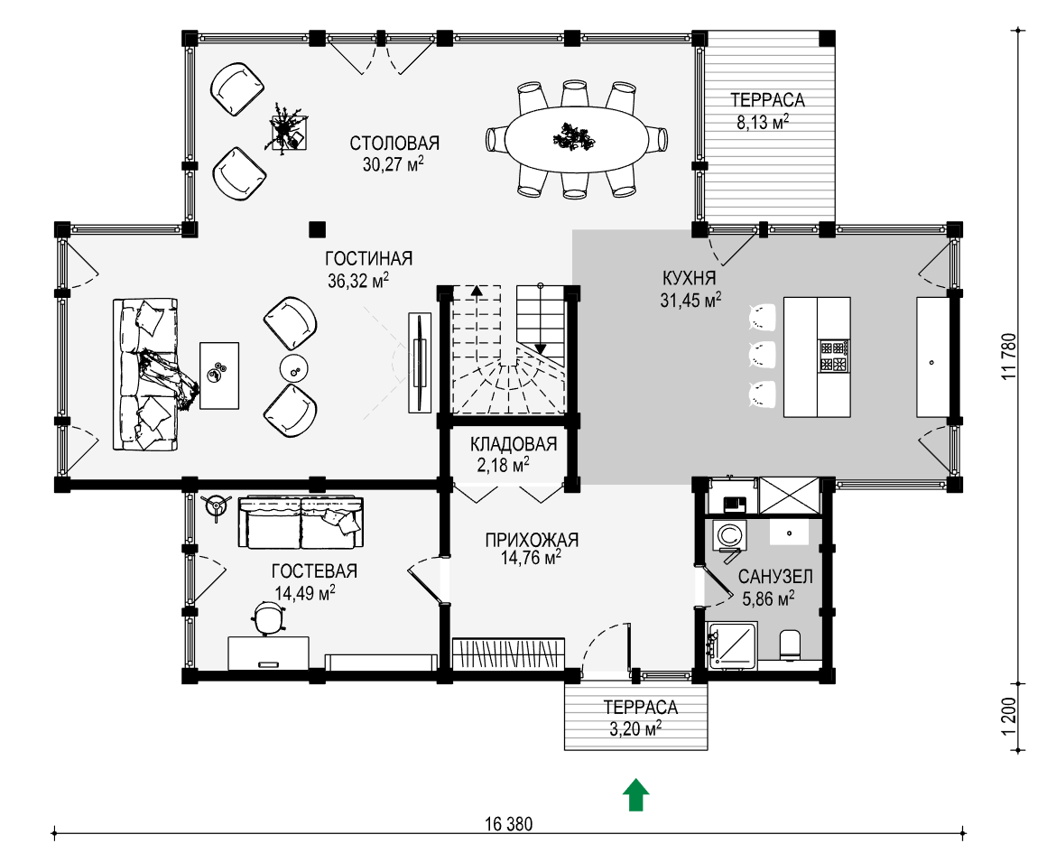
План 1 этажа
План 1 этажа
План 2 этажа
План 2 этажа

Общая площадь проекта: столовая: 30,27 м²; терраса: 8,13 м²; гостиная: 36,32 м²; гостевая: 14,49 м²; кладовая: 2,18 м²; прихожая: 14,76 м²; терраса 2: 3,2 м²; кухня: 31,45 м²; санузел: 5,86 м²; балкон 1: 10,1 м²; студия: 35,73 м²; спальня: 19,79 м²; гардероб: 14,89 м²; спальня 2: 14,5 м²; ванная 1: 9,41 м²; ванная 2: 14,5 м²; балкон 2: 10,1 м².

Фасады дома:

Телефон: 8(800)300-89-77

Наш сайт: https://www.tamak.ru/

Подписывайтесь на канал и ставьте лайки! :)

Фахверк
4837 интересуются