Найти в Дзене
ЭТО ВАШ ИНТЕРЬЕР

Девушка самостоятельно сделала смелый ремонт в своей "однушке" площадью 41 кв. метров

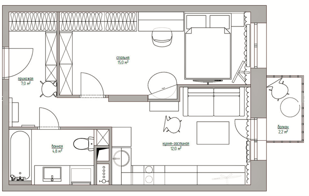
Наша героиня купила эту квартиру пару лет назад. И вот настал момент, когда она решила сделать ремонт. Но так как денег на дизайнера у неё не было, она решила все придумать и реализовать собственными силами. Проект С самого начала эта квартира была типичной "однушкой" с маленькой кухней и большим коридором. Эта планировка не устраивала хозяйку, поэтому она решила сделать перепланировку. Она сместила стены и на этой площади разместились: кухня-гостиная, большая спальня и объединенный санузел. Прихожая Весь интерьер квартиры хозяйка сделала в темных цветах. Основной цвет - графитовый. Слева от входа начинается большая система хранения, которая имеет продолжение на другой стене. Фасады выкрасили в черный цвет. А вот входную дверь решили сделать в ярко-красном оттенке. Кухня-гостиная Кухня так же выполнена в темных оттенках. Справа от входа расположился кухонный гарнитур буквой Г. От верхнего яруса было решено отказаться в пользу открытых полок. Фартук выложен темной плиткой. Нижний ярус
Оглавление

Наша героиня купила эту квартиру пару лет назад. И вот настал момент, когда она решила сделать ремонт. Но так как денег на дизайнера у неё не было, она решила все придумать и реализовать собственными силами.

Проект

  • Местонахождение: г. Москва
  • Площадь квартиры: 41 кв. метров
  • Владельцы: молодая девушка

С самого начала эта квартира была типичной "однушкой" с маленькой кухней и большим коридором. Эта планировка не устраивала хозяйку, поэтому она решила сделать перепланировку. Она сместила стены и на этой площади разместились: кухня-гостиная, большая спальня и объединенный санузел.

-2

Прихожая

Весь интерьер квартиры хозяйка сделала в темных цветах. Основной цвет - графитовый. Слева от входа начинается большая система хранения, которая имеет продолжение на другой стене. Фасады выкрасили в черный цвет. А вот входную дверь решили сделать в ярко-красном оттенке.

Кухня-гостиная

Кухня так же выполнена в темных оттенках. Справа от входа расположился кухонный гарнитур буквой Г. От верхнего яруса было решено отказаться в пользу открытых полок. Фартук выложен темной плиткой. Нижний ярус гарнитура выполнен в розовом цвете и продлен вдоль всей стены.

-4

Ближе к окну расположилась зона гостиной. На гарнитуре появился телевизор, а напротив него находится большой диван, который можно разложить и получить дополнительное спальное место. Стандартного обеденного стола здесь нет, так как хозяйка предпочитает есть за высоким журнальным столиком на диване.

Спальня

Сразу при входе в спальню организовали множество мест для хранения. Шкафы продлены до самого потолка. Ближе к окну расположилась спальная зона с двуспальной кроватью. А между спальным местом и гардеробной появилось рабочее место.

Ванная комната

В ванной комнате использованы те же цвета, что и на кухне. Стены покрашены в черный цвет, а мокрые зоны облицованы розовой плиткой. Под столешницей появилось место для полноразмерной стиральной машины.

Если вам понравилась статья, то не забудьте поставить лайк и подписаться, чтобы не пропустить новый материал!

Так же пишите в комментариях, что вам понравилось в этом проекте, а что вызывает сомнения

Если вам будет интересно, то заходите на мой второй новый канал)

https://dzen.ru/id/6313a65e908abf1aca233ad4?lang=ru&referrer_place=layout