Найти в Дзене
Проектная мастерская №16

Проект одноэтажного кирпичного дома площадью 115кв.м. - с гардеробом при мастер-спальне - скачайте бесплатно

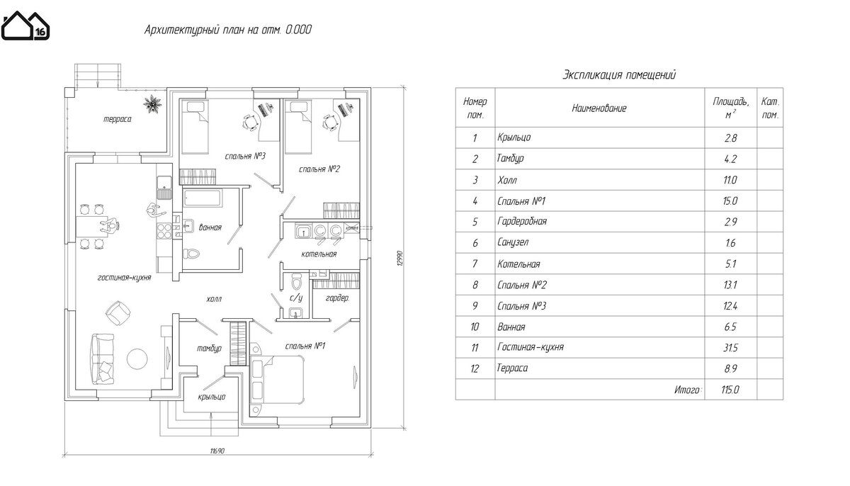
Доброго времени года! Это ПМ№16 и наш очередной бесплатный готовый проект одноэтажного кирпичного дома. Скачайте его с яндекс-диска Далее смотрите 3Д-модель дома Архитектурное решение Проект одноэтажного кирпичного дома площадью 115кв.м. Фасад дома выполнен керамическим лицевым кирпичом 1.4НФ цвета солома с обрамлением углов и проёмов кирпичом цвета шоколад. Входная группа дома включает крыльцо под навесом и просторный тамбур на 4,2кв.м. В доме расположились три спальных комнаты, ванная и санузел, совмещенные гостиная и кухня, котельная. При хозяйской спальне имеется гардеробная. С кухни организован выход на террасу. Конструктивное решение Фундамент дома - железобетонный монолитный ленточный. ССтены дома выполнены по трехслойной системе с наружным слоем из керамического лицевого кирпича 1.4НФ, слоем теплоизоляции из пенополистирола, внутренним слоем из пустотелого керамического кирпича 2.1НФ поротерм. Полы выполнены по железобетонной монолитной плите. Чердачное перекрытие - по деревянн

Доброго времени года! Это ПМ№16 и наш очередной бесплатный готовый проект одноэтажного кирпичного дома.

Скачайте его с яндекс-диска

Далее смотрите 3Д-модель дома

Архитектурное решение

Проект одноэтажного кирпичного дома площадью 115кв.м.

Фасад дома выполнен керамическим лицевым кирпичом 1.4НФ цвета солома с обрамлением углов и проёмов кирпичом цвета шоколад. Входная группа дома включает крыльцо под навесом и просторный тамбур на 4,2кв.м. В доме расположились три спальных комнаты, ванная и санузел, совмещенные гостиная и кухня, котельная. При хозяйской спальне имеется гардеробная. С кухни организован выход на террасу.

-2

Конструктивное решение

Фундамент дома - железобетонный монолитный ленточный. ССтены дома выполнены по трехслойной системе с наружным слоем из керамического лицевого кирпича 1.4НФ, слоем теплоизоляции из пенополистирола, внутренним слоем из пустотелого керамического кирпича 2.1НФ поротерм. Полы выполнены по железобетонной монолитной плите. Чердачное перекрытие - по деревянным балкам. Крыша - металлочерепица по деревянной стропильной системе.

Возможны другие варианты конструктивных решений по согласованию с заказчиком.

Условия заказа проекта (стоимость, сроки и пр.), другие варианты планировок смотрите - pm16.ru