Найти в Дзене

Дом из газобетонных блоков с мансардой, террасой и крыльцом по центру, 136 кв. м

Хороший частный дом можно построить для семьи до 5 человек по представленному проекту. При необходимости к дому можно пристроить гараж и сделать в нем дополнительное пространство для выделенной котельной. Или сделать перепланировку и разместить котельную в доме. В данном примере используется настенный коаксиальный котел. Что касаемо строительства то можно использовать газобетонные блоки, керамические или кирпич. Проект дома 1-243 Проект дома с мансардой 9х10 м, с общей площадью 136 кв.м. В доме предусмотрены - терраса, крыльцо, 3 спальни, кабинет, кухня-гостиная с камином, 2 с/у, холл, лестница, гардероб, тамбур. >> Стоимость проекта дома 1-243 ____________________________________________________ Планировка 1 этажа Планировка 2 этажа Фасады Хотите заказать проект дома? Обратитесь к нашим специалистам. Подготовим для вас проектную документацию для строительства в составе АР и КР. Дополнительно можно заказать раздел инженерных сетей и дизайн проект. Контакты для связи: Наш сайт: #частный
Оглавление

Хороший частный дом можно построить для семьи до 5 человек по представленному проекту. При необходимости к дому можно пристроить гараж и сделать в нем дополнительное пространство для выделенной котельной. Или сделать перепланировку и разместить котельную в доме. В данном примере используется настенный коаксиальный котел. Что касаемо строительства то можно использовать газобетонные блоки, керамические или кирпич.

Проект дома 1-243

Проект дома с мансардой 9х10 м, с общей площадью 136 кв.м. В доме предусмотрены - терраса, крыльцо, 3 спальни, кабинет, кухня-гостиная с камином, 2 с/у, холл, лестница, гардероб, тамбур.

>> Стоимость проекта дома 1-243

____________________________________________________

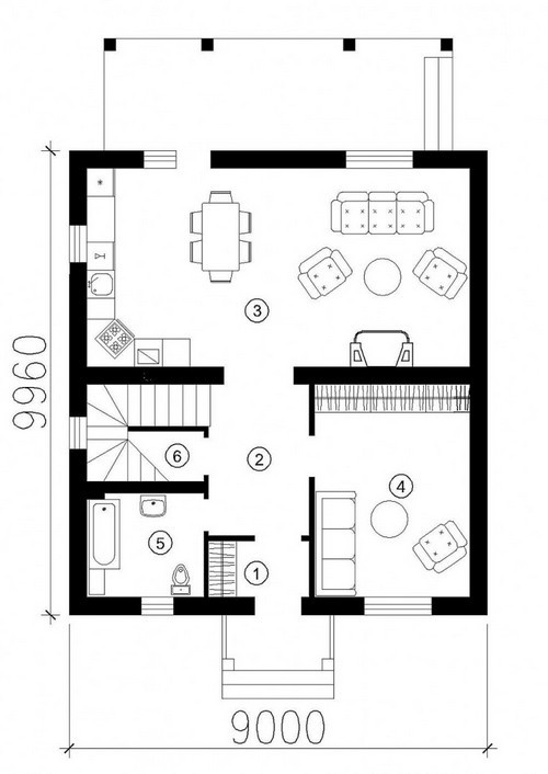
Планировка 1 этажа

-2
  1. Тамбур 2,33 кв. м
  2. Прихожая 6,83 кв. м
  3. Кухня-столовая 34,94 кв. м
  4. Кабинет 15,07 кв. м
  5. Санузел 5,52 кв. м
  6. Кладовая 1,6 кв. м

Планировка 2 этажа

-3
  1. Коридор 8,4 кв. м
  2. Спальня 16,4 кв. м
  3. Спальня 17,9 кв. м
  4. Спальня 13,9 кв. м
  5. Санузел 5,57 кв. м
  6. Гардероб 2,9 кв. м
  7. Лестница 4,86 кв. м

Фасады

Хотите заказать проект дома?

Обратитесь к нашим специалистам. Подготовим для вас проектную документацию для строительства в составе АР и КР. Дополнительно можно заказать раздел инженерных сетей и дизайн проект.

Контакты для связи:

Наш сайт:

«АСП» - строительство, проектирование и дизайн домов

#частныйдом #загородныедома #строительство #проектирование #дизайн #проектыдомов #домизгазобетона #мансардныйдом #дом #проектыкоттеджей