Найти в Дзене

Создание планировочного решения квартиры

Прежде всего любой дизайн-проект начинается с выявления потребностей заказчика. Заполняется, так называемое ТЗ, "требование заказчика", в котором указываются все его предпочтения по наполнению будущего пространства (от стилевого решения до выбора отделочных материалов). Далее проводятся обмеры помещения, если это требуется, и по готовым размерам в компьютерной программе строится проектируемое пространство. Исходя из требований, внутренне может измениться содержимое квартиры, например появиться новая комната, если площадь позволяет это сделать. На примере данной квартиры можно рассмотреть недочеты исходной планировки, которые удалось исправить. Во-первых, это отделение зоны прихожей, от остальной части квартиры, благодаря чему, грязь не будет разноситься по помещениям. Большой коридор удалось уменьшить и появилась небольшая кладовка, также площадь ванной комнаты была увеличена. Пространство кухни-гостиной расширилось после объединения его с балконом.

Прежде всего любой дизайн-проект начинается с выявления потребностей заказчика. Заполняется, так называемое ТЗ, "требование заказчика", в котором указываются все его предпочтения по наполнению будущего пространства (от стилевого решения до выбора отделочных материалов).

Далее проводятся обмеры помещения, если это требуется, и по готовым размерам в компьютерной программе строится проектируемое пространство. Исходя из требований, внутренне может измениться содержимое квартиры, например появиться новая комната, если площадь позволяет это сделать.

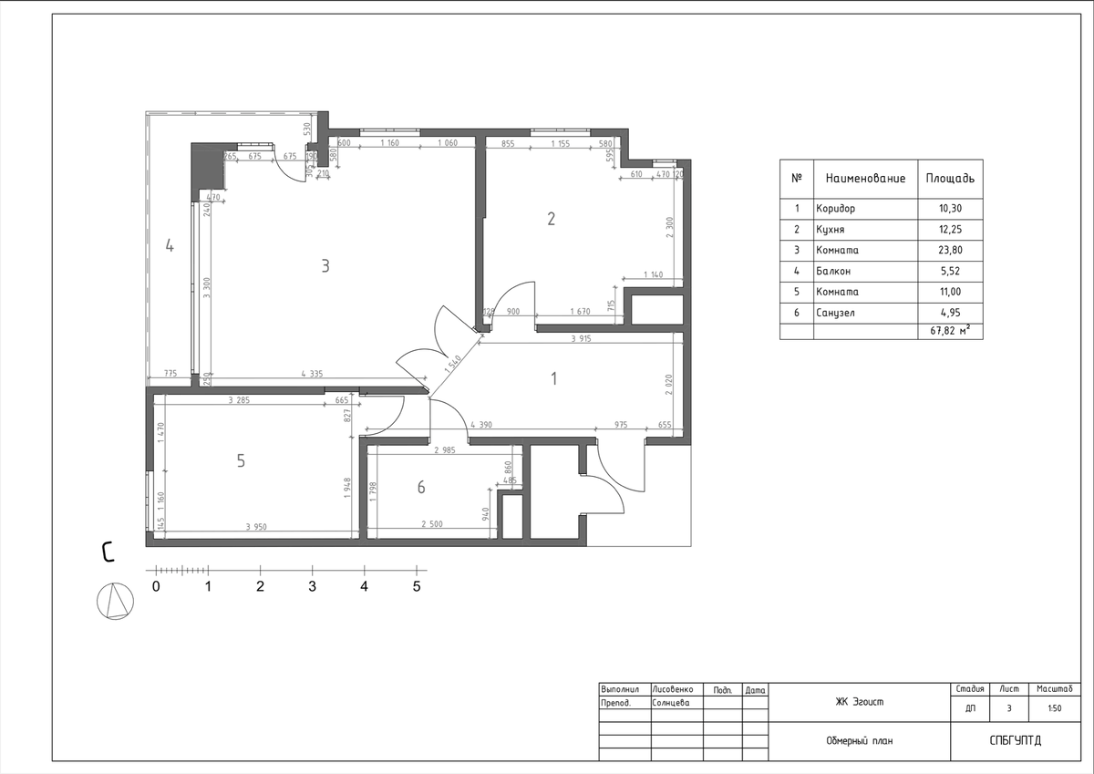
Обмерный план квартиры до перепланировки
Обмерный план квартиры до перепланировки
План демонтажа перегородок
План демонтажа перегородок
План монтажа перегородок
План монтажа перегородок
Обмерный план после перепланировки
Обмерный план после перепланировки

На примере данной квартиры можно рассмотреть недочеты исходной планировки, которые удалось исправить. Во-первых, это отделение зоны прихожей, от остальной части квартиры, благодаря чему, грязь не будет разноситься по помещениям. Большой коридор удалось уменьшить и появилась небольшая кладовка, также площадь ванной комнаты была увеличена. Пространство кухни-гостиной расширилось после объединения его с балконом.