Добавить в корзинуПозвонить
Найти в Дзене
Мечты Сбываются

Дом в купеческом стиле.

Уникальный для нашей студии проект появился благодаря любви наших заказчиков к классической архитектуре купеческих домов и усадеб, отличающийся исключительной внешней нарядностью и обилием декоративных форм. Расположение участка в Петергофе уже навевало мысли о пышном величии памятников архитектуры периода расцвета Российской империи. Вдохновившись памятниками архитектуры купеческих домов начала 19 века,мы приступили к проектированию комфортного дома для семьи из 3-х человек. На участке помимо дома расположились баня, соединенная с домом теплым переходом, бассейн, хозблок и навес для машин, пруд, прованский садик и даже птичник. Архитектор проекта изучила сотни аналогов,погрузилась в изучение специфики кладки, изучать узоры. Предложила десятки вариантов узоров кирпичной кладки и кованых декоративных элементов, ограждений и даже фамильный вензель, один из вариантов которого в итоге будет украшать фронтон над центральным входом в дом. Планировочное решение одноэтажного дома вписано в

Уникальный для нашей студии проект появился благодаря любви наших заказчиков к классической архитектуре купеческих домов и усадеб, отличающийся исключительной внешней нарядностью и обилием декоративных форм. Расположение участка в Петергофе уже навевало мысли о пышном величии памятников архитектуры периода расцвета Российской империи.

Вдохновившись памятниками архитектуры купеческих домов начала 19 века,мы приступили к проектированию комфортного дома для семьи из 3-х человек. На участке помимо дома расположились баня, соединенная с домом теплым переходом, бассейн, хозблок и навес для машин, пруд, прованский садик и даже птичник.

Архитектор проекта изучила сотни аналогов,погрузилась в изучение специфики кладки, изучать узоры. Предложила десятки вариантов узоров кирпичной кладки и кованых декоративных элементов, ограждений и даже фамильный вензель, один из вариантов которого в итоге будет украшать фронтон над центральным входом в дом.

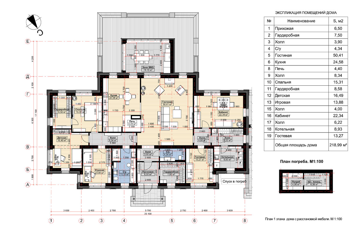
Планировочное решение одноэтажного дома вписано в симметричное по форме здание и при этом имеет максимально функциональную структуру. Центральное пространство занимает просторная гостиная, связанная с кухней-столовой традиционной русской печью - особое пожелание заказчиков. Со стороны кухни находится топка и можно готовить традиционные блюда русской кухни, а со стороны гостиной - лежанка (перекрышка), на которой возможно полежать, погреться.

Из обоих помещений имеется выход в остекленную зону барбекю, примыкающую к дому и являющуюся архитектурно частью дома.

В левом крыле разместились хозяйская спальня с шикарной гардеробной комнатой и детская комната, рядом с которой находится игровая, с перспективой трансформироваться во вторую детскую.

В правом крыле - кабинет и гостевая комната, здесь же котельная и холл перед выходом в крытую галерею, ведущую в баню и в погребок в подвальном помещении.
___________________
Больше проектов смотрите в нашем
портфолио на сайте.
Заказать проект или записаться на бесплатную консультацию можно заполнив
форму на сайте.
_____________________
#дом #проектдома #проектированиедомов #проектированиедома #проектированиекоттеджей #архитектура #архитектурадома #петергоф #кирпичныйдом #купеческийдом