Добавить в корзинуПозвонить
Найти в Дзене
Блондинка в дизайне

Дизайн-проект квартиры в приятной цветовой гамме

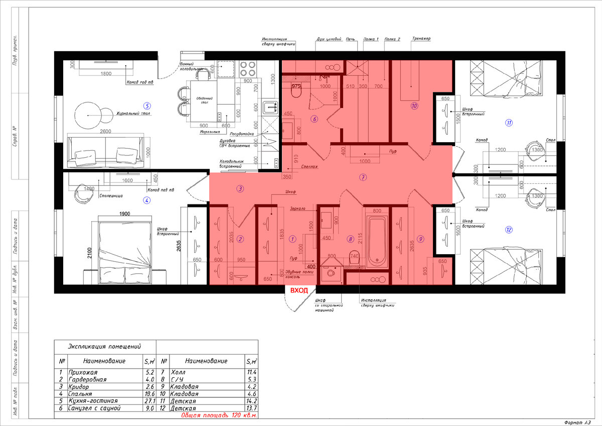
Квартира 120 кв.м. со свободной планировкой, двумя санузлами и окнами в пол. Заказчики- семейная пара с двумя детьми. Квартира со свободной планировкой, требования заказчиков: Особенности - окна расположены только по двум сторонам , большая площадь квартиры без естественного освещения. Получилась следующая организация комнат: Все технические помещения, санузлы , гардеробные и пр. я разместила в той части квартиры, где нет окон. Ну а теперь рассмотрим по порядку) 1. Прихожая Из прихожей, поворачивая налево распашные стеклянные двери на кухню 2. Совмещенные кухня с гостиной 3. Спальня с рабочим местом. 4. Слева по коридору первый санузел с сауной 5.Напротив него второй санузел с ванной , стиральной и сушильными машинами. 6. Детские комнаты сделали идентичными друг другу - с двухъярусной кроватью, рабочим местом и встроенными шкафами. Ставьте лайк, если понравился дизайн данной квартиры) Вам также могут понравится статьи: Уютная студия 23 кв.м. Уместила кухню, гостиную и спаль

Квартира 120 кв.м. со свободной планировкой, двумя санузлами и окнами в пол. Заказчики- семейная пара с двумя детьми.

Квартира со свободной планировкой, требования заказчиков:

  • кухня-гостиная
  • спальня
  • две детские
  • отдельные гардеробные у детских комнат
  • кладовая для хранения велосипедов и лыж

Особенности - окна расположены только по двум сторонам , большая площадь квартиры без естественного освещения.

Получилась следующая организация комнат:

Все технические помещения, санузлы , гардеробные и пр. я разместила в той части квартиры, где нет окон.

-2

Ну а теперь рассмотрим по порядку)

1. Прихожая

-3
  • Вместительный шкаф для вещей
  • обувница
  • большое зеркало
  • пуф
-4
-5
-6

Из прихожей, поворачивая налево распашные стеклянные двери на кухню

-7

2. Совмещенные кухня с гостиной

-8
-9
-10
-11
-12
-13

3. Спальня с рабочим местом.

-14
-15
-16
-17

4. Слева по коридору первый санузел с сауной

-18
-19
-20

5.Напротив него второй санузел с ванной , стиральной и сушильными машинами.

-21

6. Детские комнаты сделали идентичными друг другу - с двухъярусной кроватью, рабочим местом и встроенными шкафами.

-22
-23
-24
-25
-26

Ставьте лайк, если понравился дизайн данной квартиры)

Вам также могут понравится статьи:

Уютная студия 23 кв.м.

Уместила кухню, гостиную и спальню на 19 квадратных метрах
Как я ошибалась с краской для дома из бруса. Особенности деревянного дома.
Квартира для мамы с дочкой. Мой самый розовый проект
Современная квартира из старой 3-х комнатной коммуналки
Больше моих работ в Инстаграм@natalya_sh_design
По вопросам сотрудничества писать в Tелеграм: @blond_in_designn