Найти в Дзене
Эдуард Суханов

Небольшая гардеробная

У нас же нет салона, к нам люди обращаются через интернет. Находят сайт, с ютуба, с социальных сетей иногда приходят. Могут позвонить, а могут сразу прислать на вацап или почту просьбу посчитать стоимость изготовления. И никогда не угадаешь закажу или нет. Иногда думаешь что точно не закажут и рисуешь мебель по-быстрому, особо не стараясь, даже без рендеров (симпатичных картинок). Тяп, ляп, цену подписал, отправил. Еще сухо подписываю - срок изготовление 60 календарных дней. Вдруг ответ - нас устраивает, как заключить договор? Это пожалуй самые лучшие клиенты. Пришли сами, согласны на первый же вариант, непривередливые, скидку не просят. Конечно я потом довожу до ума проект, расспрашиваю что бы они хотели и советую как лучше. Как правило у таких заказчиков полярный опыт, либо им всегда везло и все что они заказывали проходило гладко, либо наоборот так натерпелись, что уже не хотят рисковать за дешево. Самые тяжелые заказчики сомневающиеся... Сейчас у нас впереди заказ один, где кли

У нас же нет салона, к нам люди обращаются через интернет. Находят сайт, с ютуба, с социальных сетей иногда приходят. Могут позвонить, а могут сразу прислать на вацап или почту просьбу посчитать стоимость изготовления. И никогда не угадаешь закажу или нет. Иногда думаешь что точно не закажут и рисуешь мебель по-быстрому, особо не стараясь, даже без рендеров (симпатичных картинок). Тяп, ляп, цену подписал, отправил. Еще сухо подписываю - срок изготовление 60 календарных дней. Вдруг ответ - нас устраивает, как заключить договор?

Это пожалуй самые лучшие клиенты. Пришли сами, согласны на первый же вариант, непривередливые, скидку не просят. Конечно я потом довожу до ума проект, расспрашиваю что бы они хотели и советую как лучше.

Как правило у таких заказчиков полярный опыт, либо им всегда везло и все что они заказывали проходило гладко, либо наоборот так натерпелись, что уже не хотят рисковать за дешево.

Самые тяжелые заказчики сомневающиеся... Сейчас у нас впереди заказ один, где клиент поставил вдруг условие работать 1 день в неделю в субботу. После того как сделал заказ, начал писать, часто спрашивать - ну что, делаете мне шкаф?

Врать не люблю, говорю - нет, пока не делаем, не дошла очередь.

- Ну а материал купили?

Говорю - нет еще, а смысл? Будет лежать место занимать... Не волнуйтесь его много, он есть, купим.

Ну и все в таком духе.

Звонит её супруг и как бы извиняясь начинает расспросы и в конце говорит - супруга мнительная, нас обманывали... можете её успокоить как то?

Говорю - хорошо, успокою.

Купили ЛДСП, распилили, сфоткал, послал.

Пишет - Ура! А когда привезете собирать?

Говорю - у нас еще месяц впереди, нам ящики собрать нужно и тогда уже приедем.

Хотя сам понимаю, что раз в неделю если сборка будет, мы его месяц собирать и будем такими темпами. Они живут далеко от нас, ездить устанем еще...

Когда ящики собирал, видео ей показал, как собираю.

Гришу попросил как двери начнет собирать, чтоб фотку ей либо мне послал, показать ей.

Я все же надеюсь что человек оттает и пойдет нам на встречу, отдаст ключ от квартиры либо кто-то посидит с нами несколько дней подряд. Такое было. Сначала люди наблюдают за нами, видят что мы не имбецилы и добреют. У меня и сейчас ключ от чужой квартиры на связке висит, уже вторую неделю.

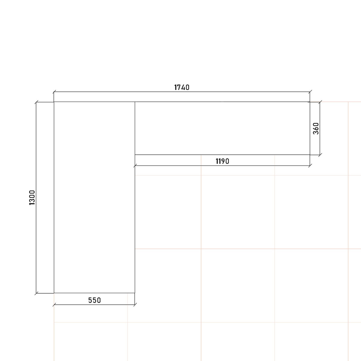
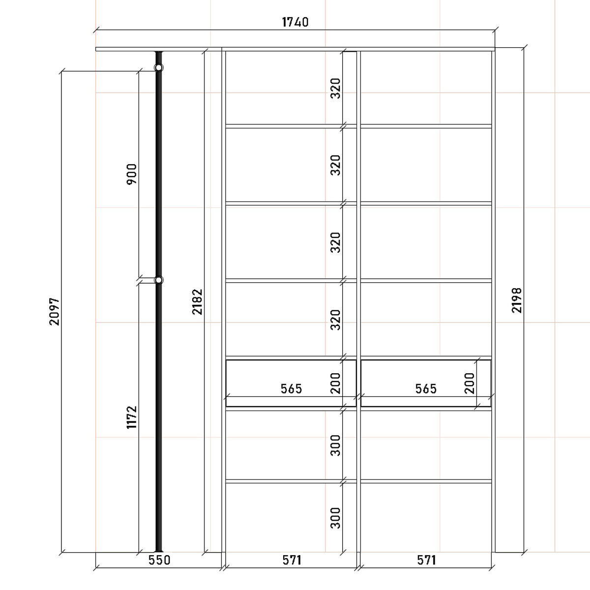
Вообще я не про это хотел рассказать, изобразил вчера гардеробную, копию нашей работы. Женщина обратилась, говорит - понравился вариант, мне вот тоже самое, но по моим размерам.

Ей конечно пришлось подождать, я занят был, в очередь ставил. Вот вчера изобразил, одну симпатичную картинку сделал, спать лег в 2 ночи. Сегодня смотрю ответ утром - спасибо, я уже в другом месте заказала и дешевле.

Ну ладно, хоть ответила. Часто просто молчат или пишут - спасибо.

Многих заказчиков помню. Такую гардеробную мы делали в Мытищах Дмитрию. Сначала мы делали ему большой шкаф в трехкомнатную квартиру, у него еще некоторые стены и весь потолок был шлифованный бетон. Мне лично не понравилось. Но заказчик очень хороший, парень лет 30.

Через год он эту квартиру продал, купил себе однокомнатную тоже в Мытищах и мы ему эту гардеробную сделали.

А в том году кажется, сделали ему гардеробную и шкаф в прихожую в его новой квартире в двушке. Такое бывает, люди меняют жилплощадь и нас постоянно зовут. Приятно конечно.

А был один случай необычный, первый и последний. Наш заказчик продал квартиру и все документы оставил новому владельцу, в том числе и на мебель которую мы ему делали. Тот нашел бланк заказа, связался с нами и заказал шкаф-купе. Я это все узнал ближе к финалу, разговорились, он рассказал. Был удивлен. Этот новый клиент сказал - "Ну мы пользовались вашей гардеробной, нам все нравится. Подумали нужно у них же и шкаф тогда заказать".