Добавить в корзинуПозвонить
Найти в Дзене

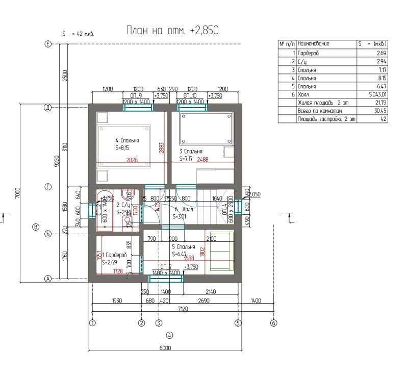
Как на 84 м2 разместить 9 помещений? Легко!

Продолжаем рассказывать вам о проекте Селиваниха-84 В последнем посте было очень много вопросов, связанных с планировкой. Сегодня мы решили выложить вам часть проекта, чтобы вы могли увидеть, каким образом организовано внутреннее пространство 84 м2 - это очень небольшая площадь. Но здесь, как мы доказали, можно разместить шикарную кухню-гостиную, санузел, холл под лестницу, на втором этаже комфортно расположились целых 3 спальни, гардеробная и второй сан.узел. И всё это на 84 м2! Это тот случай, когда необходимо разместить большое количество жителей и сэкономить бюджет Внутри выполнена отделка из гипсокартона. Полы подготовлены под укладку финишного покрытия. Выполнена разводка холодной и горячей воды, канализации и смонтированы тёплые полы Хотите получить проект бесплатно? Ставьте плюсик в комментарии и мы вам вышлем его. Сможете построить даже сами

Продолжаем рассказывать вам о проекте Селиваниха-84

В последнем посте было очень много вопросов, связанных с планировкой. Сегодня мы решили выложить вам часть проекта, чтобы вы могли увидеть, каким образом организовано внутреннее пространство

84 м2 - это очень небольшая площадь. Но здесь, как мы доказали, можно разместить шикарную кухню-гостиную, санузел, холл под лестницу, на втором этаже комфортно расположились целых 3 спальни, гардеробная и второй сан.узел. И всё это на 84 м2!

Это тот случай, когда необходимо разместить большое количество жителей и сэкономить бюджет

Внутри выполнена отделка из гипсокартона. Полы подготовлены под укладку финишного покрытия. Выполнена разводка холодной и горячей воды, канализации и смонтированы тёплые полы

Хотите получить проект бесплатно? Ставьте плюсик в комментарии и мы вам вышлем его. Сможете построить даже сами

-2
-3
-4
-5
-6
-7
-8
-9