Добавить в корзинуПозвонить
Найти в Дзене

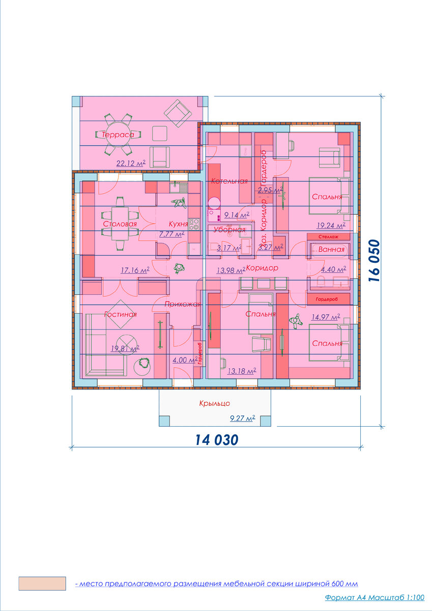
Проект "СКРОМНЫЙ" 130 м2 одноэтажного дома с 3 спальнями и раздельными всеми комнатами гостиной, кухни и столовой

Разумный проект одноэтажного 130 м2 дома Вашему вниманию. В доме комфортные площади основных помещений. Вся мебель заранее расставлена на свои перспективные места. Интересный узел вокруг котельной. Как видно можно приготовить спокойно еду при закрытых дверях на кухне, а затем презентовать в столовой, ну а на запах потом слетятся гости с гостиной. Симметричный главный фасад. Такая форма всем по душе. Автомобили - для масштабности. А как видно домик то совсем не маленький, как кажется из общей площади. Терраса на заднем дворике, также получилась удачно. У неё выход не только со столовой, но и из прачечной/котельной. Больше готовых проектов удобнее смотреть на моём прорабатываемом сайте - ССЫЛКА. Также ещё ввожу новый приём презентации проектов - в виде роликов, просто листаем и ищем подходящий проект дома - ССЫЛКА.
3D Визуализация №1
3D Визуализация №1

Разумный проект одноэтажного 130 м2 дома Вашему вниманию.

В доме комфортные площади основных помещений.

Вся мебель заранее расставлена на свои перспективные места.

Интересный узел вокруг котельной.

Как видно можно приготовить спокойно еду при закрытых дверях на кухне, а затем презентовать в столовой, ну а на запах потом слетятся гости с гостиной.

3D Визуализация №2
3D Визуализация №2

Симметричный главный фасад. Такая форма всем по душе.

3D Визуализация №3
3D Визуализация №3

Автомобили - для масштабности. А как видно домик то совсем не маленький, как кажется из общей площади.

3D Визуализация №4
3D Визуализация №4

Терраса на заднем дворике, также получилась удачно. У неё выход не только со столовой, но и из прачечной/котельной.

3D Визуализация №5
3D Визуализация №5

Больше готовых проектов удобнее смотреть на моём прорабатываемом сайте - ССЫЛКА.

Также ещё ввожу новый приём презентации проектов - в виде роликов, просто листаем и ищем подходящий проект дома - ССЫЛКА.