Добавить в корзинуПозвонить
Найти в Дзене
Ландшафтный гуру

Женщина-дизайнер показала интерьер в таунхаусе, который не выйдет из моды много лет

Данный дом является классическим таунхаусом и принадлежит нашим героям уже несколько лет. И чтобы жить в доме было максимально комфортно, нужно было создать идеальный интерьер, который будет много лет смотреться стильным и современным. Для этого владельцы таунхауса обратились в дизайнерскую студию. Проект Прихожая Входную группу выделили темным цветом. На полу уложили керамогранит с имитацией деревянного покрытия. С одной стороны установили большое зеркальное панно, а напротив него появилась закрытая и открытая система хранения со светлыми фасадами. Кухня-гостиная Кухню и гостиную было решено объединить в одно большое пространство. По левую руку от входа в помещение разместили кухонную зону. Здесь установлен линейный кухонный гарнитур с антресольными секциями для хранения. Нижние и боковые фасады выкрасили в цвет стен, чтобы они смотрелись, как единое целое. Фартук изготовлен из оникса и притягивает на себя все взгляды. Напротив гарнитура организовали просторную столовую группу с боль
Оглавление

Данный дом является классическим таунхаусом и принадлежит нашим героям уже несколько лет. И чтобы жить в доме было максимально комфортно, нужно было создать идеальный интерьер, который будет много лет смотреться стильным и современным. Для этого владельцы таунхауса обратились в дизайнерскую студию.

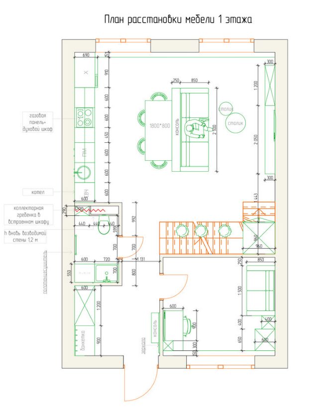
Проект

  • Местонахождение: г. Тверь
  • Площадь дома: 106 кв. метров
  • Владельцы: семья

Прихожая

Входную группу выделили темным цветом. На полу уложили керамогранит с имитацией деревянного покрытия. С одной стороны установили большое зеркальное панно, а напротив него появилась закрытая и открытая система хранения со светлыми фасадами.

Кухня-гостиная

Кухню и гостиную было решено объединить в одно большое пространство. По левую руку от входа в помещение разместили кухонную зону. Здесь установлен линейный кухонный гарнитур с антресольными секциями для хранения. Нижние и боковые фасады выкрасили в цвет стен, чтобы они смотрелись, как единое целое. Фартук изготовлен из оникса и притягивает на себя все взгляды.

Напротив гарнитура организовали просторную столовую группу с большим деревянным столом. Сразу за столом начинается зона гостиной. Здесь встал удобный диван, а напротив него появилась телевизионная зона, которую выделили насыщенным синим цветом. Под лестницей на второй этаж организовали миниатюрный зеленый уголок.

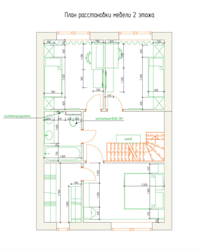
Спальня

Хозяйскую спальню оформили в светлых и нейтральных тонах, чтобы здесь можно было отдыхать и душой и телом. В центре находится двуспальная кровать с прикроватными тумбочками. Напротив кровати есть вход в просторную гардеробную. В углу комнаты разместили туалетный столик для хозяйки.

Детская

В детской комнате преобладают белые и бирюзовые цвета. Здесь есть всё, что необходимо любому ребенку: спальное место, рабочий уголок, места для хранения и тд.

Санузел

Санузел хозяева захотели оформить в темной цветовой палитре. В облицовке стен и пола прекрасно сочетаются керамогранит и плитка с геометрическим принтом. С правой стороны от раковины, под столешницей, установили стиральную машину.

Если вам понравилась статья, то не забудьте поставить лайк и подписаться, чтобы не пропустить новый материал!

Делитесь своим мнением в комментариях)