Добавить в корзинуПозвонить
Найти в Дзене
Филдс

Дизайнер превратила «уставшую» панельку 55 м² в квартиру мечты в Ростове: фото до и после

Дизайнер Мария Пивоварова оформила двухкомнатную квартиру 55 м² для мамы заказчицы. Требовалось создать комфортный и стильный интерьер, а также предусмотреть системы хранения в каждой комнате. Планировка Фото до ремонта Гостиная Гостиную оформили в неоклассическом стиле с симметричным расположением мебели. Нейтральную отделку разбавили синими акцентами — диваном, картиной, ТВ-тумбой и текстилем на окнах. Рядом с ТВ-зоной обустроили рабочее место. Стол и полки над ним изготовили на заказ, как и другую мебель в комнате. В роли выразительных акцентов выступают осветительные приборы — люстра на потолке и настенные бра. Кухня Гарнитур расположили Г-образно. Чтобы внести динамику, скомбинировали гладкие и рельефные фасады двух цветов, которые укомплектовали латунными ручками. Навесные шкафы довели до потолка, чтобы увеличить объем мест для хранения. Обеденную зону выделили другой отделкой — цветочным панно. С ним перекликаются стулья в составе столовой группы и орнамент на керамограни
Оглавление

Дизайнер Мария Пивоварова оформила двухкомнатную квартиру 55 м² для мамы заказчицы. Требовалось создать комфортный и стильный интерьер, а также предусмотреть системы хранения в каждой комнате.

  • Общая площадь: 55 м²
  • Место: Ростов-на-Дону
  • Тип дома: панельный
  • Количество комнат: 2
  • Высота потолка: 2,5 м
  • Кто здесь живет: женщина
  • Фото: Инна Каблукова
  • Стилист: Марина Гусева

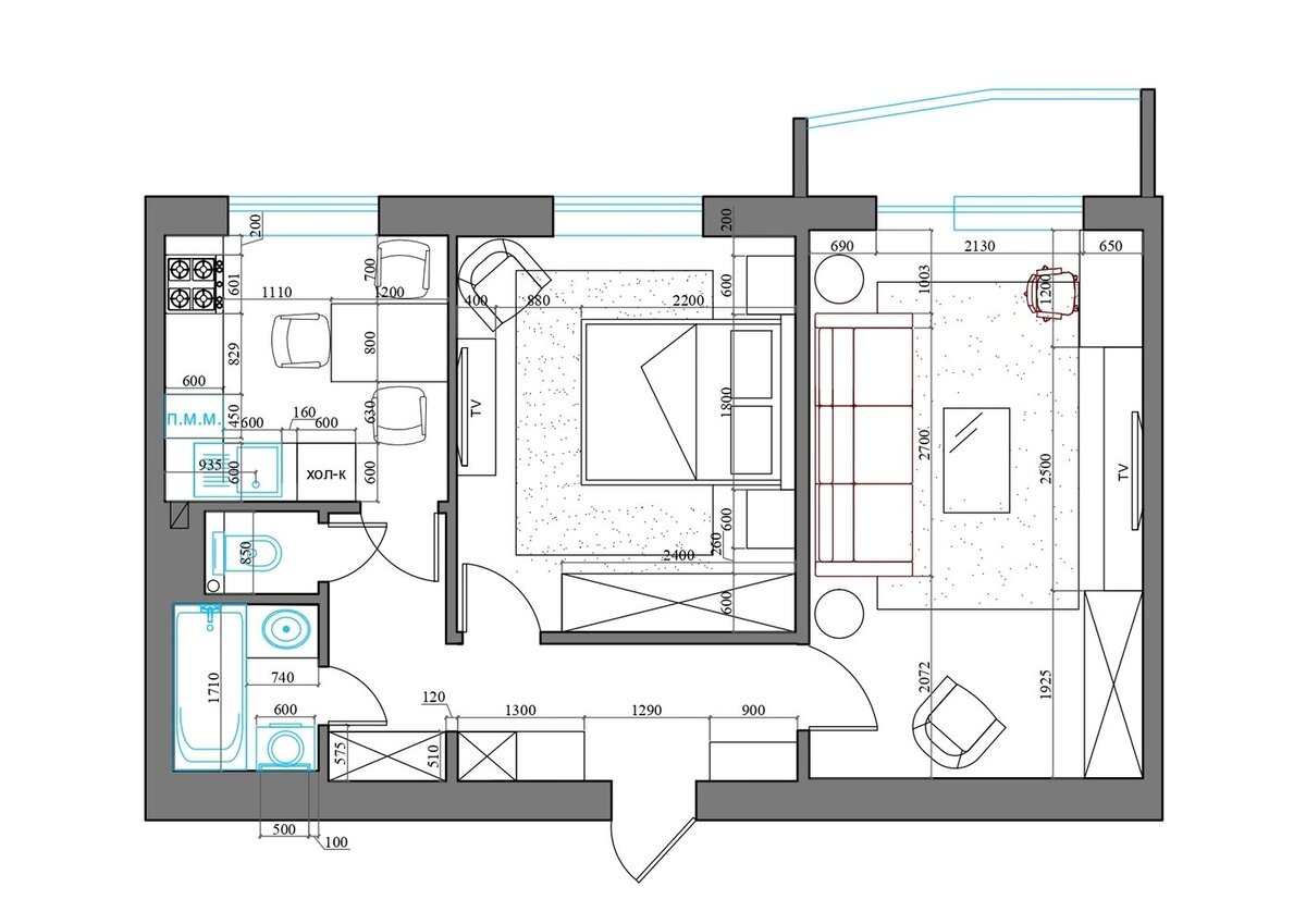
Планировка

Исходную планировку сохранили. В двух комнатах обустроили спальню и гостиную, санузел оставили раздельным.
Исходную планировку сохранили. В двух комнатах обустроили спальню и гостиную, санузел оставили раздельным.

Фото до ремонта

Гостиная

Гостиную оформили в неоклассическом стиле с симметричным расположением мебели. Нейтральную отделку разбавили синими акцентами — диваном, картиной, ТВ-тумбой и текстилем на окнах.

Рядом с ТВ-зоной обустроили рабочее место. Стол и полки над ним изготовили на заказ, как и другую мебель в комнате.

В роли выразительных акцентов выступают осветительные приборы — люстра на потолке и настенные бра.

-5

Кухня

Гарнитур расположили Г-образно. Чтобы внести динамику, скомбинировали гладкие и рельефные фасады двух цветов, которые укомплектовали латунными ручками. Навесные шкафы довели до потолка, чтобы увеличить объем мест для хранения.

Обеденную зону выделили другой отделкой — цветочным панно. С ним перекликаются стулья в составе столовой группы и орнамент на керамограните на полу.

Спальня

Спальню оформили в припыленных розово-голубых тонах. На акцентной стене в изголовье кровати скомбинировали краску и обои с растительным принтом, которые заключили в рамки из молдингов.

Рядом со входом установили вместительный гардероб с закрытыми и открытыми секциями. Зеркало на одной из его дверей работает на визуальное расширение пространства.

Прихожая

В прихожей придерживались такого же сценария отделки, как и в гостиной, — нейтральный фон плюс голубые акценты. Винтажная ваза на подвесной консоли — собственность владелицы жилья. Ее удалось гармонично вписать в интерьер.

-10

Санузел

Ванная и уборная в квартире — раздельные. Отделку обоих помещений выполнили в одной стилистике — крупноформатную плитку сочетали с акцентной синей керамикой в форме вытянутых гексагонов. Из систем хранения в ванной предусмотрели тумбу под раковину, а в туалете — встроенный шкаф над инсталляцией.

Интересные мнения в комментариях приветствуются. Если материал понравился — ставь лайк!

🖤 Филдс — это не только блог на Дзене, но и магазин дизайнерских предметов интерьера. Заходите на сайт, чтобы увидеть мебель, которую дизайнеры выбирают для своих проектов.