Добавить в корзинуПозвонить
Найти в Дзене

Потрясающий результат! Ремонт в «сталинке» с фото ДО и ПОСЛЕ

Сегодня посмотрим на невероятное преображение квартиры площадью 97 «квадратов» и 3-метровыми потолками, расположенной в столице на набережной Т. Шевченко. Общее направление дизайна интерьера — элегантный минимализм, оформленный в серых тонах. Если вам нравятся статьи на тему до/после ремонта, ставьте 👍 и подпишитесь, и их будет больше:) 🤔С чего начать преображение жилплощади? С концепции дизайна интерьера, которая доступна по ссылке: 👉https://clck.ru/33Wehm Это бесплатно и быстро! СВОЕОБРАЗНАЯ ПЛАНИРОВКА Изначальная планировка не отвечала запросам молодой пары на 100%, поэтому было решено избавиться от лишних перегородок, установить новые в нужных местах и перенести несколько дверных проемов. В итоге получилось объединить пространство, выделить гардеробные и сделать 2 изолированные спальни правильной прямоугольной формы и комфортного размера. ПРИХОЖАЯ Здесь убрали несколько стен, организовали систему хранения. Зона прихожей-холла объединена со столовой. Это бесплатно и займет мен
Оглавление

Сегодня посмотрим на невероятное преображение квартиры площадью 97 «квадратов» и 3-метровыми потолками, расположенной в столице на набережной Т. Шевченко. Общее направление дизайна интерьера — элегантный минимализм, оформленный в серых тонах.

Если вам нравятся статьи на тему до/после ремонта, ставьте 👍 и подпишитесь, и их будет больше:)

🤔С чего начать преображение жилплощади? С концепции дизайна интерьера, которая доступна по ссылке: 👉https://clck.ru/33Wehm
Это бесплатно и быстро!

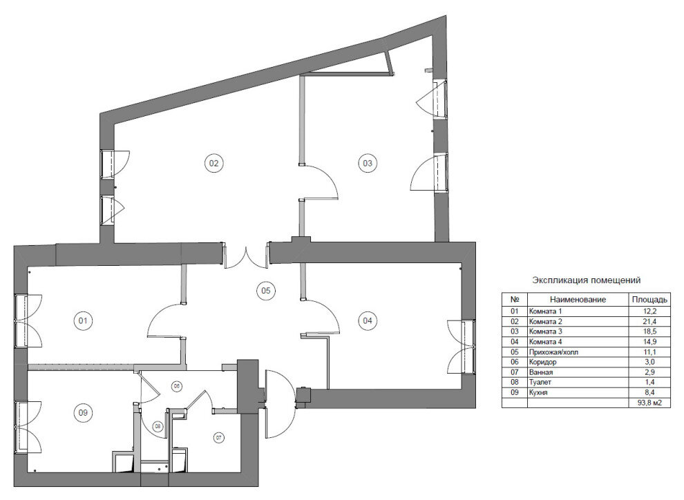
СВОЕОБРАЗНАЯ ПЛАНИРОВКА

Изначальная планировка не отвечала запросам молодой пары на 100%, поэтому было решено избавиться от лишних перегородок, установить новые в нужных местах и перенести несколько дверных проемов.

-2

В итоге получилось объединить пространство, выделить гардеробные и сделать 2 изолированные спальни правильной прямоугольной формы и комфортного размера.

ПРИХОЖАЯ

-3

Здесь убрали несколько стен, организовали систему хранения. Зона прихожей-холла объединена со столовой.

-4

-5

Это бесплатно и займет меньше минуты.

> > >НАЖМИТЕ ЗДЕСЬ< < <

СТОЛОВАЯ

-6

На этом фото видно помещение, которое после сноса перегородки выполняет функции гостиной и столовой.

КУХНЯ

-7

На кухне удалось удачно обыграть вентиляционный короб, который стал продолжением фасадов.

СПАЛЬНЯ

-8

Изначально у этой комнаты была неправильная форма. В ходе переделки эту особенность планировки удалось превратить в достоинство.

-9

Спальню привели к форме прямоугольника, а за стеной в изголовье кровати организовали 2 гардеробные.

Хотите получить бесплатный расчет стоимости ремонта в собственной квартире? Просто заполните форму ниже:

ДЕТСКАЯ

-10

Хоть у пары пока нет детей, комнату оформили с прицелом на будущее. Пока что она выполняет роль гостевой спальни.

КАБИНЕТ

-11

Третья изолированная комната отведена под кабинет и также может легко трансформироваться в спальню для гостей.

ВАННАЯ КОМНАТА

-12

За счет коридора удалось расширить пространство в санузле, что позволило разместить встроенную стиральную машину, объемные полки и бельевую корзину.

Как вам преображение? Какие приемы понравились больше всего? С нетерпением жду вашего ответа в комментариях 👇

🔥Хотите создать у себя дома нечто подобное? Рассчитайте бесплатно за 30 секунд стоимость дизайн-проект. Переходите по ➡️ссылке⬅️.

Другое не менее потрясающее преображение квартиры в старом доме вы можете увидеть в этой статье.