Найти в Дзене

Проект Виллози. Планировка 4. “Гостеприимный и уютный дом”.

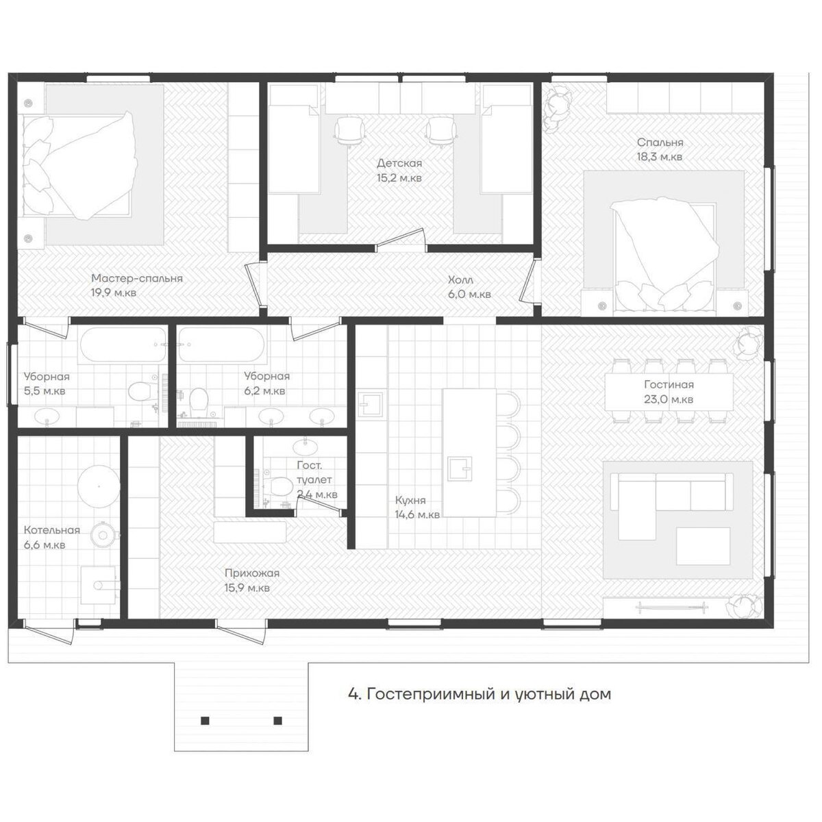
В этой планировке мы хотим показать вариант при котором, заходя в дом, сразу попадаешь в гостиную. Из просторной прихожей 15.9 м², где предусмотрен большой шкаф, сразу можно зайти в гостевой туалет 2.4 м².
Большая кухня 14.6 м² с островом, обеденный стол у окна.
Диван небольшой, но при желании его можно увеличить.
Из дополнительного холла 6 м² можем попасть в уборную 6.2 м² с 2 раковинами, которая предназначена для спальни 18.3 м² и детской 15.2 м² на двоих детей, а также - в мастер-спальню 19.9 м² со своей собственной ванной комнатой.
В котельную 6.6 м² попадаем снаружи дома.
Что думаете об этом варианте?
Чтобы записаться на консультацию по ипотеке или подбору проекта дома, вы можете написать нам на почту info@villozi.com или позвонить по бесплатному для всей России номеру: 8-800-555-54-39 Мы в соц. сетях: YouTube канал Виллози Хаус (Sip) - https://clc.to/Er1ZvA Телеграм: https://t.me/villozihouse Vkontakte: https://vk.com/villozihouse_sip Инстаграм: https://instagram.co


В этой планировке мы хотим показать вариант при котором, заходя в дом, сразу попадаешь в гостиную.

Из просторной прихожей 15.9 м², где предусмотрен большой шкаф, сразу можно зайти в гостевой туалет 2.4 м².

Большая кухня 14.6 м² с островом, обеденный стол у окна.

Диван небольшой, но при желании его можно увеличить.


Из дополнительного холла 6 м² можем попасть в уборную 6.2 м² с 2 раковинами, которая предназначена для спальни 18.3 м² и детской 15.2 м² на двоих детей, а также - в мастер-спальню 19.9 м² со своей собственной ванной комнатой.

В котельную 6.6 м² попадаем снаружи дома.

Что думаете об этом варианте?

Чтобы записаться на консультацию по ипотеке или подбору проекта дома, вы можете написать нам на почту info@villozi.com или позвонить по бесплатному для всей России номеру: 8-800-555-54-39

Мы в соц. сетях:

YouTube канал Виллози Хаус (Sip) - https://clc.to/Er1ZvA

Телеграм: https://t.me/villozihouse

Vkontakte: https://vk.com/villozihouse_sip

Инстаграм: https://instagram.com/villozi_house_sip