Добавить в корзинуПозвонить
Найти в Дзене
Пикабу

Металлический корпус прибора

Где то лет 20 назад я затеял мелкосерийное производство электронного устройства. С электроникой вопрос решился достаточно просто - связался с компаниями на Тайване, съездил в гости... Но абсолютно выпал из поля зрения один момент - корпуса. Зная возможности промышленности города советского периода я был уверен что вопрос с корпусами решу на счет - раз! Но оказалось что надеялся зря! Послеперестроечная разруха в промышлености, износ оборудование, отсутствие кадров - объездил десятки предприятий и ни одно не смогло изготовить корпуса по моим чертежам. Лихорадочно пытался решить проблемы, искал пути и варианты. Сейчас снова решаю проблему корпусов но уже с учетом прошлых ошибок. Один из таких прошлых вариантов хочу представить, возможно кому и пригодится при штучном или мелкосерийном производстве. Корпус из металла. Основная особенность корпуса - заготовка из листового металла вырезаная лазером. Сейчас лазеры для резки достаточно распространены, а 20 лет назад в городе было только одно ме

Где то лет 20 назад я затеял мелкосерийное производство электронного устройства. С электроникой вопрос решился достаточно просто - связался с компаниями на Тайване, съездил в гости...

Но абсолютно выпал из поля зрения один момент - корпуса. Зная возможности промышленности города советского периода я был уверен что вопрос с корпусами решу на счет - раз! Но оказалось что надеялся зря! Послеперестроечная разруха в промышлености, износ оборудование, отсутствие кадров - объездил десятки предприятий и ни одно не смогло изготовить корпуса по моим чертежам.

Лихорадочно пытался решить проблемы, искал пути и варианты. Сейчас снова решаю проблему корпусов но уже с учетом прошлых ошибок.

Один из таких прошлых вариантов хочу представить, возможно кому и пригодится при штучном или мелкосерийном производстве.

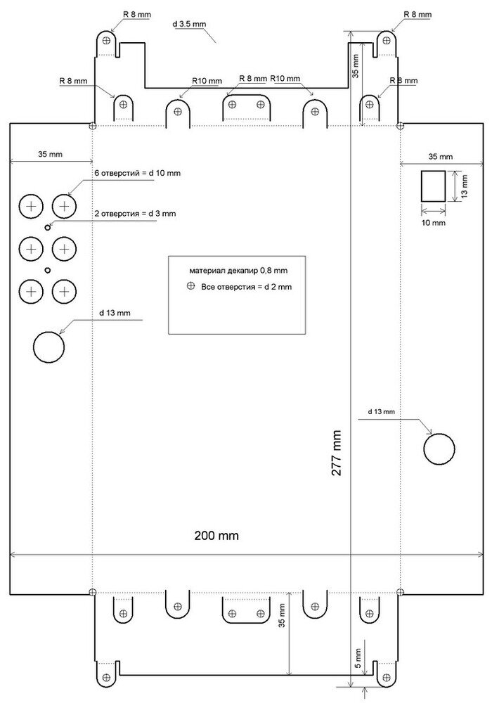
Корпус из металла. Основная особенность корпуса - заготовка из листового металла вырезаная лазером. Сейчас лазеры для резки достаточно распространены, а 20 лет назад в городе было только одно место. И весьма дорогое.

Чертеж развертки корпуса.

На чертеже пунктиром показаны линии сгиба. Но это не только слинии сгиба но и линии пунктирного реза лазером, вот таким пунктиром.

.
.

Ослабленый таким образом металл легко согнуть по этой линии с помощью простых оправок.

После сгиба и формовки в объеме пунктирные линии реза надо пропаять, пройтись по ним обычным тугоплавким бессвинцовым припоем. Таким образом и щели исчезнут, смотрите на следующих фото, и жесткость мест сгиба многократно возрастет. Затем грунтовка и покраска. Все!

Легкий и прочный корпус готов. Он получился вполне элегантным.

Узнать, что думают пикабушники.