Найти в Дзене

Место, где хочется проводить всё свободное время🏠

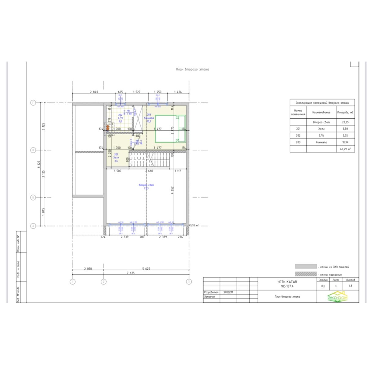
Помните, когда мы были юные, нам так не хотелось жить в частном доме: копать картошку, делать будку для собаки, чистить снег зимой. Как мы мечтали уехать из провинции в большой город и жить на 20 этаже высотки😎 А что теперь? Мы устали от жизни в бетонной коробке и стремимся вернуться в небольшие города и села за самым главным – проводить всё своё свободное в кругу семьи: на природе, в тишине и покое💕 Для ценителей городского стиля, но свободной деревенской жизни мы придумали идеальное решение⬇️ ✅ Дом в стиле барнхаус общей площадью 106,8 м²🔥 1️⃣ на первом этаже расположились: 🛠️ терраса на 11,2 м² 🛠️ крыльцо 3,8 м² 🛠️ тамбур 6,4 м² 🛠️ техническое помещение 5,6 м² 🛠️ санузел 3,9 м² 🛠️ комната 11,2 м² 🛠️ кухня-гостиная 20,3 м² 🛠️ гардероб 3,6 м² 2️⃣ на втором этаже мы разместили: 🛠️ холл 3,5 м² 🛠️ санузел 3,0 м² 🛠️ комната 10,3 м² 🛠️ второй свет 23,3 м² В таком доме всегда светло, уютно и тепло. А еще и стильно! Ставьте ❤️, если вам нравится такой проект и пишите в

Помните, когда мы были юные, нам так не хотелось жить в частном доме: копать картошку, делать будку для собаки, чистить снег зимой. Как мы мечтали уехать из провинции в большой город и жить на 20 этаже высотки😎

-2

А что теперь? Мы устали от жизни в бетонной коробке и стремимся вернуться в небольшие города и села за самым главным – проводить всё своё свободное в кругу семьи: на природе, в тишине и покое💕

Для ценителей городского стиля, но свободной деревенской жизни мы придумали идеальное решение⬇️

-3

✅ Дом в стиле барнхаус общей площадью 106,8 м²🔥

1️⃣ на первом этаже расположились:

🛠️ терраса на 11,2 м²

🛠️ крыльцо 3,8 м²

🛠️ тамбур 6,4 м²

🛠️ техническое помещение 5,6 м²

🛠️ санузел 3,9 м²

🛠️ комната 11,2 м²

🛠️ кухня-гостиная 20,3 м²

🛠️ гардероб 3,6 м²

2️⃣ на втором этаже мы разместили:

🛠️ холл 3,5 м²

🛠️ санузел 3,0 м²

🛠️ комната 10,3 м²

🛠️ второй свет 23,3 м²

В таком доме всегда светло, уютно и тепло. А еще и стильно! Ставьте ❤️, если вам нравится такой проект и пишите в комментариях «хочу проект» – мы пришлем его вам в ЛС📩