Добавить в корзинуПозвонить
Найти в Дзене

Идеальная чистота! "Стерильная квартира". Идеальная трёшка в панельном доме! Ни одной лишней детали! Хозяйке БРАВО!

Москва, панельная многоэтажка, площадь квартиры 69 кв.м., высота потолков 2, 4 м. Хозяйка квартиры Ольга увлекается дизайном и организацией пространства. Сама продумала всё в квартире, давайте посмотрим как у неё это вышло. Начнем с планировки квартиры. Кардинальной перепланировки не было немного сместили дверной прём в гостиной, совместили санузел. Квартира до ремонта и после кардинально изменилась. Вот фото квартиры после покупки. Главный цвет ремонта белый. Квартира получилась очень светлой. Начнём с кухни, её площадь 5.8 кв.м. Хранение в гарнитуре очень грамотно спланировано, места достаточно и за обеденным столом помещаются сразу все три члена семьи. На фартуке, который продлили до самого потолка крупный керамогранит. Интересная идея с полками в верхних шкафчиках. Полки сделаны из стекла, тем самым снизу всё видно что на них стоит и не образуется никаких залежей "нужных" мелочей. Нижний ряд шкафов очень вместителен, нет проблемы с открыванием дверцы посудомойки, всё продумано оче

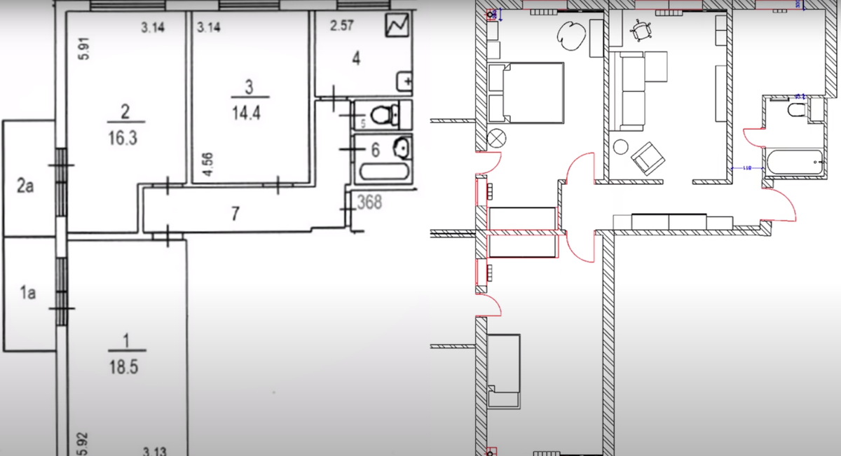
Москва, панельная многоэтажка, площадь квартиры 69 кв.м., высота потолков 2, 4 м. Хозяйка квартиры Ольга увлекается дизайном и организацией пространства. Сама продумала всё в квартире, давайте посмотрим как у неё это вышло. Начнем с планировки квартиры. Кардинальной перепланировки не было немного сместили дверной прём в гостиной, совместили санузел.

Старая и новая планировка
Старая и новая планировка

Квартира до ремонта и после кардинально изменилась. Вот фото квартиры после покупки.

ДО ремонта
ДО ремонта
ДО ремонта
ДО ремонта
ДО ремонта
ДО ремонта
ДО ремонта
ДО ремонта
ДО ремонта
ДО ремонта
ДО ремонта
ДО ремонта

Главный цвет ремонта белый. Квартира получилась очень светлой. Начнём с кухни, её площадь 5.8 кв.м. Хранение в гарнитуре очень грамотно спланировано, места достаточно и за обеденным столом помещаются сразу все три члена семьи.

-8
-9

На фартуке, который продлили до самого потолка крупный керамогранит.

-10
-11

Интересная идея с полками в верхних шкафчиках.

-12

Полки сделаны из стекла, тем самым снизу всё видно что на них стоит и не образуется никаких залежей "нужных" мелочей.

-13

Нижний ряд шкафов очень вместителен, нет проблемы с открыванием дверцы посудомойки, всё продумано очень хорошо.

-14
-15

Санузел. Площадь 3, 4 кв.м.

-16
-17

Тумбу для стиральной машины делали своими руками.

-18

Прихожая. Мебель из Икеи. Внутри шкафа есть изменения в виде крючков.

-19
-20

Вешалку сделали сами.

-21

У каждой пары свой "домик".

Отделение для хозяйственных штучек тоже есть.

-23

Гостиная. Светлая просторная комната.

-24
-25
-26
-27

Диван Слипсон, серый, куплен на Диван.Ру., прикроватный столик купили на Вайлдберриз.

-28
-29

Детская комната. Площадь 18.5 кв.м. Маленькой хозяйке 6 лет.

-30
-31
-32

Спортивный уголок сделан на заказ.

-33
-34
-35

Спальня. Площадь 16.8 кв.м.

-36
-37
-38
-39
-40
-41

Вот такой белой, светлой можно даже сказать стерильной получилась квартира. Как вам такой интерьер или вы бы добавили деталей?