Добавить в корзинуПозвонить
Найти в Дзене
Проектная мастерская №16

Проект двухэтажного кирпичного дома площадью 120кв.м. с наружными размерами 9х9м

Доброго времени года! Это ПМ№16 и сегодня смотрим на проект двухэтажного дома площадью 120кв.м. Бесплатный вариант проекта со всеми размерами и расчетом количества материалов качайте с яндекс-диска по ссылке https://disk.yandex.ru/d/7m-8B5QwOeJu1g Архитектурное решение
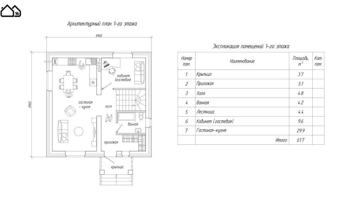
Фасад дома выполнен керамическим лицевым кирпичом 1.4НФ цвета солома с обрамлением проемов кирпичом цвета шоколад. На первом этаже дома располагаются по входу через крыльцо - прихожая-тамбур и далее через холл проходим вправо в санузел и лестницу на второй этаж, налево в гостиную и кухню, прямо в рабочий кабинет или гостевую комнату. По лестнице переходим на второй этаж. Здесь находятся три спальные и ванная комнаты. Конструктивное решение
Фундамент дома - железобетонный монолитный ленточный на коротких сваях. Стены дома выполнены по трехслойной системе с наружным слоем из керамического лицевого кирпича 1.4НФ, слоем теплоизоляции толщиной 100мм из панелей каменной ваты, внутренним слоем из керамического пустотелого кирпи

Доброго времени года! Это ПМ№16 и сегодня смотрим на проект двухэтажного дома площадью 120кв.м.

Бесплатный вариант проекта со всеми размерами и расчетом количества материалов качайте с яндекс-диска по ссылке https://disk.yandex.ru/d/7m-8B5QwOeJu1g

Архитектурное решение
Фасад дома выполнен керамическим лицевым кирпичом 1.4НФ цвета солома с обрамлением проемов кирпичом цвета шоколад. На первом этаже дома располагаются по входу через крыльцо - прихожая-тамбур и далее через холл проходим вправо в санузел и лестницу на второй этаж, налево в гостиную и кухню, прямо в рабочий кабинет или гостевую комнату. По лестнице переходим на второй этаж. Здесь находятся три спальные и ванная комнаты.

Конструктивное решение
Фундамент дома - железобетонный монолитный ленточный на коротких сваях. Стены дома выполнены по трехслойной системе с наружным слоем из керамического лицевого кирпича 1.4НФ, слоем теплоизоляции толщиной 100мм из панелей каменной ваты, внутренним слоем из керамического пустотелого кирпича 2.1НФ толщиной 250мм. Общая толщина наружной стены - 490мм. Полы 1-го этажа выполнены по железобетонной монолитной плите, второго - по сборным железобетонным плитам. Чердачное перекрытие - по деревянным балкам. Крыша - металлочерепица по деревянной стропильной системе.

Условия заказа проекта читайте на pm16.ru