Найти в Дзене
Мечтаево

Стокгольм в Подмосковье: европейский проект дома.

Готовый дом по типовому проекту "Стокгольм".
Яркий пример красивого дома с лаконичной классической планировкой. Спасибо архитекторам и строителям за готовый "Стогкольм". Как всегда, ребята постарались!
Технология
Дом размером 8,9х0 м внешне массивный и тяжелый, но каркасная технология позволяет выбирать недорогой вариант фундамента. У нас это свайно-винтовой, усиленной укосинами. Крыша -
Оглавление
Готовый дом по типовому проекту "Стокгольм".
Яркий пример красивого дома с лаконичной классической планировкой. Спасибо архитекторам и строителям за готовый "Стогкольм". Как всегда, ребята постарались!

Технология

Дом размером 8,9х0 м внешне массивный и тяжелый, но каркасная технология позволяет выбирать недорогой вариант фундамента. У нас это свайно-винтовой, усиленной укосинами. Крыша - металлочерепица, зеленого цвета, укладка волной – классик. Отделка – виниловый сайдинг, цвет мятный. Внутри – отделка базовой комплектации имитация бруса. Ограждение балкона и террасы из массива хвойных пород дерева.

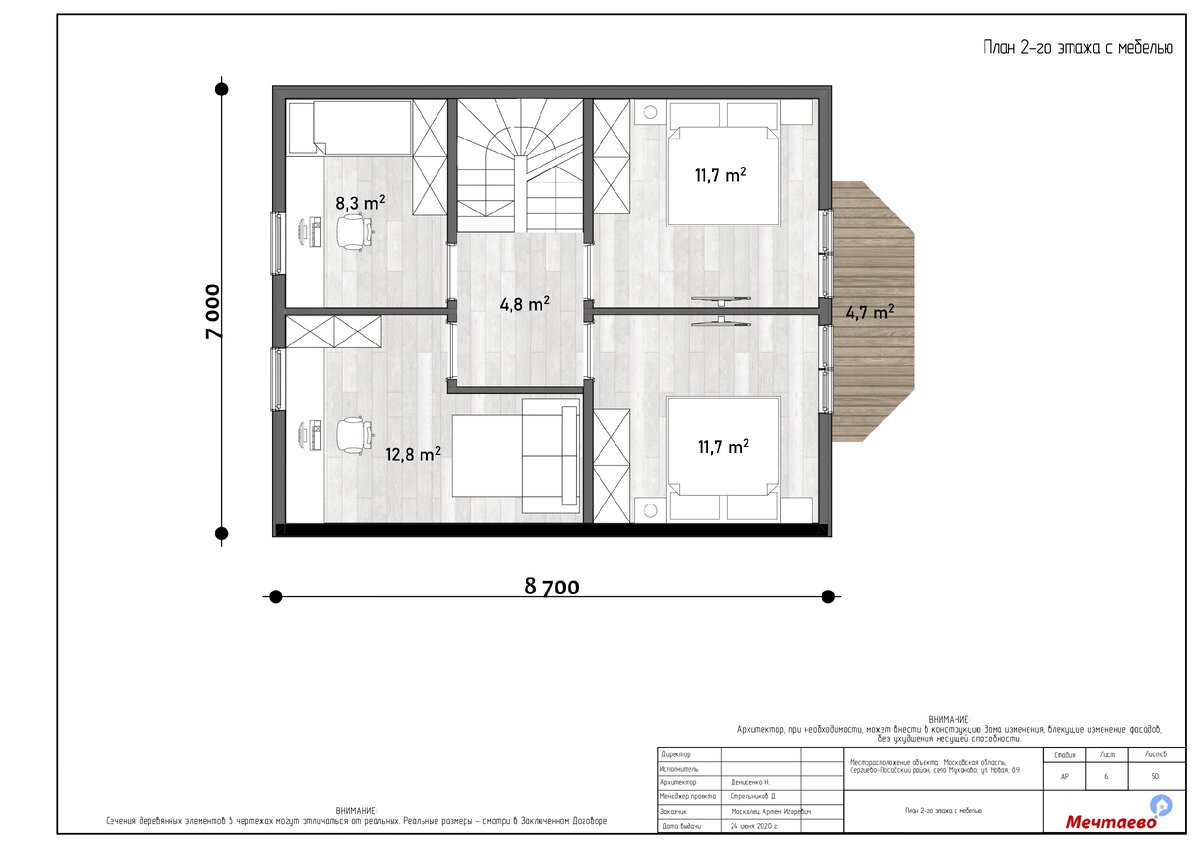
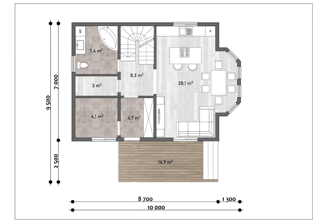
Планировки

Особенностью дома "Стокгольм" , площадью около 130 м.кв. является то, что здесь гостиная и кухня отделены друг от друга холлом и лестницей. Во всеобщем тренде соединения этих помещений есть те, кто придерживается классической планировки. Не все хозяйки любят наблюдение за собой у плиты) Второй этаж – это «спальный район», 4 спальни, холл и балкон, ничего лишнего. Но при желании можно сделать удобную гардеробную или кладовую за счет уменьшения одной из комнат.

-3
-4

Понравился проект - смотрите подробнее о нем на нашем сайте по ссылке! Стокгольм - здесь!

Подписывайтесь на наш дзен-канал! Есть вопросы по строительству? Звоните: +7-495-660-83-34